Upplýsingar
Byggt 1967
105,4 m²
4 herb.
1 baðherb.
3 svefnh.
Þvottahús
Lýsing
LF-fasteignasala/Lindin fasteignir s. 893-1319 og Þórdís Pála Reynisdóttir löggiltur fasteignasali thordis@lf-fasteignasala.is kynna:
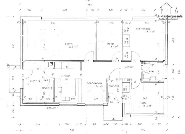
Hlíðarendavegur 4b, Eskifirði.
Þægilegt einnar hæðar einbýlishús á fallegum stað á Eskifirði.
Húsið er nánast að öllu leiti upprunalegt að innan og er fjársjóður fyrir þá sem kunna að meta gamlan stíl.
3 svefnherbergi eru í húsinu öll þokkalega rúmgóð.
Forstofa er á norðurhlið hússins en oftast er gengið inn í þvottahús á austurgafli hússins. Þvottahúsið er rúmgott þar sem geymsla sem er á teikningu hefur ekki verið stúkuð af heldur er í sama rými og þvottahúsið.
Inn úr þvottahúsinu er eldhús með upprunalegri hvítri innréttingu með plastlögðum hliðum með palesander útliit.
Borðkrókur er innan við innréttinguna.
Stofan er með stórum gluggum til suðurs.
3 svefnerbergi eru í húsinu og eru þau óvenju rúmgóð miðað við það sem tíðkaðist á byggingartíma hússins.
Baðherbergið er lítið en rúmar sturtuklefa og litla innréttingu í horn auk salernis.
Hitaveita er í húsinu.
Kominn er tími á ýmsar lagfæringar t.d. gólfefni og fleira.
Lítill afgirtur sólpallur er SA við húsið.
Malbikaður botnlangi frá Hlíðarendavegi endar við húsið og er hægt að geyma 2 bíla þar.
Gróin og nokkuð slétt lóð er við húsið.
.
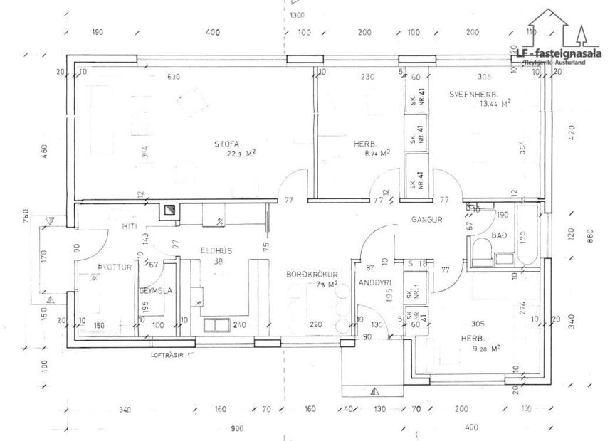
Hlíðarendavegur 4b, Eskifirði.
Þægilegt einnar hæðar einbýlishús á fallegum stað á Eskifirði.
Húsið er nánast að öllu leiti upprunalegt að innan og er fjársjóður fyrir þá sem kunna að meta gamlan stíl.
3 svefnherbergi eru í húsinu öll þokkalega rúmgóð.
Forstofa er á norðurhlið hússins en oftast er gengið inn í þvottahús á austurgafli hússins. Þvottahúsið er rúmgott þar sem geymsla sem er á teikningu hefur ekki verið stúkuð af heldur er í sama rými og þvottahúsið.
Inn úr þvottahúsinu er eldhús með upprunalegri hvítri innréttingu með plastlögðum hliðum með palesander útliit.
Borðkrókur er innan við innréttinguna.
Stofan er með stórum gluggum til suðurs.
3 svefnerbergi eru í húsinu og eru þau óvenju rúmgóð miðað við það sem tíðkaðist á byggingartíma hússins.
Baðherbergið er lítið en rúmar sturtuklefa og litla innréttingu í horn auk salernis.
Hitaveita er í húsinu.
Kominn er tími á ýmsar lagfæringar t.d. gólfefni og fleira.
Lítill afgirtur sólpallur er SA við húsið.
Malbikaður botnlangi frá Hlíðarendavegi endar við húsið og er hægt að geyma 2 bíla þar.
Gróin og nokkuð slétt lóð er við húsið.
.