Upplýsingar
Byggt 2000
83 m²
3 herb.
2 baðherb.
4 svefnh.
Sérinngangur
Lýsing
Virkilega sjarmerandi fjölskyldubústaður með frábæru útsýni við Skorradalsvatn
BÓKIÐ EINKASÝNINGU MEÐ ÞVÍ AÐ SENDA PÓST Á ARNI@PALSSONFASTEIGNASALA.IS
* 2 svefnherbergi ásamt svefnlofti
* 26fm gestahús með 2 auka svefnherbergjum og baðherbergi
* Stórir sólpallar, heitur pottur og fallegt útsýni yfir vatnið
* Virkilega gróin og falleg lóð sem ávalt hefur verið vel hugsað um - algjör paradís
Nánari upplýsingar veita:
Árni B. Kristjánsson B.A í lögfræði / Lgf í síma nr 616-2694 arni@palssonfasteignasala.is
www.eignavakt.is
www.verdmat.is
Samkv. Þjóðskrá Íslands er eignin skráð 83fm þar af er gestahús 26fm.
Um er að ræða timburhús sem er byggt í kringum 2000 og hefur ávalt verið vel við haldið.
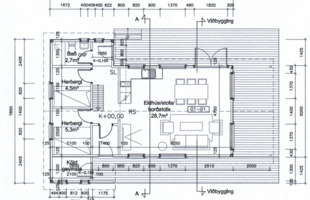
Eignin skiptist í forstofu, stofu og eldhús í opnu rými, 2 svefnherbergi, svefnloft, baðherbergi og gestahús með tveimur svefnherbergjum og baðherbergi
Lýsing eignar:
Forstofa með fatahengi. Flísar á gólfi.
Baðherbergi er með fallegri innréttingu, wc, handklæðaofn og pláss fyrir þvottavél. Flísar á gólfi
Svefnherbergin í aðalhúsinu eru tvö. Parket á gólfi
Svefnloft sem nýtist vel fyrir gesti.
Eldhús og stofa myndar eitt stórt opið rými. Virkilega fallegt útsýni yfir Skorradalsvatn. Eldhús er með upprunalegri innréttingu sem lítur mjög vel út. Úr stofu er er hægt að ganga út á stóra timburverönd með rafmagns potti. Gott geymslupláss er að finna undir veröndinni.
Geymsla við hlið inngangs.
Húsið er kynt með vardadælu, loft í vatn. Sólpallurinn nær allan hringinn í kring um bústaðinn.
Gestahús
Tvö rúmgóð svefnherbergi. Parket á gólfi.
Baðherbergi mjög snyrtilegt. Góð innrétting, vegghengt wc og sturta. Flísar á gólfi og veggjum.
Húsið hefur ávalt fengið gott viðhald og getur nýr eigandi flutt beint inn og byrjað að njóta í paradís.
Fallegt sumarhús á einstökum stað í fallegu umhverfi og útsýni. Stutt í alla þjónustu og afþreyingu í Borgarnesi.
Góð ráð fyrir kaupendur / seljendur
Gjöld sem kaupandi þarf að standa straum af vegna kaupanna:
1. Stimpilgjald af kaupsamningi - 0.8% af heildarfasteignamati / 1.6% fyrir lögaðila. (0.4% við fyrstu kaup einstaklinga).
2. Þinglýsingagjald af kaupsamningi, veðskuldabréfi, veðleyfi o.fl.- kr. 2.700 af hverju skjali.
3. Lántökugjald lánastofnunar - samanber gjaldskrá viðkomandi lánastofnunar.
4. Umsýsluþóknun til fasteignasölu, sbr.kauptilboð.
Um skoðunarskyldu:
Í lögum um fasteignakaup nr. 40/2002 er kveðið á um ríka skoðunarskyldu kaupenda á fasteignum. Pálsson fasteignasala bendir væntanlegum kaupendum á að kynna sér vel ástand fasteigna við skoðun og fyrir tilboðsgerð og ef þurfa þykir að leita til sérfræðinga um nánari ástandsskoðun.
BÓKIÐ EINKASÝNINGU MEÐ ÞVÍ AÐ SENDA PÓST Á ARNI@PALSSONFASTEIGNASALA.IS
* 2 svefnherbergi ásamt svefnlofti
* 26fm gestahús með 2 auka svefnherbergjum og baðherbergi
* Stórir sólpallar, heitur pottur og fallegt útsýni yfir vatnið
* Virkilega gróin og falleg lóð sem ávalt hefur verið vel hugsað um - algjör paradís
Nánari upplýsingar veita:
Árni B. Kristjánsson B.A í lögfræði / Lgf í síma nr 616-2694 arni@palssonfasteignasala.is
www.eignavakt.is
www.verdmat.is
Samkv. Þjóðskrá Íslands er eignin skráð 83fm þar af er gestahús 26fm.
Um er að ræða timburhús sem er byggt í kringum 2000 og hefur ávalt verið vel við haldið.
Eignin skiptist í forstofu, stofu og eldhús í opnu rými, 2 svefnherbergi, svefnloft, baðherbergi og gestahús með tveimur svefnherbergjum og baðherbergi
Lýsing eignar:
Forstofa með fatahengi. Flísar á gólfi.
Baðherbergi er með fallegri innréttingu, wc, handklæðaofn og pláss fyrir þvottavél. Flísar á gólfi
Svefnherbergin í aðalhúsinu eru tvö. Parket á gólfi
Svefnloft sem nýtist vel fyrir gesti.
Eldhús og stofa myndar eitt stórt opið rými. Virkilega fallegt útsýni yfir Skorradalsvatn. Eldhús er með upprunalegri innréttingu sem lítur mjög vel út. Úr stofu er er hægt að ganga út á stóra timburverönd með rafmagns potti. Gott geymslupláss er að finna undir veröndinni.
Geymsla við hlið inngangs.
Húsið er kynt með vardadælu, loft í vatn. Sólpallurinn nær allan hringinn í kring um bústaðinn.
Gestahús
Tvö rúmgóð svefnherbergi. Parket á gólfi.
Baðherbergi mjög snyrtilegt. Góð innrétting, vegghengt wc og sturta. Flísar á gólfi og veggjum.
Húsið hefur ávalt fengið gott viðhald og getur nýr eigandi flutt beint inn og byrjað að njóta í paradís.
Fallegt sumarhús á einstökum stað í fallegu umhverfi og útsýni. Stutt í alla þjónustu og afþreyingu í Borgarnesi.
Góð ráð fyrir kaupendur / seljendur
Gjöld sem kaupandi þarf að standa straum af vegna kaupanna:
1. Stimpilgjald af kaupsamningi - 0.8% af heildarfasteignamati / 1.6% fyrir lögaðila. (0.4% við fyrstu kaup einstaklinga).
2. Þinglýsingagjald af kaupsamningi, veðskuldabréfi, veðleyfi o.fl.- kr. 2.700 af hverju skjali.
3. Lántökugjald lánastofnunar - samanber gjaldskrá viðkomandi lánastofnunar.
4. Umsýsluþóknun til fasteignasölu, sbr.kauptilboð.
Um skoðunarskyldu:
Í lögum um fasteignakaup nr. 40/2002 er kveðið á um ríka skoðunarskyldu kaupenda á fasteignum. Pálsson fasteignasala bendir væntanlegum kaupendum á að kynna sér vel ástand fasteigna við skoðun og fyrir tilboðsgerð og ef þurfa þykir að leita til sérfræðinga um nánari ástandsskoðun.