Upplýsingar
Verðsaga
Byggt 1970
158,4 m²
6 herb.
2 baðherb.
4 svefnh.
Þvottahús
Bílskúr
Sérinngangur
Lýsing
Háborg og Þórunn Pálsdóttir lgf kynna fallegt og mikið endurnýjað raðhús á góðum stað í neðra Breiðholti. Björt og rúmgóð stofa og borðstofa með útsýni og útgengi út á stórar svalir til vesturs, fjögur svefnherbergi, þar af eitt sem nýtt er sem fjölskyldurými með útgengi út í garð, stílhreint eldhús með innbyggðum tækjum og góðum eldhúskrók, glæsilega hannað baðherbergi og gestasnyrting, anddyri og hol með fatahengi, sér þvottahús og 20 fm bílskúr með jafnstórri gryfju undir, sem er ekki inni í fermetratölu hússins. Gróinn sólríkur garður með berjarunnum, myndarlegum trjám og góðum palli. Allar frekari upplýsingar gefur Þórunn Pálsdóttir lgf s:773-6000 og thorunn@haborg.is
Raðhúsið hefur verið mikið endurnýjað á einstaklega smekklegan hátt án þess að missa sjónar á upprunalegum sjarma og góðri hönnun með meðvituðu efnisvali og útfærslum. Öll gólf (nema þvottahús og bílskúr) hafa verið flotuð undir ný gólfefni og hitalagnir eru í gólfum miðpalls og baðherbergis. Loft á miðpalli og baðherbergi hafa verið endurnýjuð með innfelldri lýsingu. Nýjir ofnar, nýjar raflagnir og tenglar með dimmer, nýjar neysluvatnslagnir, nýr dúkur er á þaki og múrviðgerðir utanhúss eru yfirstaðnar. Gluggar endurnýjaðir að langmestu leyti. Votrými flísalögð en korkur á öðrum gólfum sem tónar einkar vel við panelklædd loft, veggi og innihurðir.
Gengið er inn á miðpall hússins frá fallegum forgarði þar sem morgunsólar nýtur. Tvö hellulögð bílastæði með hitalögnum eru fyrir framan bílskúr sem er með góðri lofthæð og gryfju undir honum öllum. Komið er inn í anddyri með góðum fataskáp. Á vinstri hönd er rúmgott bjart þvottahús með vinnuborði og vaski. Inn af anddyri er bjart hol sem tengir efri og neðri hæðir í sérlega góðu flæði, en hálf hæð er niður í herbergjaálmu og hálf hæð upp í stofu. Á miðpallinum er gott fatahengi og einstaklega huggulegt og bjart uppgert eldhús með góðum eldhúskrók og glugga til austurs. Steinn er í borðplötu og skápapláss gott, meðal annars tveir búr- og tækjaskápar. Öll heimilistæki eru innbyggð. Sérsmíðaðir bekkir með góðum hirslum undir eru bæði í eldhúskrók og í holi. Uppgerð gestasnyrting er einnig á miðpalli.
Gengið er upp hálfa hæð i bjarta og glæsilega stofu með stórum vesturgluggum eftir allri hliðinni. Heillandi panell er á stofuloftum og veggjum við borðstofu. Útgengt er á vestursvalir með fallegu útsýni og kvöldsól. Eitt gott svefnherbergi er á efsta palli.
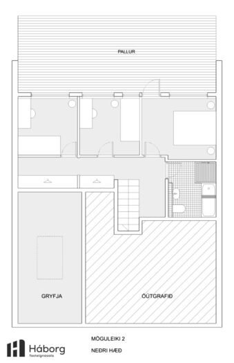
Gengið er hálfa hæð frá miðpalli niður á neðsta pall. Þar er gott skápapláss og þrjú góð svefnherbergi en herbergjaskipan hefur verið breytt frá upprunalegri teikningu. Reyndarteikning og möguleiki á fleiri útfærslum sýndar á myndum. Beint af augum er gengið út í garð í gegnum fjölskylduherbergi sem lokast með rennihurð. Góður nýlegur viðarpallur er í garði og rúmgóð grasflöt. Baðherbergið er glæsilega endurnýjað og hefur tekist einkar vel að skapa spa stemningu með fallegri hönnun og efnisvali. Baðherbergið er með gólfhita og er það flísalagt í hólf og gólf auk þess sem stór spegill og lakkaður korkur er á vegg. Flísalagður bekkur er við baðker með hirslum, innbyggður skápur er við vask og blöndunartæki eru frá Vola. Loft endurnýjað með innfelldri lýsingu og rauf fyrir sérsaumað sturtuhengi.
Sérstaklega heillandi og mikið endurnýjað raðhús á þessum vinsæla og miðlæga stað í borginni, þar sem stutt er í fjölbreytta þjónustu í Mjóddinni, í leik- og grunnskóla, frábær útivistarsvæði í Elliðaárdal og helstu samgönguæðar, þar á meðal góða hjólastíga.
Allar frekari upplýsingar gefur Þórunn Pálsdóttir lgf. 773-6000 og thorunn@haborg.is
Að neðan er hlekkur á viðtal við seljanda um húsið og fleira.
https://www.mbl.is/smartland/heimili/2024/10/27/god_byggingarlist_verndar_folk_fyrir_umhverfinu/?fbclid=IwZXh0bgNhZW0CMTEAAR0edREWrS4094AHEQ6ATvSEWuBsJTr3dWMkpWi329B4hrAhZd6SMB4pQDc_aem_kmTuOlvDrpvLHo768h0KHA
Raðhúsið hefur verið mikið endurnýjað á einstaklega smekklegan hátt án þess að missa sjónar á upprunalegum sjarma og góðri hönnun með meðvituðu efnisvali og útfærslum. Öll gólf (nema þvottahús og bílskúr) hafa verið flotuð undir ný gólfefni og hitalagnir eru í gólfum miðpalls og baðherbergis. Loft á miðpalli og baðherbergi hafa verið endurnýjuð með innfelldri lýsingu. Nýjir ofnar, nýjar raflagnir og tenglar með dimmer, nýjar neysluvatnslagnir, nýr dúkur er á þaki og múrviðgerðir utanhúss eru yfirstaðnar. Gluggar endurnýjaðir að langmestu leyti. Votrými flísalögð en korkur á öðrum gólfum sem tónar einkar vel við panelklædd loft, veggi og innihurðir.
Gengið er inn á miðpall hússins frá fallegum forgarði þar sem morgunsólar nýtur. Tvö hellulögð bílastæði með hitalögnum eru fyrir framan bílskúr sem er með góðri lofthæð og gryfju undir honum öllum. Komið er inn í anddyri með góðum fataskáp. Á vinstri hönd er rúmgott bjart þvottahús með vinnuborði og vaski. Inn af anddyri er bjart hol sem tengir efri og neðri hæðir í sérlega góðu flæði, en hálf hæð er niður í herbergjaálmu og hálf hæð upp í stofu. Á miðpallinum er gott fatahengi og einstaklega huggulegt og bjart uppgert eldhús með góðum eldhúskrók og glugga til austurs. Steinn er í borðplötu og skápapláss gott, meðal annars tveir búr- og tækjaskápar. Öll heimilistæki eru innbyggð. Sérsmíðaðir bekkir með góðum hirslum undir eru bæði í eldhúskrók og í holi. Uppgerð gestasnyrting er einnig á miðpalli.
Gengið er upp hálfa hæð i bjarta og glæsilega stofu með stórum vesturgluggum eftir allri hliðinni. Heillandi panell er á stofuloftum og veggjum við borðstofu. Útgengt er á vestursvalir með fallegu útsýni og kvöldsól. Eitt gott svefnherbergi er á efsta palli.
Gengið er hálfa hæð frá miðpalli niður á neðsta pall. Þar er gott skápapláss og þrjú góð svefnherbergi en herbergjaskipan hefur verið breytt frá upprunalegri teikningu. Reyndarteikning og möguleiki á fleiri útfærslum sýndar á myndum. Beint af augum er gengið út í garð í gegnum fjölskylduherbergi sem lokast með rennihurð. Góður nýlegur viðarpallur er í garði og rúmgóð grasflöt. Baðherbergið er glæsilega endurnýjað og hefur tekist einkar vel að skapa spa stemningu með fallegri hönnun og efnisvali. Baðherbergið er með gólfhita og er það flísalagt í hólf og gólf auk þess sem stór spegill og lakkaður korkur er á vegg. Flísalagður bekkur er við baðker með hirslum, innbyggður skápur er við vask og blöndunartæki eru frá Vola. Loft endurnýjað með innfelldri lýsingu og rauf fyrir sérsaumað sturtuhengi.
Sérstaklega heillandi og mikið endurnýjað raðhús á þessum vinsæla og miðlæga stað í borginni, þar sem stutt er í fjölbreytta þjónustu í Mjóddinni, í leik- og grunnskóla, frábær útivistarsvæði í Elliðaárdal og helstu samgönguæðar, þar á meðal góða hjólastíga.
Allar frekari upplýsingar gefur Þórunn Pálsdóttir lgf. 773-6000 og thorunn@haborg.is
Að neðan er hlekkur á viðtal við seljanda um húsið og fleira.
https://www.mbl.is/smartland/heimili/2024/10/27/god_byggingarlist_verndar_folk_fyrir_umhverfinu/?fbclid=IwZXh0bgNhZW0CMTEAAR0edREWrS4094AHEQ6ATvSEWuBsJTr3dWMkpWi329B4hrAhZd6SMB4pQDc_aem_kmTuOlvDrpvLHo768h0KHA
Ár
Fasteignamat
Kaupverð
Stærð
Fermetraverð
1. ágú. 2013
30.000.000 kr.
30.000.000 kr.
158.4 m²
189.394 kr.
Byggt á upplýsingum úr Þjóðskrá Íslands frá 2006-2025