Löggiltir fasteignasalar innan Félags fasteignasala:
Margrét Guðjónsdóttir
Vista
svg

148

svg

139  Skoðendur

svg

Skráð  29. okt. 2025

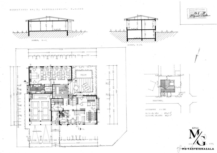
einbýlishús

Bugðutangi 2

270 Mosfellsbær

190.000.000 kr.

594.493 þ.kr./m2
Fasteignanúmer

F2083247

Fasteignamat

157.200.000 kr.

Brunabótamat

154.050.000 kr.

Áhvílandi

0 kr.

Arion banki – Reikna lán
Upplýsingar
Verðsaga
svg
Byggt 1979
svg
319,6 m²
svg
7 herb.
svg
3 baðherb.
svg
6 svefnh.
svg
Þvottahús

Lýsing

MG Fasteignasala sími 588 1400 kynna í einkasölu:

Bjart og vel skipulagt 319,6 fm einbýlishús á tveimur hæðum með tvöföldum bílskúr. Húsið er teiknað af Kjartani Sveinssyni. Tveggja herbergja íbúð með sér inngangi á neðri hæð. Steypt bílaplan með rafhleðslutengi. Húsið stendur á hornlóð fremst í götu með fallegum skjólgóðum garði á eftirsóttum stað í Mosfellsbæ. Húsið hefur verið töluvert endurnýjað. 

Með nánari upplýsingar hafið samband við Margréti Guðjónsdóttur lögmann og löggiltan fasteignasala í síma 866 9140/588 1400 eða hjá mg@mgfasteignasala.is

Eignin er skráð hjá HMS: 010101 Íbúð 273,0 fm. og 010002 Skrifstofa 46,6 fm. Nánari skipting er skráð, íbúð á hæð 177,6 fm, bílskúr 47,1 fm, íbúðarherbergi í kjallara 48,3 fm og skrifstofa 46,6 fm, alls 319.6 fm.
 
Efri hæð hússins skiptist í forstofu, stofu, borðstofu, eldhús, þrjú svefnherbergi (fjögur skv. teikningu), sjónvarpsherbergi, baðherbergi, gufubað, gestasnyrtingu, þvottahús, búr og bílskúr. Timburverönd með heitum potti, gengið út frá sjónvarpsherbergi. Annað útgengi frá svefnherbergisgangi.
Neðri hæð hússins skiptist í tveggja herbergja íbúð með sérinngangi, stórt herbergi sem hefur verið sérstaklega hljóðeinangrað svo og sjónvarpsherbergi í opnu rými þar sem hluti rýmis er nýttur sem geymsla.
 
Fasteignamat ársins 2026 er kr. 172.250.000.
 

Nánari lýsing:
Efri hæð:
Forstofa: Flísalögð með stórum fataskáp. Úr anddyri er innangengt í bílskúr og niður á neðri hæð hússins.
Eldhús: Falleg innrétting, stór gaseldavél.
Stofa: Björt og rúmgóð stofa með glæsilegum arni. Parket á gólfi.
Borðstofa: Opin út frá stofu. Flísar á gólfi.   
Herbergi I: Herbergi þar sem stúkað hefur verið af lítið fataherbergi. Parket á gólfi.
Herbergi II: Sameinuð hafa verið tvö herbergi í eitt stórt. Tvö herbergi skv. teikningu. Parket á gólfi.
Herbergi III: Rúmgott með parketi á gólfi.
Skápar á svefnherbergisgangi.
Sjónvarpsherbergi: Mjög rúmgott sjónvarpsrými með fallegri lýsingu og parketi á gólfi. Þaðan er útgengi út á skjólgóðan viðarpall með heitum potti. Sjónvarpsherbergið er milli stofu og svefnherbergisálmu.
Baðherbergi: Flísalagt með innréttingu, upphengdu salerni, baðkari og sturtu.
Gufubað: Inn af baðherbergi.
Gestasalerni: Flísar á gólfi og veggjum. Upphent salerni.
Þvottahús: Inn af eldhúsi með útgengi út á aðkomustétt. Innrétting fyrir þvottavél og þurrkara, vaskur í borði. Búr opið inn af þvottahúsi.   

Neðri hæð: 
Gengið er úr forstofu niður á neðri hæð sem hefur verið innréttuð þannig:
2ja herbergja íbúð með sérinngangi sem skiptist í:
Herbergi: Stórt og bjart herbergi með parketi.
Stofa: Rúmgóð með parketi á gólfi.
Eldhús: Opið inn af stofu með lítilli eldhúsinnréttingu með innbyggðum ísskáp.
Baðherbergi: Glæsilegt baðherbergi, flísalagt í hólf og gólf, með upphengdu salerni og sturtu.
Forstofa: Með flísum og fatahengi.  
Auk þess:
Herbergi: Stórt herbergi sem hefur verið sérstaklega hljóðeinangrað og áður notað sem Studíó.
Sjónvarpsherbergi: Stórt rými sem hefur verið nýtt sem sjónvarpsherbergi og hluti sem geymsla.
 
Bílskúr: Tvöfaldur bílskúr með rafdrifnum innkeyrsluhurðum.

Samkvæmt upplýsingum seljanda hafa eftirfarandi framkvæmdir átt sér stað sl. ár:
Nýtt plastparket á herbergi efri hæðar og á neðri hæð 2015. 
Forstofa á efri og neðri hæð flísalögð á árinu 2016. Settur nýr ofn í forstofu efri hæðar.
Nýjar hurðar á neðri hæð á árinu 2015.
Nýr þakkantur og þakrennur á árinu 2017.
Nýjar bílskúrshurðir og nýir gluggar í bílskúr á árinu 2022.
Viðarpallur smíðaður ásamt stíg frá bílaplani á árinu 2022. Jafnframt settur NormX heitur pottur sama ár. 
Lóð tekin í gegnum og tyrft fyrir ofan hús og með hliðum á árunum 2023 og 2024.
Tröppur að húsi lagaðar og steyptar 2023.
Nýir baðherbergisgluggar smíðaðir 2023 en ósettir í.
 
Skóli og leikskóli í næsta nágrenni, stutt í alla þjónustu svo og í góðar göngu- og hjólaleiðir.
 

FALLEG EIGN Á EFTIRSÓTTUM STAÐ.
 
Í lögum um fasteignakaup nr. 40/2002 er kveðið á um ríka skoðunarskyldu kaupenda á fasteignum. MG Fasteignasala skorar því á væntanlega kaupendur að kynna sér vel ástand fasteignarinnar fyrir kauptilboðsgerð og leita til þar til bærra sérfræðinga um nánari skoðun ef með þarf.


Gjöld sem kaupandi þarf að standa straum af vegna kaupanna:  
1. Stimpilgjald af kaupsamningi 0,4% fyrstu kaup / 0.8% af heildarfasteignamati / 1.6% fyrir lögaðila 
2. Þinglýsingagjald af kaupsamningi, veðskuldabréfi, veðleyfi o.fl.- kr. 2.700 af hverju skjali. 
3. Lántökugjald getur verið breytilegt eftir lánastofnunum.
4. Umsýslugjald til fasteignasölu skv. gjaldskrá.



 

Með nánari upplýsingar hafið samband við MG Fasteignasölu sími 588 1400, mg@mgfasteignasala.is eða Margréti Guðjónsdóttur lögmann og löggiltan fasteignasala í síma 866 9140.

MG Lögmenn ehf.

MG Lögmenn ehf.

Háholti 14, 270 Mosfellsbæ
phone
Ár
Fasteignamat
Kaupverð
Stærð
Fermetraverð
16. júl. 2015
63.800.000 kr.
61.900.000 kr.
319.6 m²
193.680 kr.
Byggt á upplýsingum úr Þjóðskrá Íslands frá 2006-2025
MG Lögmenn ehf.

MG Lögmenn ehf.

Háholti 14, 270 Mosfellsbæ
phone