Löggiltir fasteignasalar innan Félags fasteignasala:
Ástþór Reynir Guðmundsson
Vigdís R. S. Helgadóttir
Guðbjörg Helga Jóhannesdóttir
Gylfi Jens Gylfason
Sigrún Matthea Sigvaldadóttir
Sveinn Gíslason
Páll Guðmundsson
Þórarinn Arnar Sævarsson
Berglind Hólm Birgisdóttir
Þorsteinn Gíslason
Guðrún Lilja Tryggvadóttir
Brynjar Ingólfsson
Guðný Þorsteinsdóttir
Bjarni Blöndal
Þorsteinn Ólafs
Þórdís Björk Davíðsdóttir
Jóhann Kristinn Jóhannesson
Bjarný Björg Arnórsdóttir
Salvör Þóra Davíðsdóttir
Magga Sigríður Gísladóttir
Upplýsingar
Verðsaga
Byggt 2002
63 m²
2 herb.
1 baðherb.
1 svefnh.
Sameiginl. inngangur
Lyfta
Lýsing
Dagbjartur Willardsson löggiltur fasteignasali og RE/MAX kynna, Naustabryggju 15, íbúð 0102 fnr. 225-8172
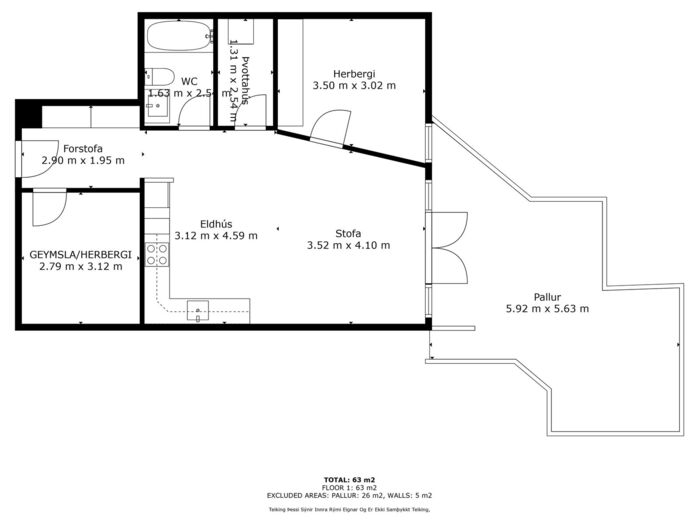
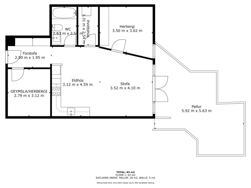
Íbúðin er skráð hjá þjóðskrá 63 fm og þar af er geymsla 4,8 fm. Skráð byggingarár hússins er 2002 Húsið er 4 hæða og er íbúðin á 1. hæð hússins. Íbúðin skiptist í opið alrými þar sem stofa og eldhús mynda eitt rými. Rúmgott svefnherbergi og baðherbergi og svo er sér þvotthúsrými. Einnig er herbergi/vinnurými sem er gluggalaust. Gengið er út á pall til suðurs út úr stofu og er einstakur sælureitur og góð viðbót við íbúðina. Sjá nánar skipulag íbúðar á teikningu sem er þar sem ljósmyndir af eigninni eru á síðunni.
FÁÐU SENT SÖLUYIRLIT YFIR EIGNINA HÉR.
Nánari lýsing:
Forstofa: Flísar á gólfi. Fataskápur.
Stofa/borðstofa: Parket á gólfi.
Geymsla/vinnuherbergi: Gengið til hægri úr anddyri og er rými gluggalaust. Parket á gólfi.
Svefnherbergi: Parket á gólfi. Fatakápur.
Pallur: Pallur til suðurs með skjólveggjum.
Eldhús: Parket á gólfi. Eikarinnrétting. Helluborð með viftu yfir. Bakstursofn. Flísalagt er á milli efri og neðri skápa.
Baðherbergi: Flísar á gólfi sem og við baðkar. Baðkar með sturtutæki og glerþili. Innrétting með handlaug. Salerni.
Þvottahús: Málað gólf. Hillur.
Geymsla: Er í kjallara og er skráð 4,8 fm. Einnig er sameiginleg hjóla/vagnageymsla á hæðinni og dekkjageymsla í kjallara.
Naustabryggja 15 er lítil íbúð með yndislegum pallli til suðurs sem er góð viðbót við íbúðina.
Allar nánari upplýsingar veitir:
Dagbjartur Willardsson lgf hjá RE/MAX í s: 861-7507 eða á daddi@remax.is
Gjöld sem kaupandi þarf að greiða vegna kaupanna:
1. Stimpilgjald af kaupsamningi - 0,8% af heildarfasteignamati hjá einstaklingum. Sé um fyrstu kaup að ræða er stimpilgjald af kaupsamningi 0,4% af heildarfasteignamati.
2. Stimpilgjald af kaupsamningi - 1,6% af heildarfasteignamati hjá lögaðilum.
3. Þinglýsingargjald af kaupsamningi, veðskuldabréfi, veðleyfi og fl. 2.700 kr. af hverju skjali.
4. Lántökugjald lánastofnunar - breytilegt, sjá gjaldskrá á heimasíðum lánastofnana.
5. Umsýslugjald til fasteignasölu 69.900 kr. m.vsk.
Í lögum um fasteignakaup nr. 40/2002 er kveðið á um ríka skoðunarskyldu kaupenda á fasteignum. Vill RE/MAX því skora á væntanlega kaupendur að kynna sér vel ástand fasteigna fyrir kauptilboðsgerð og leita til þar til bærra sérfræðinga um nánari skoðun.
Íbúðin er skráð hjá þjóðskrá 63 fm og þar af er geymsla 4,8 fm. Skráð byggingarár hússins er 2002 Húsið er 4 hæða og er íbúðin á 1. hæð hússins. Íbúðin skiptist í opið alrými þar sem stofa og eldhús mynda eitt rými. Rúmgott svefnherbergi og baðherbergi og svo er sér þvotthúsrými. Einnig er herbergi/vinnurými sem er gluggalaust. Gengið er út á pall til suðurs út úr stofu og er einstakur sælureitur og góð viðbót við íbúðina. Sjá nánar skipulag íbúðar á teikningu sem er þar sem ljósmyndir af eigninni eru á síðunni.
FÁÐU SENT SÖLUYIRLIT YFIR EIGNINA HÉR.
Nánari lýsing:
Forstofa: Flísar á gólfi. Fataskápur.
Stofa/borðstofa: Parket á gólfi.
Geymsla/vinnuherbergi: Gengið til hægri úr anddyri og er rými gluggalaust. Parket á gólfi.
Svefnherbergi: Parket á gólfi. Fatakápur.
Pallur: Pallur til suðurs með skjólveggjum.
Eldhús: Parket á gólfi. Eikarinnrétting. Helluborð með viftu yfir. Bakstursofn. Flísalagt er á milli efri og neðri skápa.
Baðherbergi: Flísar á gólfi sem og við baðkar. Baðkar með sturtutæki og glerþili. Innrétting með handlaug. Salerni.
Þvottahús: Málað gólf. Hillur.
Geymsla: Er í kjallara og er skráð 4,8 fm. Einnig er sameiginleg hjóla/vagnageymsla á hæðinni og dekkjageymsla í kjallara.
Naustabryggja 15 er lítil íbúð með yndislegum pallli til suðurs sem er góð viðbót við íbúðina.
Allar nánari upplýsingar veitir:
Dagbjartur Willardsson lgf hjá RE/MAX í s: 861-7507 eða á daddi@remax.is
Gjöld sem kaupandi þarf að greiða vegna kaupanna:
1. Stimpilgjald af kaupsamningi - 0,8% af heildarfasteignamati hjá einstaklingum. Sé um fyrstu kaup að ræða er stimpilgjald af kaupsamningi 0,4% af heildarfasteignamati.
2. Stimpilgjald af kaupsamningi - 1,6% af heildarfasteignamati hjá lögaðilum.
3. Þinglýsingargjald af kaupsamningi, veðskuldabréfi, veðleyfi og fl. 2.700 kr. af hverju skjali.
4. Lántökugjald lánastofnunar - breytilegt, sjá gjaldskrá á heimasíðum lánastofnana.
5. Umsýslugjald til fasteignasölu 69.900 kr. m.vsk.
Í lögum um fasteignakaup nr. 40/2002 er kveðið á um ríka skoðunarskyldu kaupenda á fasteignum. Vill RE/MAX því skora á væntanlega kaupendur að kynna sér vel ástand fasteigna fyrir kauptilboðsgerð og leita til þar til bærra sérfræðinga um nánari skoðun.
Ár
Fasteignamat
Kaupverð
Stærð
Fermetraverð
9. sep. 2011
13.600.000 kr.
17.000.000 kr.
63 m²
269.841 kr.
30. nóv. 2006
11.495.000 kr.
14.500.000 kr.
52 m²
278.846 kr.
Byggt á upplýsingum úr Þjóðskrá Íslands frá 2006-2025