Upplýsingar
Verðsaga
Byggt 1997
126,4 m²
4 herb.
1 baðherb.
3 svefnh.
Þvottahús
Sérinngangur
Lýsing
Böðvar Sigurbjörnsson og Borg Fasteignasala kynna til sölu: Breiðavík 15, 112 Reykjavík. Íbúð merkt 01-01, fjögurra herbergja 126,4 m2 íbúð á 1. hæð með sérinngangi og skjólgóðri verönd á sérafnotafleti í garði.
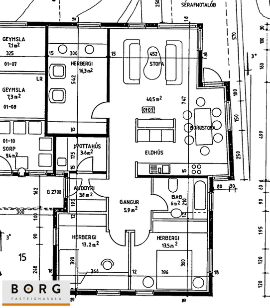
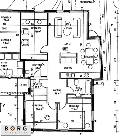
Skipulag: Forstofa, hol/gangur, eldhús, stofa/borðstofa í opnu samliggjandi rými, þrjú rúmgóð svefnherbergi, baðherbergi og þvottahús. Eigninni fylgir geymsla 8,1 m2,merkt 0108, einnig hlutdeild í sameiginlegri hjóla-og vagnageymslu.
Nánari lýsing: Komið er inn í flísalagða forstofu, þar er skápur fyrir yfirhafnir. Frá forstofu er gengið inn í flísalagt þvottahús, tengi fyrir þvottavél, þvottasnúrur og vaskur í borðplötu. Gangur/hol og stofa eru með parketi á gólfum. Rúmgóð stofa með hornglugga sem gefur góða birtu. Stofa og eldhús eru aðskilin með vegg að hluta en opið er frá borðstofu að eldhúsi. Frá borðstofu er gengið út á sér verönd/pall með skjólveggjum sem stendur á sérafnotafleti í garði hússins og snýr til suð-vesturs. Eldhús og borðstofa eru með flísum á gólfi, eldhúsinnrétting á tveimur veggjum með efri og neðri skápum, mikið borðpláss og góð vinnuaðstaða. Dökkar flísar eru á vegg milli efri og neðri hluta innréttingarinnar í eldhúsinu. Þrjú rúmgóð herbergi eru í íbúðinni og eru þau með parketi á gólfum, tvö þeirra eru með fataskápum. Baðherbergið er flísalagt í hólf og gólf með dökkum flísum á gólfi og hvítum á veggjum, þar er hiti lagður í gólf. Baðkar og innrétting með skápum neðan handlaugar og til hliðar, spegill með lýsingu fyrir ofan.
Annað: Sérmertk stæði með möguleika rafhleðslu fyrir framan íbúðina. Breiðavík 15 er þriggja hæða steinsteypt fjölbýlishús með sjö íbúðum, á lóð hússins eru 14 sameiginleg bílastæði. Eignin er vel staðsett, stutt í alla helstu þjónustu, skóla og íþróttastarf.
Nánari upplýsingar veitir Böðvar Sigurbjörnsson, lögfræðingur M.L. og lgf., í síma 660-4777 eða bodvar@fastborg.is
Sjá einnig:
fastborg.is/
Smelltu hér til að fylgjast með mér á Facebook
Smelltu hér til að fylgja mér á Instagram
Forsendur söluyfirlits:
Söluyfirlit er samið af fasteignasala í samræmi við ákvæði laga nr. 70/2015. Þær upplýsingar sem fram koma í söluyfirliti þessu eru sóttar í opinberar skrár, til seljanda sjálfs og eftir atvikum til húsfélags. Seljandi veitir upplýsingar um eign í samræmi við upplýsingaskyldu laga um fasteignakaup nr. 40/2002. Fasteignasali sannreynir að þær upplýsingar séu réttar með sjónskoðun á eigninni. Fasteignasali getur ekki fullyrt um ástand og eiginleika þeirra hluta fasteigna sem ekki eru aðgengilegir og sjást ekki berum augum, t.d. lagnir, dren, skólp og þak.
Skoðunarskylda:
Í lögum um fasteignakaup nr. 40/2002 er kveðið á um ríka skoðunarskyldu kaupenda á fasteignum. Vill Borg fasteignasala því benda væntanlegum kaupendum á að kynna sér vel ástand fasteigna fyrir kauptilboðsgerð og leita til þar til bærra sérfræðinga um nánari skoðun ef þurfa þykir.
Gjöld sem kaupandi þarf að standa straum af vegna kaupanna:
1. Stimpilgjald af kaupsamningi, fyrstu kaup (0,4%), almenn kaup (0,8%), lögaðilar (1,6%) af heildarfasteignamati.
2. Þinglýsingargjald af kaupsamningi, veðskuldabréfi, mögulegu veðleyfi.
3. Umsýslugjald til fasteignasölu skv. kauptilboði.
Skipulag: Forstofa, hol/gangur, eldhús, stofa/borðstofa í opnu samliggjandi rými, þrjú rúmgóð svefnherbergi, baðherbergi og þvottahús. Eigninni fylgir geymsla 8,1 m2,merkt 0108, einnig hlutdeild í sameiginlegri hjóla-og vagnageymslu.
Nánari lýsing: Komið er inn í flísalagða forstofu, þar er skápur fyrir yfirhafnir. Frá forstofu er gengið inn í flísalagt þvottahús, tengi fyrir þvottavél, þvottasnúrur og vaskur í borðplötu. Gangur/hol og stofa eru með parketi á gólfum. Rúmgóð stofa með hornglugga sem gefur góða birtu. Stofa og eldhús eru aðskilin með vegg að hluta en opið er frá borðstofu að eldhúsi. Frá borðstofu er gengið út á sér verönd/pall með skjólveggjum sem stendur á sérafnotafleti í garði hússins og snýr til suð-vesturs. Eldhús og borðstofa eru með flísum á gólfi, eldhúsinnrétting á tveimur veggjum með efri og neðri skápum, mikið borðpláss og góð vinnuaðstaða. Dökkar flísar eru á vegg milli efri og neðri hluta innréttingarinnar í eldhúsinu. Þrjú rúmgóð herbergi eru í íbúðinni og eru þau með parketi á gólfum, tvö þeirra eru með fataskápum. Baðherbergið er flísalagt í hólf og gólf með dökkum flísum á gólfi og hvítum á veggjum, þar er hiti lagður í gólf. Baðkar og innrétting með skápum neðan handlaugar og til hliðar, spegill með lýsingu fyrir ofan.
Annað: Sérmertk stæði með möguleika rafhleðslu fyrir framan íbúðina. Breiðavík 15 er þriggja hæða steinsteypt fjölbýlishús með sjö íbúðum, á lóð hússins eru 14 sameiginleg bílastæði. Eignin er vel staðsett, stutt í alla helstu þjónustu, skóla og íþróttastarf.
Nánari upplýsingar veitir Böðvar Sigurbjörnsson, lögfræðingur M.L. og lgf., í síma 660-4777 eða bodvar@fastborg.is
Sjá einnig:
fastborg.is/
Smelltu hér til að fylgjast með mér á Facebook
Smelltu hér til að fylgja mér á Instagram
Forsendur söluyfirlits:
Söluyfirlit er samið af fasteignasala í samræmi við ákvæði laga nr. 70/2015. Þær upplýsingar sem fram koma í söluyfirliti þessu eru sóttar í opinberar skrár, til seljanda sjálfs og eftir atvikum til húsfélags. Seljandi veitir upplýsingar um eign í samræmi við upplýsingaskyldu laga um fasteignakaup nr. 40/2002. Fasteignasali sannreynir að þær upplýsingar séu réttar með sjónskoðun á eigninni. Fasteignasali getur ekki fullyrt um ástand og eiginleika þeirra hluta fasteigna sem ekki eru aðgengilegir og sjást ekki berum augum, t.d. lagnir, dren, skólp og þak.
Skoðunarskylda:
Í lögum um fasteignakaup nr. 40/2002 er kveðið á um ríka skoðunarskyldu kaupenda á fasteignum. Vill Borg fasteignasala því benda væntanlegum kaupendum á að kynna sér vel ástand fasteigna fyrir kauptilboðsgerð og leita til þar til bærra sérfræðinga um nánari skoðun ef þurfa þykir.
Gjöld sem kaupandi þarf að standa straum af vegna kaupanna:
1. Stimpilgjald af kaupsamningi, fyrstu kaup (0,4%), almenn kaup (0,8%), lögaðilar (1,6%) af heildarfasteignamati.
2. Þinglýsingargjald af kaupsamningi, veðskuldabréfi, mögulegu veðleyfi.
3. Umsýslugjald til fasteignasölu skv. kauptilboði.
Ár
Fasteignamat
Kaupverð
Stærð
Fermetraverð
1. ágú. 2018
41.750.000 kr.
49.500.000 kr.
126.4 m²
391.614 kr.
20. des. 2010
23.750.000 kr.
22.500.000 kr.
126.4 m²
178.006 kr.
Byggt á upplýsingum úr Þjóðskrá Íslands frá 2006-2025