Upplýsingar
Verðsaga
Byggt 1953
131,5 m²
6 herb.
3 baðherb.
4 svefnh.
Sameiginl. inngangur
Lýsing
Betri Stofan og Þórhallur Biering kynna: Góð fimm herbergja eign með svalir til suðurs á 1.hæð ásamt útleigueiningu í risi á við Grettisgötu 96, 105 Reykjavík. Svokölluð Póstmannablokk sem er 21 íbúða fjölbýlishús í hverjum stigagangi er ein íbúð á hæð. Eign er mjög miðsvæðis og í göngufæri við leik,grunnskóla og í verslanir og ýmsa þjónustu ma. Sundhöll Reykjavíkur, Klambratún og iðandi mannlíf á Laugavegi og í miðbæ Reykjavíkur. Fasteignmat næst árs er kr. 99.500.000.
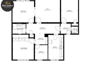
Komið er inn í andyri, inn af andyrinu er gestasalerni og svefnherbergi III (sem er nýtt til útleigu í dag). Þaðan er komið í hol/gang með eldhúsið á vinstri hönd. Beint af augum er Baðherbergið og til hægri stofa/borðstofa (hæglega hægt að loka á milli og nýta sem fjórða svefnherbergið). Á móti borðstofunni er svefnherbergi I og á móti stofunni er svefnherbergi II. Í risi fylgir eigninni herbergi (skrá geymsla) með aðgengi að sameiginlegri eldhúsaðstöðu og baðherbergi, nýtist vel til útleigu.
Eignin telur samtals 131,5 m2 skv. HMS og skiptist í íbúð 116m2 og íbúðarherbergi (geymsla) í risi 15,5m2
Nánari lýsing:
Anddyri: Viðarparket á gólfi,
Eldhús: Eldri innrétting, gott skápapláss, ný borðplata og gólfdúkur á gólfi.
Hol/gangur: Viðarparket á gólfi.
Stofa/Borðstofa: Bjartar og rúmgóðar samliggjandi stofur, harðparket á gólfi gengið úr borðstofu út á svalir til suðurs.
Svefnherbergi I: Fataskápar, gólfdúkur á gólfi.
Svefnherbergi II: Búið er að stækka herbergið út í opna rýmið á teikningunni, parket á gólfi.
Svefnherbergi III: Er hægt að nýta í útleigu með aðgang að gestasalerni í forstofunni, parket á gólfi.
Gestasalerni: Handlaug, salerni, skápar m/speglahurð, gólfdúkur á gólfi:
Baðherbergi: Lítil innrétting m/ handlaug, skápar m/speglahurð, salerni, baðkar, flísar á veggjum og gólfi.
Sérgeymsla: Lítil geymsla er á jarðhæð (undir stiga)
Herbergi í Risi: Herbergi sem notað er í útleigu í dag. (Með aðgang að klósetti og litlu eldhúsi í risi)
Sameign: Sameiginlegt þvottahús er á jarðhæð.
Útgengt er í góðan garð frá jarðhæð hússins, þar sem er m.a. birkitré og rifsberjarunni.
Góð eign með mikla möguleika, sem vert er að skoða.
Frábær staðsetning í miðborginni þar sem að menningin blómstrar allt í kring og göngufæri er í fjölbreytta flóru kaffi- og veitingahúsa.
Allar nánari upplýsingar gefa:
Þórhallur Biering löggiltur fasteignasali í síma 896-8232 eða thorhallur@betristofan.is
Telma Rut Frímannsdóttir, Aðstoðarmaður fasteignasala í síma 772-3555 - eða telma@betristofan.is
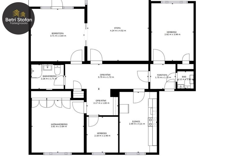
Komið er inn í andyri, inn af andyrinu er gestasalerni og svefnherbergi III (sem er nýtt til útleigu í dag). Þaðan er komið í hol/gang með eldhúsið á vinstri hönd. Beint af augum er Baðherbergið og til hægri stofa/borðstofa (hæglega hægt að loka á milli og nýta sem fjórða svefnherbergið). Á móti borðstofunni er svefnherbergi I og á móti stofunni er svefnherbergi II. Í risi fylgir eigninni herbergi (skrá geymsla) með aðgengi að sameiginlegri eldhúsaðstöðu og baðherbergi, nýtist vel til útleigu.
Eignin telur samtals 131,5 m2 skv. HMS og skiptist í íbúð 116m2 og íbúðarherbergi (geymsla) í risi 15,5m2
Nánari lýsing:
Anddyri: Viðarparket á gólfi,
Eldhús: Eldri innrétting, gott skápapláss, ný borðplata og gólfdúkur á gólfi.
Hol/gangur: Viðarparket á gólfi.
Stofa/Borðstofa: Bjartar og rúmgóðar samliggjandi stofur, harðparket á gólfi gengið úr borðstofu út á svalir til suðurs.
Svefnherbergi I: Fataskápar, gólfdúkur á gólfi.
Svefnherbergi II: Búið er að stækka herbergið út í opna rýmið á teikningunni, parket á gólfi.
Svefnherbergi III: Er hægt að nýta í útleigu með aðgang að gestasalerni í forstofunni, parket á gólfi.
Gestasalerni: Handlaug, salerni, skápar m/speglahurð, gólfdúkur á gólfi:
Baðherbergi: Lítil innrétting m/ handlaug, skápar m/speglahurð, salerni, baðkar, flísar á veggjum og gólfi.
Sérgeymsla: Lítil geymsla er á jarðhæð (undir stiga)
Herbergi í Risi: Herbergi sem notað er í útleigu í dag. (Með aðgang að klósetti og litlu eldhúsi í risi)
Sameign: Sameiginlegt þvottahús er á jarðhæð.
Útgengt er í góðan garð frá jarðhæð hússins, þar sem er m.a. birkitré og rifsberjarunni.
Góð eign með mikla möguleika, sem vert er að skoða.
Frábær staðsetning í miðborginni þar sem að menningin blómstrar allt í kring og göngufæri er í fjölbreytta flóru kaffi- og veitingahúsa.
Allar nánari upplýsingar gefa:
Þórhallur Biering löggiltur fasteignasali í síma 896-8232 eða thorhallur@betristofan.is
Telma Rut Frímannsdóttir, Aðstoðarmaður fasteignasala í síma 772-3555 - eða telma@betristofan.is
Gjöld sem kaupandi þarf að standa straum af ef að kaupum verður:
1. Stimpilgjald af fasteignamati fasteignar er 0.8%, en 0,4% fyrir fyrstu kaup og 1,6% fyrir lögaðila.
2. Þinglýsingargjald: kaupsamningi, skuldabréfi, veðleyfi, afsali o.s.frv. er kr. 2.700 af hverju skjali.
3. Lántökukostnaður samkvæmt verðskrá viðkomandi lánastofnunar.
4. Umsýslugjald til fasteignasölu skv. gjaldskrá.
Ár
Fasteignamat
Kaupverð
Stærð
Fermetraverð
10. júl. 2023
74.900.000 kr.
84.000.000 kr.
131.5 m²
638.783 kr.
Byggt á upplýsingum úr Þjóðskrá Íslands frá 2006-2025