Upplýsingar
Byggt 1967
238,5 m²
7 herb.
2 baðherb.
5 svefnh.
Þvottahús
Bílskúr
Lýsing
Fasteignasalan TORG kynnir :
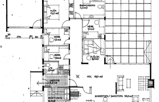
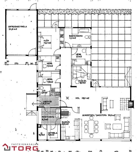
Stórglæsilegt 187,5fm 6 herbergja einbýlishús á einni hæð ásamt 32,6fm bílskúr, samtals : 220,1fm. Frá holi er gengið upp í efri stofu ca.18fm (óskráð hjá FMR) með gluggum á fjóra vegu, mjög fallegt útsýni. Húsið hefur fengið mjög gott viðhald og lítur mjög vel út að utan sem innan. Eignin skiptist í forstofu, hol, eldhús, stofu, borðstofu, efri stofa, baðherbergi, gestasnyrting, 4-5 svefnherbergi, þvottahús, 2 geymslur, bílskúr. Fallegt útsýni er frá stofu. Nánar upplýsingar veitir Helgi Jónsson Löggiltur fasteignasali í síma : 780-2700 eða á helgi@fstorg.is
NÁNARI LÝSING :
Komið er inn í forstofu með skápum, flísar á gólfi. Gestasnyrting með flísum á gólfi og veggjum. Hol með flísum á gólfi. Mjög rúmgóð stofa og borðstofa með gluggum á þrjá vegu, innfelld lýsing í loftum, fallegur arinn, parket á gólfi. Eldhús með fallegri viðar/hvít innréttingu, tengi fyrir uppþvottavél, granít borðplötur, flísar á milli skápa, góður borðkrókur, parket á gólfi. Gangur með parketi á gólfi. Hjónaherbergi með skápum parket á gólfi, útgengt út í garð. Fjögur svefnherbergi með parketi á gólfi. Eitt herbergjana er nýtt sem sjónvarpsherbergi og er ekki hurð á því en lítið mál að breyta því. Mjög rúmgott baðherbergi með walk in sturtu, innréttingu við vask, handklæðaofn, flísar á gólfi og veggjum. Innaf eldhúsi er gott þvottahús með innréttingum, flísar á gólfi og veggjum. Tvær geymslur eru innaf þvottahúsi. Bílskúrinn er með rafmagni, hita og vatni. Mjög fallegur garður er umhverfis húsið með trjágróðri. Stór verönd er út frá stofu. Hellulagt bílaplan er við húsið.
Húsið lítur mjög vel út að utan og hefur fengið gott viðhald.
Endurnýjað : Nýlega var skipt um frárennslislangir undir húsinu ásamt því að nýjar heita- og kaldavatnslagnir voru lagðar inn í húsið. Bæði baðherbergin tekinn í geng 2024. Árið 1997 var skipt um þak á húsinu og stofa efri hæðar bætt við húsið.
Nánar upplýsingar veitir Helgi Jónsson Löggiltur fasteignasali í síma : 780-2700 eða á helgi@fstorg.is
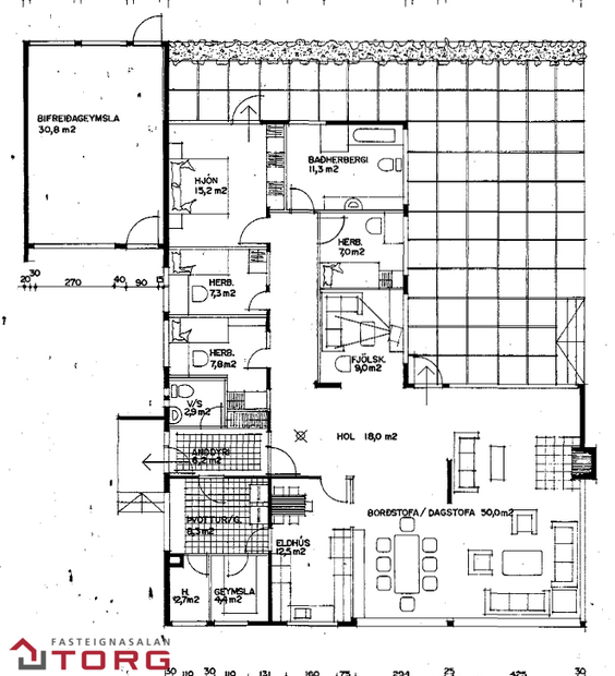
Stórglæsilegt 187,5fm 6 herbergja einbýlishús á einni hæð ásamt 32,6fm bílskúr, samtals : 220,1fm. Frá holi er gengið upp í efri stofu ca.18fm (óskráð hjá FMR) með gluggum á fjóra vegu, mjög fallegt útsýni. Húsið hefur fengið mjög gott viðhald og lítur mjög vel út að utan sem innan. Eignin skiptist í forstofu, hol, eldhús, stofu, borðstofu, efri stofa, baðherbergi, gestasnyrting, 4-5 svefnherbergi, þvottahús, 2 geymslur, bílskúr. Fallegt útsýni er frá stofu. Nánar upplýsingar veitir Helgi Jónsson Löggiltur fasteignasali í síma : 780-2700 eða á helgi@fstorg.is
NÁNARI LÝSING :
Komið er inn í forstofu með skápum, flísar á gólfi. Gestasnyrting með flísum á gólfi og veggjum. Hol með flísum á gólfi. Mjög rúmgóð stofa og borðstofa með gluggum á þrjá vegu, innfelld lýsing í loftum, fallegur arinn, parket á gólfi. Eldhús með fallegri viðar/hvít innréttingu, tengi fyrir uppþvottavél, granít borðplötur, flísar á milli skápa, góður borðkrókur, parket á gólfi. Gangur með parketi á gólfi. Hjónaherbergi með skápum parket á gólfi, útgengt út í garð. Fjögur svefnherbergi með parketi á gólfi. Eitt herbergjana er nýtt sem sjónvarpsherbergi og er ekki hurð á því en lítið mál að breyta því. Mjög rúmgott baðherbergi með walk in sturtu, innréttingu við vask, handklæðaofn, flísar á gólfi og veggjum. Innaf eldhúsi er gott þvottahús með innréttingum, flísar á gólfi og veggjum. Tvær geymslur eru innaf þvottahúsi. Bílskúrinn er með rafmagni, hita og vatni. Mjög fallegur garður er umhverfis húsið með trjágróðri. Stór verönd er út frá stofu. Hellulagt bílaplan er við húsið.
Húsið lítur mjög vel út að utan og hefur fengið gott viðhald.
Endurnýjað : Nýlega var skipt um frárennslislangir undir húsinu ásamt því að nýjar heita- og kaldavatnslagnir voru lagðar inn í húsið. Bæði baðherbergin tekinn í geng 2024. Árið 1997 var skipt um þak á húsinu og stofa efri hæðar bætt við húsið.
Nánar upplýsingar veitir Helgi Jónsson Löggiltur fasteignasali í síma : 780-2700 eða á helgi@fstorg.is