Upplýsingar
Verðsaga
Byggt 2018
88,4 m²
4 herb.
1 baðherb.
3 svefnh.
Sameiginl. inngangur
Bílastæði
Lyfta
Lýsing
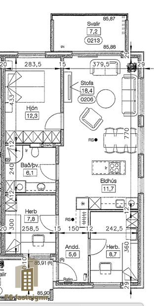
Falleg 4ra herbergja enda íbúð í Davíðshaga 4 á annarri hæð í nýlegu fjölbýli með lyftu og íbúðinni fylgir sér bílastæði í bílageymslu og sér geymsla í kjallara.
Eignin skiptist með eftirfarandi hætti: forstofa, eldhús og stofa í opnu rými, þrjú herbergi og baðherbergi með þvottaaðstöðu. Eigninni fylgir svo sér bílastæði í bílageymslu og sér geymsla í kjallara.
Nánari lýsing:
Forstofa: Vínilparket á gólfi, skápur, útihurð með gleri sem gefur góða birtu.
Eldhús og stofa eru í opnu rými með fallegum gluggum. Í eldhúsi er hvít innrétting með ljósri borðplötu og hvítum flísum milli skápa. Bakaraofn er í vinnuhæð. Eyja með helluborði, góðu borðplássi og skúffum. Fljótandi vínylparket er á eldhúsi og stofu. Úr stofu er rennihurð út á steyptar svalir.
Herbergin eru þrjú öll með góðum hvítum skápum og Vínilparketi á gólfum.
Baðherbergi er með ljósum flísum á gólfi og hvítri innréttingu með ljósri borðplötu. Gott skápapláss í innréttingu og stæði fyrir þvottavél og þurrkara í vinnuhæð. Sturta í horni með glerhurð og upphengt salerni
Sérgeymsla er í kjallara.
Annað:
- Sér bílastæði í bílageymslu.
- Loftksiptikerfi í íbúðinni.
- Gólfhiti.
- Falegar innréttingar.
- Hljóðdempandi plötur í loftum
- Mynddyrasími
- Eignin er í einkasölu á FS fasteignir ehf.
Eignin skiptist með eftirfarandi hætti: forstofa, eldhús og stofa í opnu rými, þrjú herbergi og baðherbergi með þvottaaðstöðu. Eigninni fylgir svo sér bílastæði í bílageymslu og sér geymsla í kjallara.
Nánari lýsing:
Forstofa: Vínilparket á gólfi, skápur, útihurð með gleri sem gefur góða birtu.
Eldhús og stofa eru í opnu rými með fallegum gluggum. Í eldhúsi er hvít innrétting með ljósri borðplötu og hvítum flísum milli skápa. Bakaraofn er í vinnuhæð. Eyja með helluborði, góðu borðplássi og skúffum. Fljótandi vínylparket er á eldhúsi og stofu. Úr stofu er rennihurð út á steyptar svalir.
Herbergin eru þrjú öll með góðum hvítum skápum og Vínilparketi á gólfum.
Baðherbergi er með ljósum flísum á gólfi og hvítri innréttingu með ljósri borðplötu. Gott skápapláss í innréttingu og stæði fyrir þvottavél og þurrkara í vinnuhæð. Sturta í horni með glerhurð og upphengt salerni
Sérgeymsla er í kjallara.
Annað:
- Sér bílastæði í bílageymslu.
- Loftksiptikerfi í íbúðinni.
- Gólfhiti.
- Falegar innréttingar.
- Hljóðdempandi plötur í loftum
- Mynddyrasími
- Eignin er í einkasölu á FS fasteignir ehf.
Ár
Fasteignamat
Kaupverð
Stærð
Fermetraverð
24. mar. 2022
40.550.000 kr.
51.000.000 kr.
88.4 m²
576.923 kr.
4. okt. 2018
2.380.000 kr.
36.534.000 kr.
88.4 m²
413.281 kr.
Byggt á upplýsingum úr Þjóðskrá Íslands frá 2006-2026