Upplýsingar
Byggt 1923
290,4 m²
0 herb.
Aukaíbúð
Lýsing
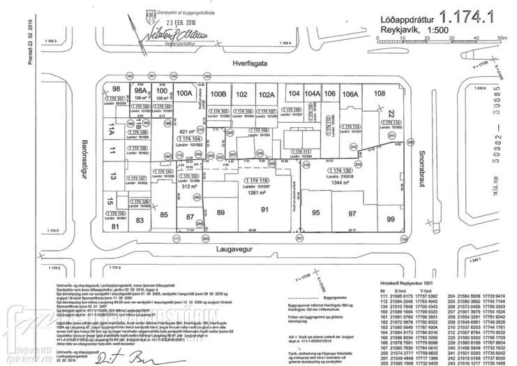
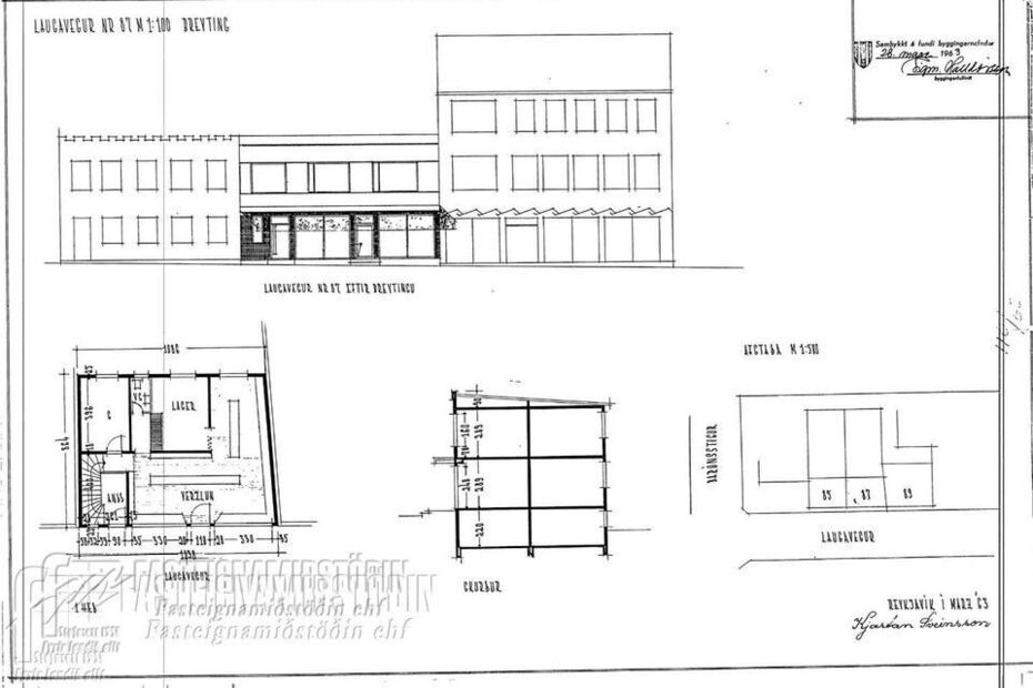
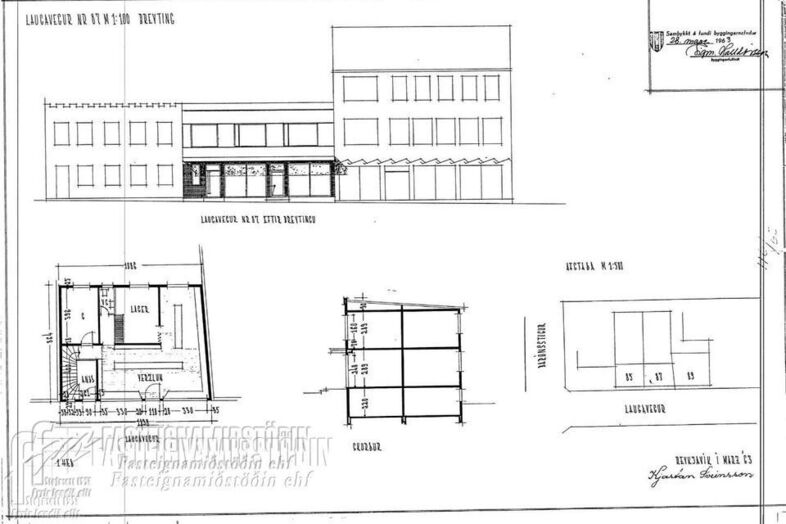
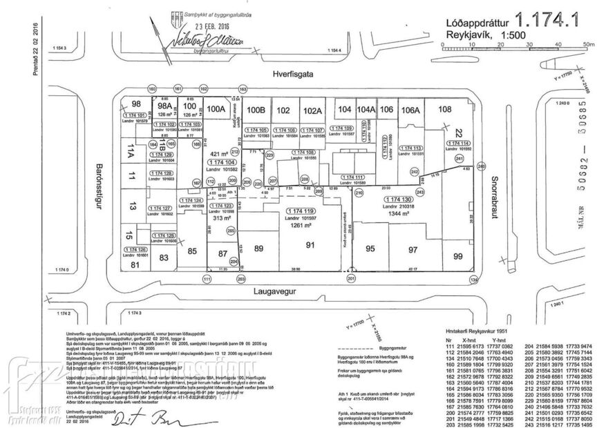
Fasteignamiðstöðin Hlíðasmára 17 Kópavogi sími 550 3000 er með til sölu fasteignina Laugavegur 87, 101 Reykjavík. Fasteignanúmer F200-5358 og landeignanúmer L101598
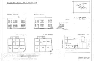
Eignin er í dag alls um 290,4 m2. Verslunarhæðin ásamt kjallara er samtals 189,4 fm. Á annarri hæð er 101 m2 íbúð. Væntanlegur viðbótar byggingarréttur er talinn geta verið allt að 700 m2 ef um hann er sótt. Hér er því um að ræða áhugavert byggingarverkefni. Vel má nýta húsið í núverandi ástandi, húsið er allt í útleigu og getur verið það áfram.
TILBOÐ ÓSKAST.
Nánari upplýsingar gefur Magnús Leópoldsson sími 550 3000 og 892 6000 eða magnus@fasteignamidstodin.is
Tilvísunarnúmer 09-1303
Nánari upplýsingar á skrifstofu Fasteignamiðstöðvarinnar, Hlíðarsmára 17 201 Kópavogi - sími: 550 3000
tölvupóstfang: fasteignamidstodin@fasteignamidstodin.is / leiga@fasteignamidstodin.is
Sjá einnig: fasteignamidstodin.is / jardir.is / fasteignir.is / mbl.is/fasteignir
Eftir lokun skiptiborðs:
Magnús Leópoldsson lögg. fasteignasali sími: 550 3000 og 892 6000 - tölvupóstfang magnus@fasteignamidstodin.is
Guðrún Olsen síma 550 3000 - tölvupóstfang gudrun@fasteignamidstodin.is
María Magnúsdóttir lögfræðingur gsm: 899 5600 - tölvupóstfang maria@fasteignamidstodin.is
Gjöld sem kaupandi þarf að standa straum af vegna kaupanna:
1. Stimpilgjald af kaupsamningi - 0,4% - 0,8% hjá einstaklingum og 1,6% hjá lögaðilum af heildarfasteignamati.
2. Þinglýsingargjald af kaupsamningi, veðskuldabréfum, veðflutningsskjölum, mögulegu veðleyfi o.fl. - kr. 2.700 af hverju skjali.
3. Lántökugjald lánastofnunar - almennt 0,0 - 1,8% af höfuðstól skuldabréfs. Nánari upplýsingar á t.d. heimasíðu lánastofnana.
4. Umsýslugjald til fasteignasölu, sbr. þjónustusamning.
Forsendur söluyfirlits:
Söluyfirlit er samið af fasteignasala í samræmi við ákvæði laga nr. 70/2015. Þær upplýsingar sem fram koma í söluyfirliti þessu eru sóttar í opinberar skrár,
til seljanda sjálfs og eftir atvikum til húsfélags. Seljandi veitir upplýsingar um eign í samræmi við upplýsingaskyldu laga um fasteignakaup nr. 40/2002.
Fasteignasali sannreynir að þær upplýsingar séu réttar með sjónskoðun á eigninni. Fasteignasali getur ekki fullyrt um ástand og eiginleika þeirra hluta
fasteigna sem ekki eru aðgengilegir og sjást ekki berum augum, t.d. lagnir, dren, skólp og þak.
Eignin er í dag alls um 290,4 m2. Verslunarhæðin ásamt kjallara er samtals 189,4 fm. Á annarri hæð er 101 m2 íbúð. Væntanlegur viðbótar byggingarréttur er talinn geta verið allt að 700 m2 ef um hann er sótt. Hér er því um að ræða áhugavert byggingarverkefni. Vel má nýta húsið í núverandi ástandi, húsið er allt í útleigu og getur verið það áfram.
TILBOÐ ÓSKAST.
Nánari upplýsingar gefur Magnús Leópoldsson sími 550 3000 og 892 6000 eða magnus@fasteignamidstodin.is
Tilvísunarnúmer 09-1303
Nánari upplýsingar á skrifstofu Fasteignamiðstöðvarinnar, Hlíðarsmára 17 201 Kópavogi - sími: 550 3000
tölvupóstfang: fasteignamidstodin@fasteignamidstodin.is / leiga@fasteignamidstodin.is
Sjá einnig: fasteignamidstodin.is / jardir.is / fasteignir.is / mbl.is/fasteignir
Eftir lokun skiptiborðs:
Magnús Leópoldsson lögg. fasteignasali sími: 550 3000 og 892 6000 - tölvupóstfang magnus@fasteignamidstodin.is
Guðrún Olsen síma 550 3000 - tölvupóstfang gudrun@fasteignamidstodin.is
María Magnúsdóttir lögfræðingur gsm: 899 5600 - tölvupóstfang maria@fasteignamidstodin.is
Gjöld sem kaupandi þarf að standa straum af vegna kaupanna:
1. Stimpilgjald af kaupsamningi - 0,4% - 0,8% hjá einstaklingum og 1,6% hjá lögaðilum af heildarfasteignamati.
2. Þinglýsingargjald af kaupsamningi, veðskuldabréfum, veðflutningsskjölum, mögulegu veðleyfi o.fl. - kr. 2.700 af hverju skjali.
3. Lántökugjald lánastofnunar - almennt 0,0 - 1,8% af höfuðstól skuldabréfs. Nánari upplýsingar á t.d. heimasíðu lánastofnana.
4. Umsýslugjald til fasteignasölu, sbr. þjónustusamning.
Forsendur söluyfirlits:
Söluyfirlit er samið af fasteignasala í samræmi við ákvæði laga nr. 70/2015. Þær upplýsingar sem fram koma í söluyfirliti þessu eru sóttar í opinberar skrár,
til seljanda sjálfs og eftir atvikum til húsfélags. Seljandi veitir upplýsingar um eign í samræmi við upplýsingaskyldu laga um fasteignakaup nr. 40/2002.
Fasteignasali sannreynir að þær upplýsingar séu réttar með sjónskoðun á eigninni. Fasteignasali getur ekki fullyrt um ástand og eiginleika þeirra hluta
fasteigna sem ekki eru aðgengilegir og sjást ekki berum augum, t.d. lagnir, dren, skólp og þak.