Löggiltir fasteignasalar innan Félags fasteignasala:
Hannes Steindórsson
Bogi Molby Pétursson
Guðrún Antonsdóttir
Heimir Hallgrímsson
Hrafnkell P. H. Pálmason
Viðar Marinósson
Elías Haraldsson
Kristján Þórir Hauksson
Albert Bjarni Úlfarsson
Ragnar Þorsteinsson
Þórey Ólafsdóttir
Andri Freyr Halldórsson
Upplýsingar
Verðsaga
Byggt 2005
76,2 m²
3 herb.
1 baðherb.
2 svefnh.
Þvottahús
Sameiginl. inngangur
Lyfta
Opið hús: 15. mars 2026
kl. 13:30
til 14:00
Opið hús: Daggarvellir 4B, 221 Hafnarfjörður, Íbúð merkt: 02 04 02. Eignin verður sýnd sunnudaginn 15. mars 2026 milli kl. 13:30 og kl. 14:00.
Lýsing
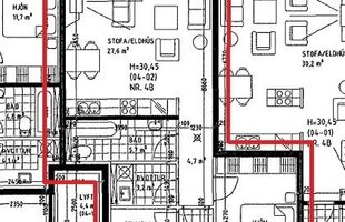
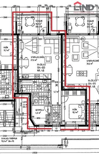
Falleg og vel skipulögð 76,2 fm þriggja herbergja íbúð á 4. hæð við Daggarvelli 4B
Góðar svalir til vesturs með flottur útsýni og góð fjarlægð er í nærliggjandi hús frá svölum. Opið eldhús og bjart alrými. Lyfta er í húsinu.
Mjög góð og barnvæn staðsetning í göngufæri við grunnskóla, leikskóla, íþróttasvæði Hauka að Ásvöllum og Ásvallalaug.
Einnig er í næsta nágrenni ýmiskonar þjónusta m.a apótek, verslanir, bakarí, líkamsræktarstöð og veitingastaðir.
Fallegar gönguleiðir í kringum Ástjörn og víðar eru rétt hjá.
Nánari upplýsingar veitir:
Hrafnkell P. H. Pálmason Löggiltur fasteignasali / 690 8236 / hrafnkell@fastlind.is
Nánari lýsing:
Anddyrið er með flísum á gólfi og góðum fataskáp.
Hol/gangur tengir önnur rými eignar og er með parketi á gólfi.
Stofan, borðastofan og eldhúsið mynda opið og bjart alrými með parketi á gólfi og útgengt á góðar svalir til vestur með flottu útsýni.
Eldhúsið er opið með góðri innréttingu og efri skápum með góðu geymslurými og opnum hillum. Nýlega endurnýjað: vaskur og blöndunartæki, ofn, helluborð og borðplata. Got pláss fyrir ísskáp og uppþvottavél.
Svefnherbergi I er rúmgott með stórum skáp og parketi á gólfi. Gluggi til austurs.
Herbergi II er nýtt sem barnaherbergi (skráð geymsla á teikn.) og er með parketi á gólfi og glugga til austurs með opnalegu fagi.
Baðherbergið er flísalagt í hólf og gólf með snyrtilegri innréttingu, baðkar með sturtuaðstöðu. upphengt og innbyggt salerni og góð þvottaaðstaða með rými fyrir þvottavél og þurrkara..
Önnur geymsla í séreign merkt 406, stærð 5,2fm., og er á sameignar svæði á hæðinni. Stutt í hana frá íbúðinni.
Hjóla- og vagnageymsla á jarðhæð í sameign.
Einnig er við húsið stór sameiginlegur garður með leiktækjum.
Íbúð 402.
Húsið er steinað að utan og byggt árið 2005.
Við Daggarvelli 4B eru 24 íbúðir.
Tilheyrir heildarhúsi 4A-4B og hlutfallstalan þar 1,66% og sama í lóð.
Hlutfallsstala í mhl. 4B er 3,23%
Frábær og barnvæn staðsetning sem er í stuttu göngufæri við grunnskóla, leikskóla, íþróttasvæði Hauka að Ásvöllum og Ásvallalaug.
Einnig er í næsta nágrenni ýmiskonar þjónusta m.a apótek, verslanir, apótek, bakarí og veitingastaðir. Fallegar gönguleiðir í kringum Ástjörn og víðar eru rétt hjá.
Eignin er alls 76,2 fm og skiptist þannig að íbúðin sjálf er 71,0 fm og sér geymsla á sömu hæð er 5,2 fm skv. HMS.
Daggarvellir 4B, 221 Hafnarfjörður, nánar tiltekið eign merkt 04-02, fastanúmer 226-8708 ásamt öllu því sem eigninni fylgir, þar með talið tilheyrandi lóðar og sameignarréttindi.
Eignin Daggarvellir 4B er skráð sem hér segir hjá FMR: Eign 226-8708, birt stærð 76.2 fm. (Skráð sem 2herb íbúð skv. EGS)
Nánari upplýsingar veitir Hrafnkell P. H. Pálmason Löggiltur fasteignasali, í síma 690 8236, tölvupóstur hrafnkell@fastlind.is.
-----------------------------------------------------------------------
Gjöld sem kaupandi þarf að standa straum af vegna kaupanna:
1. Stimpilgjald af kaupsamningi - 0.8% af heildarfasteignamati / 1.6% fyrir lögaðila
Fyrstu kaup - 0,4% af heildarfasteignamati
2. Þinglýsingagjald af kaupsamningi, veðskuldabréfi, veðleyfi o.fl.- kr. 2.700 af hverju skjali.
3. Lántökugjald lánastofnunar
4. Umsýsluþóknun til fasteignasölu, sbr.kauptilboð.
Góðar svalir til vesturs með flottur útsýni og góð fjarlægð er í nærliggjandi hús frá svölum. Opið eldhús og bjart alrými. Lyfta er í húsinu.
Mjög góð og barnvæn staðsetning í göngufæri við grunnskóla, leikskóla, íþróttasvæði Hauka að Ásvöllum og Ásvallalaug.
Einnig er í næsta nágrenni ýmiskonar þjónusta m.a apótek, verslanir, bakarí, líkamsræktarstöð og veitingastaðir.
Fallegar gönguleiðir í kringum Ástjörn og víðar eru rétt hjá.
Nánari upplýsingar veitir:
Hrafnkell P. H. Pálmason Löggiltur fasteignasali / 690 8236 / hrafnkell@fastlind.is
Nánari lýsing:
Anddyrið er með flísum á gólfi og góðum fataskáp.
Hol/gangur tengir önnur rými eignar og er með parketi á gólfi.
Stofan, borðastofan og eldhúsið mynda opið og bjart alrými með parketi á gólfi og útgengt á góðar svalir til vestur með flottu útsýni.
Eldhúsið er opið með góðri innréttingu og efri skápum með góðu geymslurými og opnum hillum. Nýlega endurnýjað: vaskur og blöndunartæki, ofn, helluborð og borðplata. Got pláss fyrir ísskáp og uppþvottavél.
Svefnherbergi I er rúmgott með stórum skáp og parketi á gólfi. Gluggi til austurs.
Herbergi II er nýtt sem barnaherbergi (skráð geymsla á teikn.) og er með parketi á gólfi og glugga til austurs með opnalegu fagi.
Baðherbergið er flísalagt í hólf og gólf með snyrtilegri innréttingu, baðkar með sturtuaðstöðu. upphengt og innbyggt salerni og góð þvottaaðstaða með rými fyrir þvottavél og þurrkara..
Önnur geymsla í séreign merkt 406, stærð 5,2fm., og er á sameignar svæði á hæðinni. Stutt í hana frá íbúðinni.
Hjóla- og vagnageymsla á jarðhæð í sameign.
Einnig er við húsið stór sameiginlegur garður með leiktækjum.
Íbúð 402.
Húsið er steinað að utan og byggt árið 2005.
Við Daggarvelli 4B eru 24 íbúðir.
Tilheyrir heildarhúsi 4A-4B og hlutfallstalan þar 1,66% og sama í lóð.
Hlutfallsstala í mhl. 4B er 3,23%
Frábær og barnvæn staðsetning sem er í stuttu göngufæri við grunnskóla, leikskóla, íþróttasvæði Hauka að Ásvöllum og Ásvallalaug.
Einnig er í næsta nágrenni ýmiskonar þjónusta m.a apótek, verslanir, apótek, bakarí og veitingastaðir. Fallegar gönguleiðir í kringum Ástjörn og víðar eru rétt hjá.
Eignin er alls 76,2 fm og skiptist þannig að íbúðin sjálf er 71,0 fm og sér geymsla á sömu hæð er 5,2 fm skv. HMS.
Daggarvellir 4B, 221 Hafnarfjörður, nánar tiltekið eign merkt 04-02, fastanúmer 226-8708 ásamt öllu því sem eigninni fylgir, þar með talið tilheyrandi lóðar og sameignarréttindi.
Eignin Daggarvellir 4B er skráð sem hér segir hjá FMR: Eign 226-8708, birt stærð 76.2 fm. (Skráð sem 2herb íbúð skv. EGS)
Nánari upplýsingar veitir Hrafnkell P. H. Pálmason Löggiltur fasteignasali, í síma 690 8236, tölvupóstur hrafnkell@fastlind.is.
-----------------------------------------------------------------------
Gjöld sem kaupandi þarf að standa straum af vegna kaupanna:
1. Stimpilgjald af kaupsamningi - 0.8% af heildarfasteignamati / 1.6% fyrir lögaðila
Fyrstu kaup - 0,4% af heildarfasteignamati
2. Þinglýsingagjald af kaupsamningi, veðskuldabréfi, veðleyfi o.fl.- kr. 2.700 af hverju skjali.
3. Lántökugjald lánastofnunar
4. Umsýsluþóknun til fasteignasölu, sbr.kauptilboð.
Ár
Fasteignamat
Kaupverð
Stærð
Fermetraverð
6. feb. 2024
54.200.000 kr.
55.000.000 kr.
76.2 m²
721.785 kr.
25. sep. 2019
31.000.000 kr.
36.000.000 kr.
76.2 m²
472.441 kr.
30. júl. 2014
18.250.000 kr.
20.600.000 kr.
76.2 m²
270.341 kr.
Byggt á upplýsingum úr Þjóðskrá Íslands frá 2006-2026