Löggiltir fasteignasalar innan Félags fasteignasala:
Ástþór Reynir Guðmundsson
Vigdís R. S. Helgadóttir
Guðbjörg Helga Jóhannesdóttir
Gylfi Jens Gylfason
Sigrún Matthea Sigvaldadóttir
Sveinn Gíslason
Páll Guðmundsson
Þórarinn Arnar Sævarsson
Berglind Hólm Birgisdóttir
Þorsteinn Gíslason
Guðrún Lilja Tryggvadóttir
Brynjar Ingólfsson
Guðný Þorsteinsdóttir
Bjarni Blöndal
Þorsteinn Ólafs
Þórdís Björk Davíðsdóttir
Jóhann Kristinn Jóhannesson
Bjarný Björg Arnórsdóttir
Salvör Þóra Davíðsdóttir
Magga Sigríður Gísladóttir
Upplýsingar
Verðsaga
Byggt 2019
94,2 m²
4 herb.
1 baðherb.
2 svefnh.
Þvottahús
Útsýni
Sameiginl. inngangur
Hjólastólaaðgengi
Bílastæði
Lyfta
Opið hús: 14. janúar 2026
kl. 17:30
til 18:00
Opið hús: Gerplustræti 9, 270 Mosfellsbær, Íbúð merkt: 01 04 01. Eignin verður sýnd miðvikudaginn 14. janúar milli kl. 17:30 og 18:00, verið velkomin.
Lýsing
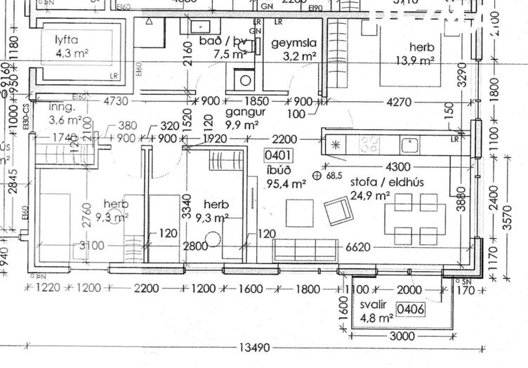
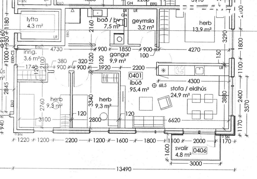
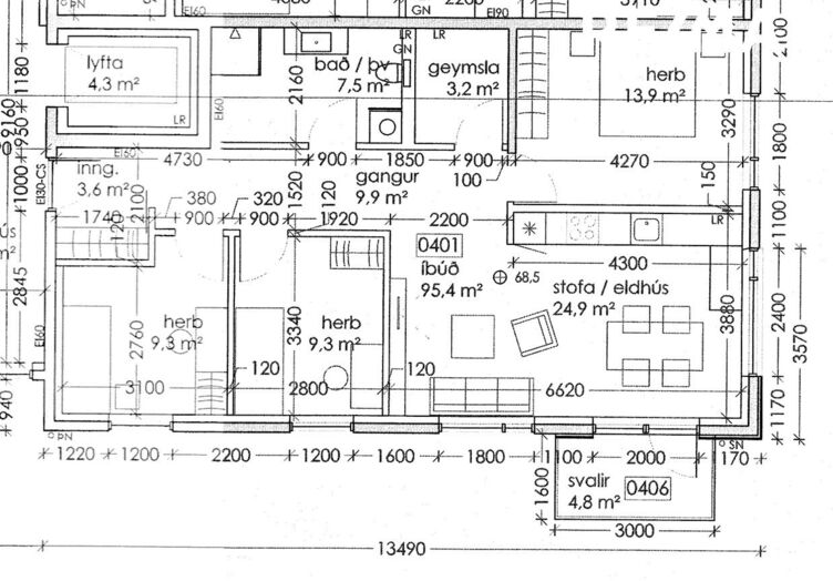
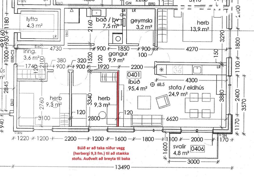
RE/MAX og Guðrún Lilja löggiltur fasteignasali kynna í einkasölu: Einstaklega falleg og björt 3-4 herbergja 94,2 fm. endaíbúð á fjórðu og efstu hæð í nýlegu fjölbýlishúsi við Gerplustræti 9, í Helgafellslandi Mosfellsbæ. Íbúðin skiptist í forstofu, eldhús, rúmgóða borðstofu og stofu með útgengt út á svalir, tvö svefnherbergi (einfalt er að bæta því þriðja við) og baðherbergi með þvottaaðstöðu. Geymsla er innan íbúðar. Vel staðsett bílastæði fylgir íbúð í upphitaðri bílgeymslu.
Góð og fjölskylduvæn staðsetning m.a. í nálægð við Helgafellsskóla og leikskóla, samgöngur og fallega náttúru allt um kring.
FÁÐU SÖLUYFIRLIT MILLILIÐALAUST MEÐ ÞVÍ AÐ SMELLA HÉR
**BÓKIÐ EINKASKOÐUN ** Upplýsingar veitir Guðrún Lilja í síma 867-1231 eða með tölvupósti á netfangið gudrunlilja@remax.is
Nánari lýsing:
Forstofa er með fataskáp og flísum á gólfi, gangur kemur í framhaldi þess. Geymsla er innan íbúðar um 3,2 fm. að stærð en einnig er auka geymsluskápur fyrir íbúð í sameign.
Eldhús er í opnu og björtu rými með vandaðri og stílhreinni innréttingu frá Formus, smíðað upp í loft. Helluborð, bakaraofn og háfur er frá Electrolux, undirlímdur vaskur í borðplötu. Möguleiki er að bæta við eldhúseyju. Íbúðin er á enda svo rýmið er einstaklega bjart og með gólfsíðum gluggum að hluta. Úr eldhúsi er útgengt út á svalir til suðurs með einstöku útsýni.
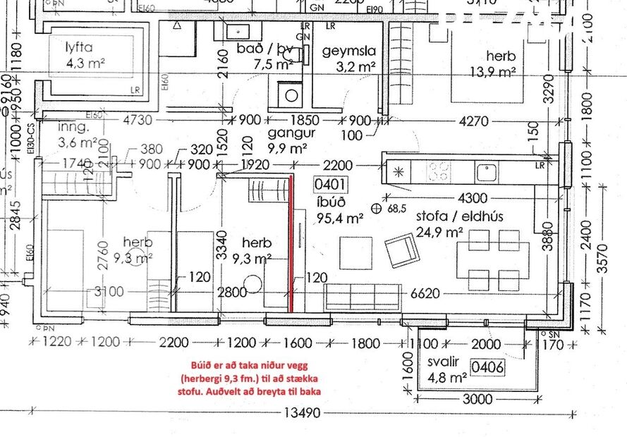
Borðstofa og stofa er í samliggjandi opnu rými við eldhús. Samkvæmt byggingarteikningum er gert ráð fyrir þriðja svefnherberginu í stofu, svo einfalt er að breyta og bæta við þriðja svefnherberginu.
Svefnherbergin eru tvö, bæði mjög rúmgóð og björt með fataskápum.
Baðherbergi er með flíslagt gólf og vegg að hluta. Falleg og stílhrein innrétting frá Formus. Spegill með innbyggðri lýsingu. Sturta er með hertu gleri og handklæðaofn. Salerni er vegghengt með vatnssparandi þrýstirofa, handlaug er í borði innréttingar með einnar handar blöndunartæki. Hitastýrð einnar handar blöndunartæki eru í sturtu. Tengi er fyrir þvottavél og þurrkara inn á baðherbergi með innréttingu og góðum skáp fyrir ofan.
Bílastæði íbúðar er í bílageymslu er merkt 01B09. Einstaklega rúmgott og vel staðsett bílastæði, grunnstöð er fyrir rafmagnsbíl. Heimilt er að bæta við auka geymsluskáp við bílastæði.
Sameiginleg hjóla- og vagnageymsla er á fyrstu hæð. Sameign er öll hin snyrtilegasta og gott aðgengi. Lyfta er í húsinu.
Myndavéladyrasími er í íbúð - Fallegar innréttingar og skápar frá Formus - Vandað harðparket frá Parki - Dimmanlegur rofabúnaður - Einstakt útsýni. Þetta er eign sem vert er að skoða.
Ath. áætlað fasteignamat ársins 2026 er kr. 76.300.000,-
Gjöld sem kaupandi þarf að standa straum af vegna kaupanna: 1. Stimpilgjald af kaupsamningi - 0,8%(einstaklingar) 1.6% (lögaðilar) af heildarfasteignamati. 2. Þinglýsingargjald af kaupsamningi, veðskuldabréfi, mögulegu veðleyfi o.fl. - kr. 2.700 af hverju skjali. 3. Lántökugjald lánastofnunar - almennt 45-75 þús.kr. Nánari upplýsingar á heimasíðu lánastofnana. 4. Umsýslugjald til fasteignasölu kr. 69.900 mvsk.
Góð og fjölskylduvæn staðsetning m.a. í nálægð við Helgafellsskóla og leikskóla, samgöngur og fallega náttúru allt um kring.
FÁÐU SÖLUYFIRLIT MILLILIÐALAUST MEÐ ÞVÍ AÐ SMELLA HÉR
**BÓKIÐ EINKASKOÐUN ** Upplýsingar veitir Guðrún Lilja í síma 867-1231 eða með tölvupósti á netfangið gudrunlilja@remax.is
Nánari lýsing:
Forstofa er með fataskáp og flísum á gólfi, gangur kemur í framhaldi þess. Geymsla er innan íbúðar um 3,2 fm. að stærð en einnig er auka geymsluskápur fyrir íbúð í sameign.
Eldhús er í opnu og björtu rými með vandaðri og stílhreinni innréttingu frá Formus, smíðað upp í loft. Helluborð, bakaraofn og háfur er frá Electrolux, undirlímdur vaskur í borðplötu. Möguleiki er að bæta við eldhúseyju. Íbúðin er á enda svo rýmið er einstaklega bjart og með gólfsíðum gluggum að hluta. Úr eldhúsi er útgengt út á svalir til suðurs með einstöku útsýni.
Borðstofa og stofa er í samliggjandi opnu rými við eldhús. Samkvæmt byggingarteikningum er gert ráð fyrir þriðja svefnherberginu í stofu, svo einfalt er að breyta og bæta við þriðja svefnherberginu.
Svefnherbergin eru tvö, bæði mjög rúmgóð og björt með fataskápum.
Baðherbergi er með flíslagt gólf og vegg að hluta. Falleg og stílhrein innrétting frá Formus. Spegill með innbyggðri lýsingu. Sturta er með hertu gleri og handklæðaofn. Salerni er vegghengt með vatnssparandi þrýstirofa, handlaug er í borði innréttingar með einnar handar blöndunartæki. Hitastýrð einnar handar blöndunartæki eru í sturtu. Tengi er fyrir þvottavél og þurrkara inn á baðherbergi með innréttingu og góðum skáp fyrir ofan.
Bílastæði íbúðar er í bílageymslu er merkt 01B09. Einstaklega rúmgott og vel staðsett bílastæði, grunnstöð er fyrir rafmagnsbíl. Heimilt er að bæta við auka geymsluskáp við bílastæði.
Sameiginleg hjóla- og vagnageymsla er á fyrstu hæð. Sameign er öll hin snyrtilegasta og gott aðgengi. Lyfta er í húsinu.
Myndavéladyrasími er í íbúð - Fallegar innréttingar og skápar frá Formus - Vandað harðparket frá Parki - Dimmanlegur rofabúnaður - Einstakt útsýni. Þetta er eign sem vert er að skoða.
Ath. áætlað fasteignamat ársins 2026 er kr. 76.300.000,-
Gjöld sem kaupandi þarf að standa straum af vegna kaupanna: 1. Stimpilgjald af kaupsamningi - 0,8%(einstaklingar) 1.6% (lögaðilar) af heildarfasteignamati. 2. Þinglýsingargjald af kaupsamningi, veðskuldabréfi, mögulegu veðleyfi o.fl. - kr. 2.700 af hverju skjali. 3. Lántökugjald lánastofnunar - almennt 45-75 þús.kr. Nánari upplýsingar á heimasíðu lánastofnana. 4. Umsýslugjald til fasteignasölu kr. 69.900 mvsk.
Ár
Fasteignamat
Kaupverð
Stærð
Fermetraverð
1. okt. 2020
20.100.000 kr.
50.700.000 kr.
94.2 m²
538.217 kr.
Byggt á upplýsingum úr Þjóðskrá Íslands frá 2006-2026