Löggiltir fasteignasalar innan Félags fasteignasala:
Sverrir Kristinsson
Kjartan Hallgeirsson
Guðlaugur Ingi Guðlaugsson
Daði Hafþórsson
Gunnar Helgi Einarsson
Gunnar Bergmann Jónsson
Lilja Guðmundsdóttir
Jenný Sandra Gunnarsdóttir
Kári Sighvatsson
Vista
fjölbýlishús

Lundur 25

200 Kópavogur

102.500.000 kr.

899.123 þ.kr./m2
Fasteignanúmer

F2359101

Fasteignamat

96.750.000 kr.

Brunabótamat

71.530.000 kr.

Áhvílandi

0 kr.

Arion banki – Reikna lán
Upplýsingar
Verðsaga
svg
Byggt 2016
svg
114 m²
svg
2 herb.
svg
1 baðherb.
svg
1 svefnh.
svg
Þvottahús
svg
Sérinngangur
svg
Bílastæði
svg
Lyfta
svg
Laus strax

Lýsing

Eignamiðlun kynnir:

Vönduð og rúmgóð 114 fm tveggja herbergja íbúð með suðurverönd og yfirbyggðum sólskála í Lundi í Kópavogi. Sér inngangur er að íbúðinni sem er afar vel skipulögð og frágangur vandaður. Innréttingar frá Brúnás, tæki frá AEG og steinn á borðum í eldhúsi og baðherbergi. Innfelld tæki eru á baðherbergi. Stæði í bílageymslu fylgir íbúðinni og rúmgóð geymsla innaf bílastæðinu. Búið að tengja fyrir hleðslustöð. Íbúðin er laus til afhendingar.

Bókið skoðun: Lilja s. 649-3868 eða lilja@eignamidlun.is

**Sækja söluyfirlit**


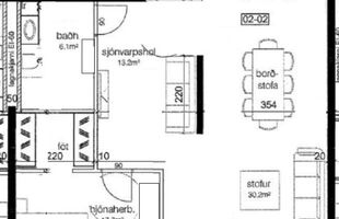
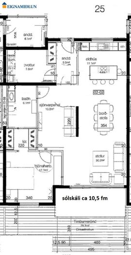
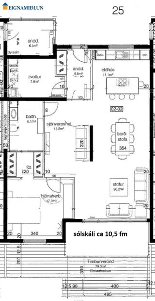
Eignin skiptist í forstofu, rúmgott svefnherbergi með fataherbergi innaf, rúmgóða stofu, sjónvarpshol, eldhús, baðherbergi og rúmgott þvottahús.Íbúðin er skráð 101,9 fm og sérgeymsla í sameign er skráð 12,1 fm. Samtals birt heildarstærð 114 fm. Eigninni fylgir stæði í bílageymslu. Yfirbyggður sólskáli er út frá stofu um 10,5 fm og svo er afgirt sér timburverönd til suðurs ca. 19 fm.

Nánari lýsing:
Forstofa: Gengið er inn um sérinngang í forstofu með góðu skápaplássi.
Eldhús: Eldhús er opið við stofu með vönduðum innréttingum frá Brúnás og tækjum frá AEG. Rúmgóð eyja og steinn á borðum. 
Stofa/borðstofa: Björt og rúmgóð stofa með útgengi í sólskála og út á pall. 
Sjónvarpshol: Gott sjónvarpshol er í miðju íbúðar.
Svefnherbergi: Mjög rúmgott með góðu skápaplássi og fataherbergi innaf.
Baðherbergi: Flísalögð í hólf og gólf með upphengdu salerni, innréttingu, stórri walk-in sturtu og innfeldum blöndunartækjum. Handklæðaofn og gott skápapláss.
Sólskáli: Yfirbyggður 10,5 fm sólskáli með svalalokun sem hægt er að opna að fullu. Ekki inni í fermetratölu íbúðar.
Þvottahús: Rúmgott flísalagt þvottahús er innaf forstofu. Innrétting með rými fyrir þvottavél og þurrkara. 
Bílageymsla: Íbúðinni fylgir stæði í upphitaðri. lokaðri bílageymslu. Búið er að leggja fyrir hleðslustöð. Þvottaaðstaða er fyrir bíla í bílageymslu.
Geymsla: Góð 12,1 fm fylgir íbúðinni og vel staðsett við hlið bílastæðis í bílageymslu.

Nánari upplýsingar:
Lilja Guðmundsdóttir lögg.fasteignasali s. 649-3868 eða lilja@eignamidlun.is

***
Ábyrg þjónusta í áratugi. Eignamiðlun var stofnuð 1957 og er elsta starfandi fasteignasala á Íslandi. Reynsla, heiðarleiki og þekking á fasteignamarkaðnum eru grunnur að farsælum viðskiptum. 

Eignamiðlun Grensásvegi 11, 108 Reykjavík - Opið frá kl. 9-17 mánudaga til fimmtudaga og 9-16 á föstudögum.

Heimasíða Eignamiðlunar

Eignamiðlun á Facebook

img
Lilja Guðmundsdóttir
Lögg.fasteignasali innan félags fasteignasala
Eignamiðlun
Grensásvegi 11, 108 Reykjavík
Eignamiðlun

Eignamiðlun

Grensásvegi 11, 108 Reykjavík
img

Lilja Guðmundsdóttir

Grensásvegi 11, 108 Reykjavík
Ár
Fasteignamat
Kaupverð
Stærð
Fermetraverð
10. maí. 2024
96.050.000 kr.
106.500.000 kr.
10202 m²
10.439 kr.
4. júl. 2023
88.000.000 kr.
82.000.000 kr.
114 m²
719.298 kr.
4. mar. 2021
64.450.000 kr.
59.900.000 kr.
114 m²
525.439 kr.
25. sep. 2018
56.050.000 kr.
56.500.000 kr.
114 m²
495.614 kr.
9. mar. 2017
21.950.000 kr.
48.500.000 kr.
114 m²
425.439 kr.
Byggt á upplýsingum úr Þjóðskrá Íslands frá 2006-2025
Eignamiðlun

Eignamiðlun

Grensásvegi 11, 108 Reykjavík

Lilja Guðmundsdóttir

Grensásvegi 11, 108 Reykjavík