Löggiltir fasteignasalar innan Félags fasteignasala:
Hannes Steindórsson
Bogi Molby Pétursson
Guðrún Antonsdóttir
Heimir Hallgrímsson
Hrafnkell P. H. Pálmason
Viðar Marinósson
Elías Haraldsson
Kristján Þórir Hauksson
Albert Bjarni Úlfarsson
Ragnar Þorsteinsson
Þórey Ólafsdóttir
Andri Freyr Halldórsson
Upplýsingar
Verðsaga
Byggt 1984
76,7 m²
2 herb.
1 baðherb.
1 svefnh.
Sameiginl. inngangur
Lýsing
LIND fasteignasala og Þórey Ólafsdóttir, löggiltur fasteignasali, kynna í einkasölu bjarta og rúmgóða 2 herbergja íbúð með afgirtum suðurgarði, sérafnotarétti og miklu útsýni.
Birt stærð eignar er 76.7 fm samkvæmt Þjóðskrá Íslands, þar af er 6,9 fm geymsla á sömu hæð en eigninni fylgir hlutdeild í sameign, sameiginlegri hjóla- og vagnageymslu.
SMELLTU HÉR TIL AÐ FÁ SENT SÖLUYFIRLIT en annars veiti ég allar frekari upplýsingar í síma 663 2300 eða thorey@fastlind.is
Nánari lýsing:
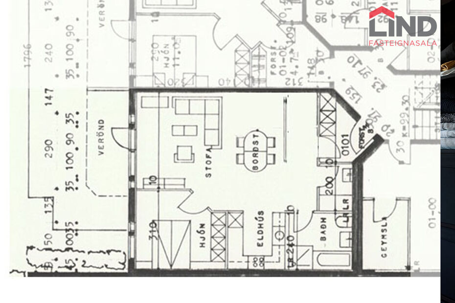
Forstofa með fatahengi, flísar á gólfi.
Eldhús með nýlegri innréttingu og innbyggðri uppþvottavél sem fylgir, harðparket á gólfi.
Stofa og borðstofa, bjart opið rými með miklu útsýni, harðparket á gólfi, útgengt á suðurverönd /sérafnotarétt.
Hjónaherbergi með fataskáp, harðparket á gólfi.
Baðherbergi, flísalagt að mestu með innréttingu, salerni, baðkari og sturtu.
Þvottahús, innan íbúðar þar sem gert er ráð fyrir þvottavél og þurrkara.
Geymsla (6,9 fm) á sömu hæð, málað gólf.
Húsið var í múrviðgerðir og málað að utan, skipt um dyrasíma og sett myndavélasímar árið 2021. Sameign snyrtileg og næg bílastæði á lóð.
Nánari upplýsingar veitir Þórey Ólafsdóttir, löggiltur fasteignasali / B.Sc. í viðskiptafræði í síma 663 2300 eða gegnum thorey@fastlind.is
Á heimasíðunni minni www.thorey.is má skoða umsagnir ánægðra viðskiptavina og kynna sér þjónustuna mína.
Allir kaupendur okkar fá Vildarkort Lindar. Með því að framvísa kortinu færð þú 30% afslátt hjá samstarfsaðilum: Húsgagnahöllin, S. Helgason, Flugger litir, Húsasmiðjan, Z brautir og gluggatjöld, Vídd, Parki, Betra bak, Dorma og Sýn.
Birt stærð eignar er 76.7 fm samkvæmt Þjóðskrá Íslands, þar af er 6,9 fm geymsla á sömu hæð en eigninni fylgir hlutdeild í sameign, sameiginlegri hjóla- og vagnageymslu.
SMELLTU HÉR TIL AÐ FÁ SENT SÖLUYFIRLIT en annars veiti ég allar frekari upplýsingar í síma 663 2300 eða thorey@fastlind.is
Nánari lýsing:
Forstofa með fatahengi, flísar á gólfi.
Eldhús með nýlegri innréttingu og innbyggðri uppþvottavél sem fylgir, harðparket á gólfi.
Stofa og borðstofa, bjart opið rými með miklu útsýni, harðparket á gólfi, útgengt á suðurverönd /sérafnotarétt.
Hjónaherbergi með fataskáp, harðparket á gólfi.
Baðherbergi, flísalagt að mestu með innréttingu, salerni, baðkari og sturtu.
Þvottahús, innan íbúðar þar sem gert er ráð fyrir þvottavél og þurrkara.
Geymsla (6,9 fm) á sömu hæð, málað gólf.
Húsið var í múrviðgerðir og málað að utan, skipt um dyrasíma og sett myndavélasímar árið 2021. Sameign snyrtileg og næg bílastæði á lóð.
Nánari upplýsingar veitir Þórey Ólafsdóttir, löggiltur fasteignasali / B.Sc. í viðskiptafræði í síma 663 2300 eða gegnum thorey@fastlind.is
Á heimasíðunni minni www.thorey.is má skoða umsagnir ánægðra viðskiptavina og kynna sér þjónustuna mína.
Allir kaupendur okkar fá Vildarkort Lindar. Með því að framvísa kortinu færð þú 30% afslátt hjá samstarfsaðilum: Húsgagnahöllin, S. Helgason, Flugger litir, Húsasmiðjan, Z brautir og gluggatjöld, Vídd, Parki, Betra bak, Dorma og Sýn.
Ár
Fasteignamat
Kaupverð
Stærð
Fermetraverð
9. feb. 2024
53.850.000 kr.
50.900.000 kr.
76.7 m²
663.625 kr.
19. des. 2013
16.800.000 kr.
1.769.736.000 kr.
7072.8 m²
250.217 kr.
Byggt á upplýsingum úr Þjóðskrá Íslands frá 2006-2025