Upplýsingar
Verðsaga
Byggt 2013
442,9 m²
4 herb.
3 svefnh.
Lýsing
Fasteignamiðstöðin kynnir eignina Klöpp garyrkjubýli , 320 Reykholt Borgarfirði, fasteignanúmer F210-7660 og landeignanúmer L134424 ásamt öllu því sem eigninni fylgir, þar með talið tilheyrandi 1,3 hektara eignarlóð.
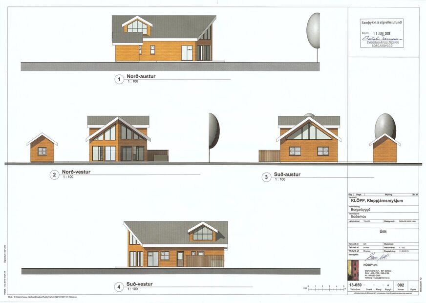
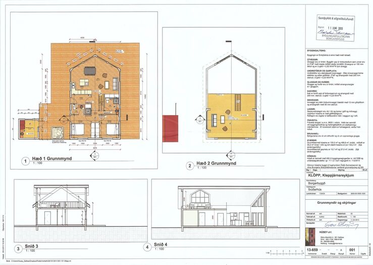
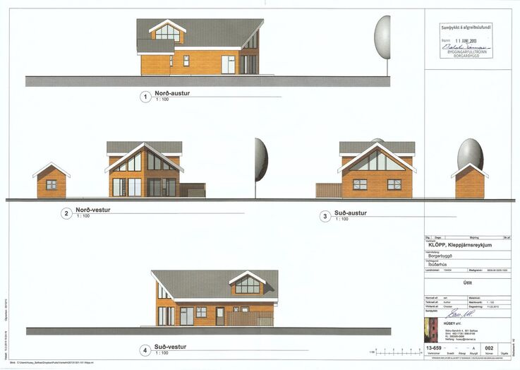
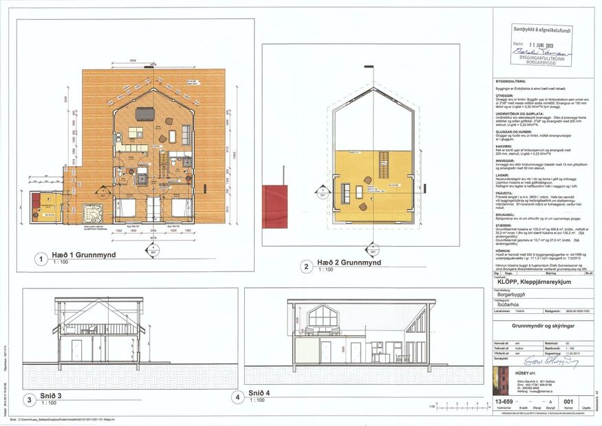
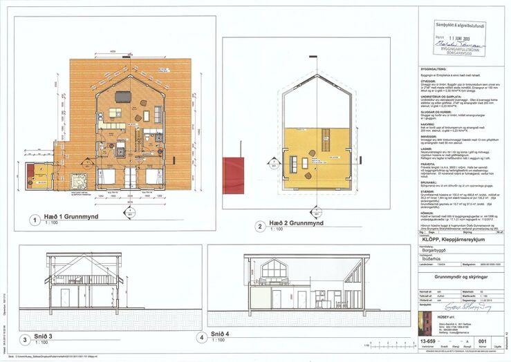
Klöpp er fyrrverandi garðyrkjubýli í útjarðri Kleppjárnsreykja í Borgarfirði. Byggt var nýtt vandað 135,2 m2 einbýlishús og 10,7 m2 geymsla árið 2013 og eldra húsið rifið.
Einnig er einangruð skemmu með steyptu gólfi og niðurföllum ásamt áföstu gróðurhúsi, samtals um 297m2 byggt 1978. Heildarstærð bygginga 442,9m2. Heitt vatn 2 sek/litra sem býður upp á ýmsa möguleika t.d. í ferðaþjónustu og eða í ylrækt. Áhugaverður staður í hjarta Borgarfjarðar sem er í um 75 km akstursfjarlægð frá Mosfellsbæ. Eignin er laus til afhendigar strax.
Í þéttbýliskjarnanum á Kleppjárnsreykjum er grunnskóli og sundlaug. Áhugaverð staðsetning.
Tilvísunarnúmer 10-2712
Nánari upplýsingar á skrifstofu Fasteignamiðstöðvarinnar sími: 550 3000
tölvupóstfang: magnus@fasteignamidstodin.is / fasteignamidstodin@fasteignamidstodin.is / leiga@fasteignamidstodin.is
Sjá einnig: fasteignamidstodin.is / jardir.is / fasteignir.is / mbl.is/fasteignir
Eftir lokun skiptiborðs:
Magnús Leópoldsson lögg. fasteignasali sími: 550 3000 og 892 6000 magnus@fasteignamidstodin.is
Guðrún Olsen síma 550 3000 tölvupóstur gudrun@fasteignamidstodin.is
María Magnúsdóttir lögfræðingur gsm: 899 5600 maria@fasteignamidstodin.is
Gjöld sem kaupandi þarf að standa straum af vegna kaupanna:
1. Stimpilgjald af kaupsamningi - 0,4% - 0,8% hjá einstaklingum og 1,6% hjá lögaðilum af heildarfasteignamati.
2. Þinglýsingargjald af kaupsamningi, veðskuldabréfum, veðflutningsskjölum, mögulegu veðleyfi o.fl. - kr. 2.700 af hverju skjali.
3. Lántökugjald lánastofnunar - almennt 0,0 - 1,8% af höfuðstól skuldabréfs. Nánari upplýsingar á t.d. heimasíðu lánastofnana.
4. Umsýslugjald til fasteignasölu, sbr. þjónustusamning.
Forsendur söluyfirlits:
Söluyfirlit er samið af fasteignasala í samræmi við ákvæði laga nr. 70/2015. Þær upplýsingar sem fram koma í söluyfirliti þessu eru sóttar í opinberar skrár,
til seljanda sjálfs og eftir atvikum til húsfélags. Seljandi veitir upplýsingar um eign í samræmi við upplýsingaskyldu laga um fasteignakaup nr. 40/2002.
Fasteignasali sannreynir að þær upplýsingar séu réttar með sjónskoðun á eigninni. Fasteignasali getur ekki fullyrt um ástand og eiginleika þeirra hluta
fasteigna sem ekki eru aðgengilegir og sjást ekki berum augum, t.d. lagnir, dren, skólp og þak.
Klöpp er fyrrverandi garðyrkjubýli í útjarðri Kleppjárnsreykja í Borgarfirði. Byggt var nýtt vandað 135,2 m2 einbýlishús og 10,7 m2 geymsla árið 2013 og eldra húsið rifið.
Einnig er einangruð skemmu með steyptu gólfi og niðurföllum ásamt áföstu gróðurhúsi, samtals um 297m2 byggt 1978. Heildarstærð bygginga 442,9m2. Heitt vatn 2 sek/litra sem býður upp á ýmsa möguleika t.d. í ferðaþjónustu og eða í ylrækt. Áhugaverður staður í hjarta Borgarfjarðar sem er í um 75 km akstursfjarlægð frá Mosfellsbæ. Eignin er laus til afhendigar strax.
Í þéttbýliskjarnanum á Kleppjárnsreykjum er grunnskóli og sundlaug. Áhugaverð staðsetning.
Tilvísunarnúmer 10-2712
Nánari upplýsingar á skrifstofu Fasteignamiðstöðvarinnar sími: 550 3000
tölvupóstfang: magnus@fasteignamidstodin.is / fasteignamidstodin@fasteignamidstodin.is / leiga@fasteignamidstodin.is
Sjá einnig: fasteignamidstodin.is / jardir.is / fasteignir.is / mbl.is/fasteignir
Eftir lokun skiptiborðs:
Magnús Leópoldsson lögg. fasteignasali sími: 550 3000 og 892 6000 magnus@fasteignamidstodin.is
Guðrún Olsen síma 550 3000 tölvupóstur gudrun@fasteignamidstodin.is
María Magnúsdóttir lögfræðingur gsm: 899 5600 maria@fasteignamidstodin.is
Gjöld sem kaupandi þarf að standa straum af vegna kaupanna:
1. Stimpilgjald af kaupsamningi - 0,4% - 0,8% hjá einstaklingum og 1,6% hjá lögaðilum af heildarfasteignamati.
2. Þinglýsingargjald af kaupsamningi, veðskuldabréfum, veðflutningsskjölum, mögulegu veðleyfi o.fl. - kr. 2.700 af hverju skjali.
3. Lántökugjald lánastofnunar - almennt 0,0 - 1,8% af höfuðstól skuldabréfs. Nánari upplýsingar á t.d. heimasíðu lánastofnana.
4. Umsýslugjald til fasteignasölu, sbr. þjónustusamning.
Forsendur söluyfirlits:
Söluyfirlit er samið af fasteignasala í samræmi við ákvæði laga nr. 70/2015. Þær upplýsingar sem fram koma í söluyfirliti þessu eru sóttar í opinberar skrár,
til seljanda sjálfs og eftir atvikum til húsfélags. Seljandi veitir upplýsingar um eign í samræmi við upplýsingaskyldu laga um fasteignakaup nr. 40/2002.
Fasteignasali sannreynir að þær upplýsingar séu réttar með sjónskoðun á eigninni. Fasteignasali getur ekki fullyrt um ástand og eiginleika þeirra hluta
fasteigna sem ekki eru aðgengilegir og sjást ekki berum augum, t.d. lagnir, dren, skólp og þak.
Ár
Fasteignamat
Kaupverð
Stærð
Fermetraverð
26. jún. 2024
53.070.000 kr.
6.500.000 kr.
20101 m²
323 kr.
Byggt á upplýsingum úr Þjóðskrá Íslands frá 2006-2026