Upplýsingar
Verðsaga
Byggt 1995
107,4 m²
4 herb.
1 baðherb.
3 svefnh.
Þvottahús
Sameiginl. inngangur
Lyfta
Lýsing
101 Reykjavík Fasteignasala kynnir í einkasölu: Vel staðsett fjölskylduvæn íbúð með þremur svefnherbergjum í lyftuhúsi við Gullsmára í Kópavogi.
Vinsæl staðsetning í göngufæri við Smáralind og Smáran. Yfirbyggðar svalir.
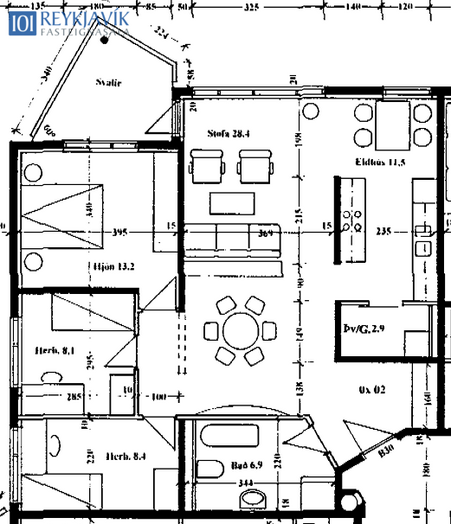
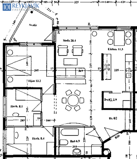
Lýsing eignar:
Forstofa parketlögð og með fataskáp með speglahurðum.
Opið parketlagt rými stofu/borðstofu með útgengi að rúmgóðum svölum. Svalalokun er á svölum.
Eldhús er aðskilið með nettum vegg við stofu/borðstofu. Eldhúsinnrétting með efri og neðri skápum nettur borðkrókur við glugga. Helluborð, vifta og ofn.
Þvottahús/búr er inn af eldhúsi nett borð vaskur og hillur og tenging fyrir þvottavél.
Hjónaherbergi parketlagt og með skáp.
Svefnherbergi parketlagt og með skáp.
Barnaherbergi parketlagt og lokað af með harmonikkuhurð.
Baðherbergi er flísalagt gólf og veggir. Baðkar, sturtuklefi, salerni og handklæðaofn. Baðinnrétting er hvít með neðri skápum, spegill og lýsing í innréttingu.
Sér geymsla er í kjallara hússins.
Sameiginleg hjólageymsla.
Sameiginleg bílastæði við hús.
Góð eign á vinsælum stað í Kópavogi þaðan sem öll helsta þjónusta, skólar leikskólar og afþreying er í göngufæri.
Allar upplýsingar veita: Björg Kristín Sigþórsdóttir s.771-5501 bjorgkristin@101.is og Kristín Sigurey Sigurðardóttir lgf. s.820-8101 kristin@101.is
Bókið skoðun á bjorgkristin@101.is eða í síma 771-5501.
Stimpilgjald af kaupsamningi - 0.8% af fasteignamati (eða 0,4% við fyrstu-kaup kaupanda) eða 1.6% fyrir lögaðila.
1. Þinglýsingagjald af hverju skjali kr. 2.700,-
2. Gjöld sem kaupandi þarf að standa straum af vegna kaupanna:
3. Lántökugjald lánastofnunar - almennt um 1,0% af höfuðstól skuldabréfs.
4. Umsýsluþóknun til fasteignasölu kr. 89.900,- með vsk.
Í lögum um fasteignakaup nr. 40/2002 er kveðið á um ríka skoðunarskyldu kaupenda á fasteignum. 101 Reykjavík Fasteignasala hvetur væntanlega kaupendur til að kynna sér vel ástand fasteigna við skoðun og fyrir tilboðsgerð og ef þurfa þykir að leita til sérfræðinga um nánari ástandsskoðun.
Söluyfirlit er samið af fasteignasala í samræmi við ákvæði laga nr. 70/2015 um sölu fasteigna og skipa. Þær upplýsingar sem fram koma í söluyfirliti þessu eru sóttar í opinberar skrár, til seljanda sjálfs og eftir atvikum húsfélags. Seljandi veitir upplýsingar um eign í samræmi við upplýsingaskyldu laga um fasteignakaup nr. 40/2002. Fasteignasali sannreynir að þær upplýsingar séu réttar með sjónskoðun á eigninni en getur ekki fullyrt um ástand og eiginleika þeirra hluta fasteigna sem eru ekki aðgengilegir og sjást ekki berum augum, t.d. lagnir, dren, skólp, þak osfrv.
Vinsæl staðsetning í göngufæri við Smáralind og Smáran. Yfirbyggðar svalir.
Lýsing eignar:
Forstofa parketlögð og með fataskáp með speglahurðum.
Opið parketlagt rými stofu/borðstofu með útgengi að rúmgóðum svölum. Svalalokun er á svölum.
Eldhús er aðskilið með nettum vegg við stofu/borðstofu. Eldhúsinnrétting með efri og neðri skápum nettur borðkrókur við glugga. Helluborð, vifta og ofn.
Þvottahús/búr er inn af eldhúsi nett borð vaskur og hillur og tenging fyrir þvottavél.
Hjónaherbergi parketlagt og með skáp.
Svefnherbergi parketlagt og með skáp.
Barnaherbergi parketlagt og lokað af með harmonikkuhurð.
Baðherbergi er flísalagt gólf og veggir. Baðkar, sturtuklefi, salerni og handklæðaofn. Baðinnrétting er hvít með neðri skápum, spegill og lýsing í innréttingu.
Sér geymsla er í kjallara hússins.
Sameiginleg hjólageymsla.
Sameiginleg bílastæði við hús.
Góð eign á vinsælum stað í Kópavogi þaðan sem öll helsta þjónusta, skólar leikskólar og afþreying er í göngufæri.
Allar upplýsingar veita: Björg Kristín Sigþórsdóttir s.771-5501 bjorgkristin@101.is og Kristín Sigurey Sigurðardóttir lgf. s.820-8101 kristin@101.is
Bókið skoðun á bjorgkristin@101.is eða í síma 771-5501.
Stimpilgjald af kaupsamningi - 0.8% af fasteignamati (eða 0,4% við fyrstu-kaup kaupanda) eða 1.6% fyrir lögaðila.
1. Þinglýsingagjald af hverju skjali kr. 2.700,-
2. Gjöld sem kaupandi þarf að standa straum af vegna kaupanna:
3. Lántökugjald lánastofnunar - almennt um 1,0% af höfuðstól skuldabréfs.
4. Umsýsluþóknun til fasteignasölu kr. 89.900,- með vsk.
Í lögum um fasteignakaup nr. 40/2002 er kveðið á um ríka skoðunarskyldu kaupenda á fasteignum. 101 Reykjavík Fasteignasala hvetur væntanlega kaupendur til að kynna sér vel ástand fasteigna við skoðun og fyrir tilboðsgerð og ef þurfa þykir að leita til sérfræðinga um nánari ástandsskoðun.
Söluyfirlit er samið af fasteignasala í samræmi við ákvæði laga nr. 70/2015 um sölu fasteigna og skipa. Þær upplýsingar sem fram koma í söluyfirliti þessu eru sóttar í opinberar skrár, til seljanda sjálfs og eftir atvikum húsfélags. Seljandi veitir upplýsingar um eign í samræmi við upplýsingaskyldu laga um fasteignakaup nr. 40/2002. Fasteignasali sannreynir að þær upplýsingar séu réttar með sjónskoðun á eigninni en getur ekki fullyrt um ástand og eiginleika þeirra hluta fasteigna sem eru ekki aðgengilegir og sjást ekki berum augum, t.d. lagnir, dren, skólp, þak osfrv.
Ár
Fasteignamat
Kaupverð
Stærð
Fermetraverð
16. sep. 2025
73.650.000 kr.
74.700.000 kr.
20302 m²
3.679 kr.
Byggt á upplýsingum úr Þjóðskrá Íslands frá 2006-2026