Löggiltir fasteignasalar innan Félags fasteignasala:
Benedikt Ólafsson
Sveinbjörn Rosén Guðlaugsson
Eggert Maríuson
Tinna Bergmann Halldórsdóttir
Vista
svg

1608

svg

1366  Skoðendur

svg

Skráð  19. sep. 2025

fjölbýlishús

Gullsmári 8

201 Kópavogur

72.800.000 kr.

846.512 þ.kr./m2
Fasteignanúmer

F2224208

Fasteignamat

63.450.000 kr.

Brunabótamat

43.450.000 kr.

Áhvílandi

0 kr.

Arion banki – Reikna lán
Upplýsingar
svg
Byggt 1996
svg
86 m²
svg
3 herb.
svg
1 baðherb.
svg
2 svefnh.
svg
Þvottahús
svg
Sameiginl. inngangur
svg
Hjólastólaaðgengi
svg
Lyfta
svg
Laus strax

Lýsing

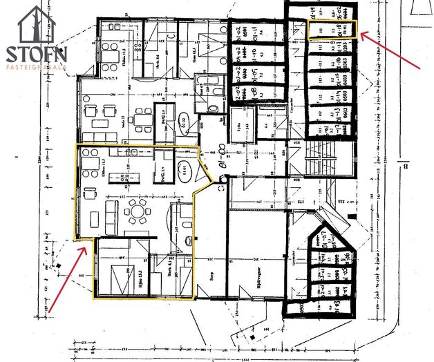
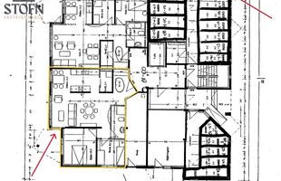
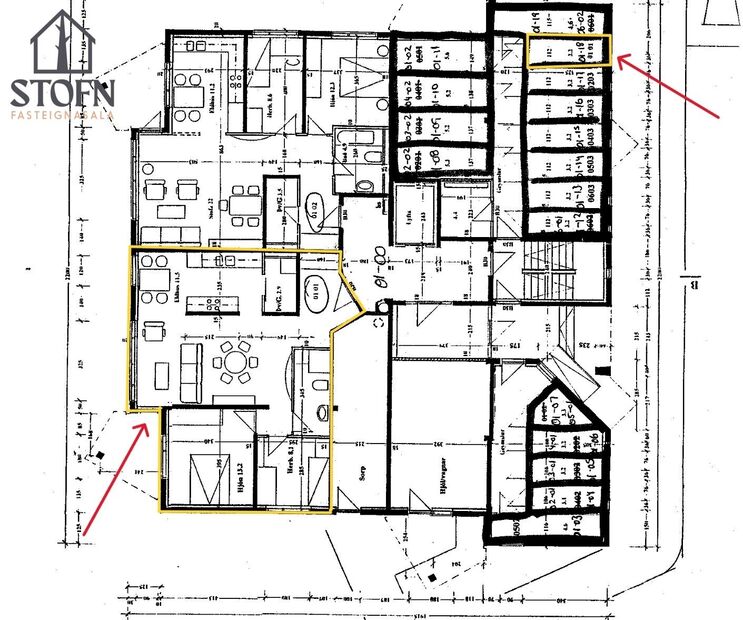
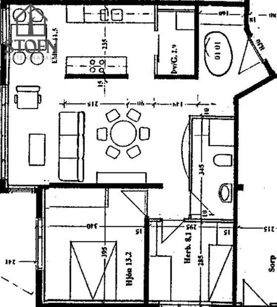
STOFN FASTEIGNASALA og Benedikt Ólafsson Lgf. kynna í einkasölu bjarta og vel skipulagða þriggja herbergja 86,0 fm. íbúð á jarðhæð þar af er 4,1 fm. geymsla merkt. 01-18, íbúðinni fylgir sérafnotareitur. Um er að ræða fjölbýlishús á sjö hæðum, með lyftu við Gullsmára 8 í Kópavogi.
Gullsmári 8, 201 Kópavogur, nánar tiltekið eign merkt 01-01, fastanúmer 222-4208 ásamt öllu því sem eigninni fylgir, þar með talið tilheyrandi lóðar og sameignarréttindi. Eignin Gullsmári 8 er skráð sem hér segir hjá FMR: Eign 222-4208, birt stærð 86.0 fm. 

Nánari upplýsingar veitir Benedikt Ólafsson Löggiltur fasteignasali , í síma 661 7788, tölvupóstur bo@stofnfasteignasala.is.

*Smelltu hér til að skoða myndband um eignina*


*Smelltu hér til að sækja söluyfirlit*


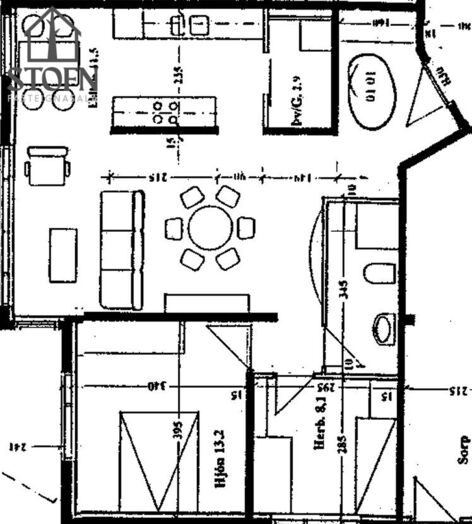
Eignin skiptist í: Forstofu, Stofu, eldhús, borðkrókur, hjónaherbergi, svefnherbergi, baðherbergi, þvottahús, sér geymsla.

Nánari lýsing: 
Forstofa: Rúmgóð forstofa/ andyri, mjög gott skápapláss, Flísar á gólfi.
Stofa: Opið og bjart rými, með parket á gólfi. Frá stofu er gengið út á hellulagða verönd. Möguleiki að setja upp afgirta verönd íbúðinni fylgir sérafnotareitur..
Eldhús: Með viðar innréttingu, ágætis skápapláss, borðkrókur, flísar á gólfi, tengi fyrir uppþvottavél.
Hjónaherbergi: Rúmgott með parket á gólfi, gott skápapláss.
Svefnherbergi: Ágætis svefnherbergi með fataskáp, parket á gólfi.
Baðherbergi: flísalagt í hólf og gólf með ljósum flísum, ljós innrétting og sturta.
Þvottahús: Innaf eldhúsi er þvottahús, flísar á gólfi og skolvaskur. 
Hellulögð verönd: Með möguleika á að gera afgirta verönd íbúðinni fylgir sérafnotareitur..
Geymsla:  Innan sameignar, 4,1 fm
Hjóla- og vagnageymsla: Sameiginleg innan sameignar.

Nánari upplýsingar veitir Benedikt Ólafsson Löggiltur fasteignasali , í síma 661 7788, tölvupóstur bo@stofnfasteignasala.is.

Við hjá STOFN Fasteignasölu setjum þig í fyrsta sætið – með heilindum, metnaði og persónulegri þjónustu.
Það er okkur sannur heiður að fá að vera fasteignasalinn þinn.
STOFN Fasteignasala – Setjum þig í fyrsta sætið.


Forsendur söluyfirlits:
Söluyfirlit er samið af fasteignasala í samræmi við ákvæði laga nr. 70/2015. Þær upplýsingar sem fram koma í söluyfirliti þessu eru sóttar í opinberar skrár, til seljanda sjálfs og eftir atvikum til húsfélags. Seljandi veitir upplýsingar um eign í samræmi við upplýsingaskyldu laga um fasteignakaup nr. 40/2002. Fasteignasali sannreynir að þær upplýsingar séu réttar með sjónskoðun á eigninni. Fasteignasali getur ekki fullyrt um ástand og eiginleika þeirra hluta fasteigna sem ekki eru aðgengilegir og sjást ekki berum augum, t.d. lagnir, dren, skólp og þak.

Um skoðunar- og aðgæsluskyldu:
Í lögum um fasteignakaup nr. 40/2002 er kveðið á um ríka skoðunarskyldu kaupenda á fasteignum. STOFN Fasteignasala ehf. bendir væntanlegum kaupendum á að kynna sér vel ástand fasteigna við skoðun og fyrir tilboðsgerð og ef þurfa þykir að leita til sérfræðinga um nánari ástandsskoðun.

Almennt um fylgifé íbúðarhúsnæðis:
Til fylgifjár íbúðarhúsnæðis teljast varanlegar innréttingar og búnaður sem annaðhvort er skeytt varanlega við fasteignina eða er sérstaklega sniðinn að henni. Þetta á meðal annars við um fastan búnað og lagnir til hitunnar og vatnsmiðlunar, rafmagnsvirki og leiðslur, loftnet og annan móttökubúnað í eigu seljanda, sem fest eru á fasteign, föst gólfteppi og önnur gólfefni sérstaklega tilsniðin, gluggabúnað, bað- og eldhúsinnréttingar og tæki og vélar sem eru sérstaklega felld inn í innréttingarnar og verða hluti af þeim og aðra innbyggða hluta.

Um ástand einstakra eignarhluta:
Efst í söluyfirlitli þessu er að finna dálka um ástand einstakra hluta eignarinnar. Eftirfarandi lykil er til skýringar á þeirri skráningu:
Nýtt - Eignin er nýbygging.
Endurnýjað - Byggingarhlutinn hefur verið endurnýjaður í heild sinni á einhverjum tímapunkti.
Endurnýjað að hluta - Hluti byggingarhlutans hefur verið endurnýjaður á einhverjum tímapunkti.
Upprunalegt - Seljandi veit ekki til þess að byggingarhluti hafi verið endurnýjaður. 
Ekki vitað - Seljandi þekkir ekki til ástands og ekki er hægt að leggja mat á það með sjónskoðun.

Gjöld sem kaupandi þarf að standa straum af vegna kaupanna:
Stimpilgjald af kaupsamningi sem er hlutfall af fasteignamati. Stimpilgjald er 0,8% fyrir einstaklinga (0,4% við fyrstu kaup) og 1,6% fyrir lögaðila.
Þinglýsingargjald af kaupsamningi, veðskuldabréfum, veðleyfum o.fl. Þinglýsingargjald er kr. 2.700,- fyrir hvert skjal.
Lántökugjald lánastofnunar. Um lántökugjald vísast í gjaldskrá viðkomandi lánveitanda.
Umsýsluþóknun fasteignasölu skv. gjaldskrá.
Ef um nýbyggingu er að ræða greiðir kaupandi skipulagsgjald, 0,3% af brunabótamáti, þegar það er lagt á.
 

Forsendur söluyfirlits:
Söluyfirlit er samið af fasteignasala í samræmi við ákvæði laga nr. 70/2015. Þær upplýsingar sem fram koma í söluyfirliti þessu eru sóttar í opinberar skrár, til seljanda sjálfs og eftir atvikum til húsfélags. Seljandi veitir upplýsingar um eign í samræmi við upplýsingaskyldu laga um fasteignakaup nr. 40/2002. Fasteignasali sannreynir að þær upplýsingar séu réttar með sjónskoðun á eigninni. Fasteignasali getur ekki fullyrt um ástand og eiginleika þeirra hluta fasteigna sem ekki eru aðgengilegir og sjást ekki berum augum, t.d. lagnir, dren, skólp og þak.

Um skoðunar- og aðgæsluskyldu:
Í lögum um fasteignakaup nr. 40/2002 er kveðið á um ríka skoðunarskyldu kaupenda á fasteignum. STOFN Fasteignasala ehf. bendir væntanlegum kaupendum á að kynna sér vel ástand fasteigna við skoðun og fyrir tilboðsgerð og ef þurfa þykir að leita til sérfræðinga um nánari ástandsskoðun.

img
Benedikt Ólafsson
Lögg.fasteignasali innan félags fasteignasala
STOFN Fasteignasala ehf.
Lyngási 11, 210 Garðabæ
STOFN Fasteignasala ehf.

STOFN Fasteignasala ehf.

Lyngási 11, 210 Garðabæ
img

Benedikt Ólafsson

Lyngási 11, 210 Garðabæ
STOFN Fasteignasala ehf.

STOFN Fasteignasala ehf.

Lyngási 11, 210 Garðabæ

Benedikt Ólafsson

Lyngási 11, 210 Garðabæ