Upplýsingar
Verðsaga
Byggt 1923
216,1 m²
4 herb.
3 baðherb.
5 svefnh.
Þvottahús
Lýsing
Kasa fasteignir 461-2010.
Hafnarstræti 45. Fallegt og vel staðsett 6-7 herbergja mikið uppgert 216.1 fm. einbýlishús rétt við miðbæ Akureyrar. Frábært útsýni yfir Pollinn.
Húsið hefur verið mikið uppgert á fallegan hátt undanfarinn ár. Fallegt útisvæði með heitum og köldum potti.
Húsið skiptist:
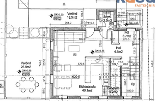
Jærðhæð: Þar eru tveir inngangur og auðvelt er að gera litla íbúð sér einingu á hæðinni. Þar er forstofa, tvö svefnherbergi, hol, baðherbergi einnig
er búið að gera þar sér geymslu.
Aðalhæðin: Hol, rými með fatahengi, baðherbergi, borstofa, stofa og eldhús.
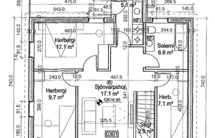
Efrihæð: sjónvarpshol/stofa, þrjú svefnherbergi, baðherbergi.
Jarðhæð:
Forstofa: Þar eru flísar á gólfum, stigi er teppalagður með stálhandriði.
Svefnherbergi: Eru tvö annað mjög rúmgott og annað minna, þar er parket á gólfum.
Baðherbergi: Flísalagt í hólf og gólf upphengt salerni lítil innrétting og sturta.
Hol: Þar er annar inngangur, flísar eru á gólfum.
Geymsla: Er með flísum á gólfum og önnur útgrafin geymsla er inn af geymslunni.
Aðalhæð:
Hol: Þar er parket á gólfum, fatahengi með góðum skúffueiningum er á holinu.
Eldhús: Þar er nýleg falleg innrétting, eldhúsið var stækkað þegar það var endurnýjað. Þar er innbyggður ísskápur og uppþvottavél, vönduð tæki og spanhelluborð.
Eldhúsbekkir og veggir eru flísalagðir með stórum flísum frá Álfaborg enginn samskeyti er á flísum. Vínkælir er í innréttingu. Gott útsýni er yfir Pollinn úr eldhúsi.
Borðstofa/Stofa: Rúmgott rými og gott útsýni með parketi á gólfum, gengið er út frá stofu/holi út á fallega verönd. Fallegur arin setur mikin svip á rýmið.
Baðherbergi: Er flísalagt í hólf og gólf, hvít innrétting, upphengt salerni og sturta. Gönguhurð er út frá baðherbergi út á veröndina en þar eru bæði heitur og kaldur pottur er á neðri palli sunnan við húsið.
Efri hæð:
Veggur við stiga var panelklæddur og málaður í fallegum lit og setur skemmtilegan svip á stigauppgönguna. Parket er á stiga
Hol/stofa: Þar er parket á gólfum og mikið útsýni.
Svefnherbergi: Eru þrjú, tvö þeirra eru notuð sem svefnherbergi í dag og eitt sem fataherbergi en auðvelt er að breyta því aftur í svefnherbergi.
Baðherbergi: Er flísalagt í hólf og gólf, hvít innrétting, upphengt salerni og baðkar með sturtuhengi.
Þvottahús: Þar er góð hvít innrétting og flísar á gólfum, gengið er út á stórar svalir út frá þvottahúsi.
Annað:
- Þakið hefur verið endurnýjað
- Húsið hefur verið endurnýjað að innan á smekklagan hátt.
- Örstutt frá miðbæ Akureyrar.
- Frábært útsýni yfir Pollinn.
- Verönd öll endurnýjuð, heitur og kaldur pottur á neðri verönd.
- Góðar svalir út frá þvottahúsi á efri hæð.
- Tveir inngangar af jarðhæð og auðvelt að bæta við lítilli íbúð.
- Hiti er í stétt framan við húsið.
- Hiti er í bílaplani.
- Góður geymsluskúr er við veröndina.
- Áætlað fasteignamat árið 2026: 105.950.000.-
Nánari upplýsingar veita:
Sigurpáll á sigurpall@kasafasteignir.is eða í síma 696-1006.
Helgi Steinar á helgi@kasafasteignir.is eða í síma 666-0999.
Sibba á sibba@kasafasteignir.is eða í síma 864-0054.
------------
Skoðunarskylda:
Í lögum um fasteignakaup nr. 40/2002 er kveðið á um ríka skoðunarskyldu kaupenda á fasteignum. Kasa fasteignir benda væntanlegum kaupendum á að kynna sér vel ástand fasteigna fyrir kauptilboðsgerð og leita til þar til bærra sérfræðinga um nánari skoðun ef þurfa þykir.
Forsendur söluyfirlits:
Söluyfirlit er samið af fasteignasala í samræmi við ákvæði laga nr. 70/2015. Þær upplýsingar sem fram koma í söluyfirliti þessu eru sóttar í opinberar skrár, til seljanda sjálfs og eftir atvikum til húsfélags. Seljandi veitir upplýsingar um eign í samræmi við upplýsingaskyldu laga um fasteignakaup nr. 40/2002. Fasteignasali sannreynir að þær upplýsingar séu réttar með sjónskoðun á eigninni. Fasteignasali getur ekki fullyrt um ástand og eiginleika þeirra hluta fasteigna sem ekki eru aðgengilegir og sjást ekki berum augum, t.d. lagnir, dren, skólp og þak.
Gjöld sem kaupandi þarf að standa straum af vegna kaupanna:
1. Stimpilgjald sýslumanns af kaupsamningi, fyrstu kaup (0,4%), almenn kaup (0,8%), lögaðilar (1,6%) af heildarfasteignamati eignar.
2. Þinglýsingargjald af kaupsamningi, veðskuldabréfi, mögulegu veðleyfi o.fl. - kr. 2.700 af hverju skjali.
3. Lántökugjald lánastofnunar er skv. verðskrá viðkomandi lánastofnunar. Nánari upplýsingar á t.d. heimasíðu lánastofnana.
4. Umsýslugjald til fasteignasölu skv. kauptilboði.
Hafnarstræti 45. Fallegt og vel staðsett 6-7 herbergja mikið uppgert 216.1 fm. einbýlishús rétt við miðbæ Akureyrar. Frábært útsýni yfir Pollinn.
Húsið hefur verið mikið uppgert á fallegan hátt undanfarinn ár. Fallegt útisvæði með heitum og köldum potti.
Húsið skiptist:
Jærðhæð: Þar eru tveir inngangur og auðvelt er að gera litla íbúð sér einingu á hæðinni. Þar er forstofa, tvö svefnherbergi, hol, baðherbergi einnig
er búið að gera þar sér geymslu.
Aðalhæðin: Hol, rými með fatahengi, baðherbergi, borstofa, stofa og eldhús.
Efrihæð: sjónvarpshol/stofa, þrjú svefnherbergi, baðherbergi.
Jarðhæð:
Forstofa: Þar eru flísar á gólfum, stigi er teppalagður með stálhandriði.
Svefnherbergi: Eru tvö annað mjög rúmgott og annað minna, þar er parket á gólfum.
Baðherbergi: Flísalagt í hólf og gólf upphengt salerni lítil innrétting og sturta.
Hol: Þar er annar inngangur, flísar eru á gólfum.
Geymsla: Er með flísum á gólfum og önnur útgrafin geymsla er inn af geymslunni.
Aðalhæð:
Hol: Þar er parket á gólfum, fatahengi með góðum skúffueiningum er á holinu.
Eldhús: Þar er nýleg falleg innrétting, eldhúsið var stækkað þegar það var endurnýjað. Þar er innbyggður ísskápur og uppþvottavél, vönduð tæki og spanhelluborð.
Eldhúsbekkir og veggir eru flísalagðir með stórum flísum frá Álfaborg enginn samskeyti er á flísum. Vínkælir er í innréttingu. Gott útsýni er yfir Pollinn úr eldhúsi.
Borðstofa/Stofa: Rúmgott rými og gott útsýni með parketi á gólfum, gengið er út frá stofu/holi út á fallega verönd. Fallegur arin setur mikin svip á rýmið.
Baðherbergi: Er flísalagt í hólf og gólf, hvít innrétting, upphengt salerni og sturta. Gönguhurð er út frá baðherbergi út á veröndina en þar eru bæði heitur og kaldur pottur er á neðri palli sunnan við húsið.
Efri hæð:
Veggur við stiga var panelklæddur og málaður í fallegum lit og setur skemmtilegan svip á stigauppgönguna. Parket er á stiga
Hol/stofa: Þar er parket á gólfum og mikið útsýni.
Svefnherbergi: Eru þrjú, tvö þeirra eru notuð sem svefnherbergi í dag og eitt sem fataherbergi en auðvelt er að breyta því aftur í svefnherbergi.
Baðherbergi: Er flísalagt í hólf og gólf, hvít innrétting, upphengt salerni og baðkar með sturtuhengi.
Þvottahús: Þar er góð hvít innrétting og flísar á gólfum, gengið er út á stórar svalir út frá þvottahúsi.
Annað:
- Þakið hefur verið endurnýjað
- Húsið hefur verið endurnýjað að innan á smekklagan hátt.
- Örstutt frá miðbæ Akureyrar.
- Frábært útsýni yfir Pollinn.
- Verönd öll endurnýjuð, heitur og kaldur pottur á neðri verönd.
- Góðar svalir út frá þvottahúsi á efri hæð.
- Tveir inngangar af jarðhæð og auðvelt að bæta við lítilli íbúð.
- Hiti er í stétt framan við húsið.
- Hiti er í bílaplani.
- Góður geymsluskúr er við veröndina.
- Áætlað fasteignamat árið 2026: 105.950.000.-
Nánari upplýsingar veita:
Sigurpáll á sigurpall@kasafasteignir.is eða í síma 696-1006.
Helgi Steinar á helgi@kasafasteignir.is eða í síma 666-0999.
Sibba á sibba@kasafasteignir.is eða í síma 864-0054.
------------
Skoðunarskylda:
Í lögum um fasteignakaup nr. 40/2002 er kveðið á um ríka skoðunarskyldu kaupenda á fasteignum. Kasa fasteignir benda væntanlegum kaupendum á að kynna sér vel ástand fasteigna fyrir kauptilboðsgerð og leita til þar til bærra sérfræðinga um nánari skoðun ef þurfa þykir.
Forsendur söluyfirlits:
Söluyfirlit er samið af fasteignasala í samræmi við ákvæði laga nr. 70/2015. Þær upplýsingar sem fram koma í söluyfirliti þessu eru sóttar í opinberar skrár, til seljanda sjálfs og eftir atvikum til húsfélags. Seljandi veitir upplýsingar um eign í samræmi við upplýsingaskyldu laga um fasteignakaup nr. 40/2002. Fasteignasali sannreynir að þær upplýsingar séu réttar með sjónskoðun á eigninni. Fasteignasali getur ekki fullyrt um ástand og eiginleika þeirra hluta fasteigna sem ekki eru aðgengilegir og sjást ekki berum augum, t.d. lagnir, dren, skólp og þak.
Gjöld sem kaupandi þarf að standa straum af vegna kaupanna:
1. Stimpilgjald sýslumanns af kaupsamningi, fyrstu kaup (0,4%), almenn kaup (0,8%), lögaðilar (1,6%) af heildarfasteignamati eignar.
2. Þinglýsingargjald af kaupsamningi, veðskuldabréfi, mögulegu veðleyfi o.fl. - kr. 2.700 af hverju skjali.
3. Lántökugjald lánastofnunar er skv. verðskrá viðkomandi lánastofnunar. Nánari upplýsingar á t.d. heimasíðu lánastofnana.
4. Umsýslugjald til fasteignasölu skv. kauptilboði.
Ár
Fasteignamat
Kaupverð
Stærð
Fermetraverð
29. jan. 2016
44.200.000 kr.
42.900.000 kr.
216.1 m²
198.519 kr.
Byggt á upplýsingum úr Þjóðskrá Íslands frá 2006-2026