Upplýsingar
Verðsaga
Byggt 1948
135,4 m²
5 herb.
1 baðherb.
4 svefnh.
Þvottahús
Bílskúr
Sameiginl. inngangur
Lýsing
FALLEG 5 HERB. VEL SKIPULÖGÐ ÍBÚÐ ÁSAMT SÉR ÍBÚÐ Í BÍLSKÚR OG SUÐUR VERÖND - 104 REYKJAVÍK!
Samkvæmt skráningu Þjóðskrár Íslands er birt flatarmál eignarinnar 135,4 fm. - Fyrirhugað fasteignamat 2026 kr. 94.650.000,-
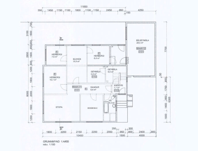
Um er að ræða fallega og rúmgóða 103,1 fm. íbúð með fjórum svefnherbergjum og innréttuðum bílskúr í forsköluðu timburhúsi sem byggt var árið 1948, bílskúr árið 1978.
Gengið er inn í forstofugang, þar strax til vinstri er baðherbergið, stórt svefnherbergi er þar við hliðina og lengra stofan, hjónaherbergið er í enda gangsins. Eldhúsið er hægra megin, beint á móti stofunni. Tvö svefnherbergi eru inn af rúmgóðu eldhúsinu. Þvottahúsið er inn af öðru herberginu, en þaðan er útgangur út á hellulagða vestur verönd með eftirmiðdagssól.
Forstofa/gangur: Flísalögð forstofa, parket á ganginum og gott opið fatahengi.
Eldhús: Mjög rúmgott og góð vinnuaðstaða, mikið skápapláss og falleg eldri uppgerð innrétting, borðkrókur og flísar á gólfi.
Stofa/borðstofa: Bjartar og rúmgóðar, parket á gólfi og gluggar á tvenna vegu.
Baðherbergi: Flísalagt og upphengt salerni, stórt baðkar með sturtuhengi, fallegar innréttingar og rúmgóður skápur, gluggi.
Svefnherbergin: Þrjú herbergi eru parketlögð, eitt með flísum og gott skápapláss er í hjónaherberginu.
Þvottahús/geymsla: Flísar á gólfi og skolvaskur, gott skápapláss, lítil geymsla inn af og sameiginleg geymsla er einnig við innganginn.
Bílskúr: Innréttaður sem íbúð með sér herbergi, skráður 32,3 fm. Baðherbergi með sturtuklefa.
Skúr á lóðinni: Eigninni fylgir einnig geymsluskúr sem er á lóðinni.
Lóðin: Sameiginlegur stór 585 fm. garður, en eigendur hafa haft sér afnot af bakgarðinum í gegnum tíðina.
Að sögn eigenda hefur húsið fengið eftirfarandi viðhald í gegnum tíðina; 2011: Skólpið endurnýjað og skipt um allar vatnslagnir, nýtt klósett og vaskur á baði. 2012: Drenlögn endurnýjuð í kring um húsið. Gólfhiti í öll gólf nema þvottahús og bílskúr. Nýtt gólfefni á öll gólf (nema þvottahús). Innréttuð íbúð í bílskúr. 2017: Geymsluskúr í bakgarði byggður. 2019: Nýtt þak á bílskúr. 2020: Flísar í þvottahúsi. 2024: Íbúðin máluð, eldhúsinnrétting máluð og skipt um borðplötu í eldhúsi.
- Ljósleiðari er kominn inn í íbúðina.
Um er að ræða fallega eign á einstökum, eftirsóttum og fjölskylduvænum stað. Stutt í alla skóla og verslun, ekki má gleyma sjálfum Laugardalnum.
Allar nánari uppl. og skoðun veitir: Jóhann Friðgeir, lgf. GSM: 896-3038 e-mail: johann@hofdi.is
Samkvæmt skráningu Þjóðskrár Íslands er birt flatarmál eignarinnar 135,4 fm. - Fyrirhugað fasteignamat 2026 kr. 94.650.000,-
Um er að ræða fallega og rúmgóða 103,1 fm. íbúð með fjórum svefnherbergjum og innréttuðum bílskúr í forsköluðu timburhúsi sem byggt var árið 1948, bílskúr árið 1978.
Gengið er inn í forstofugang, þar strax til vinstri er baðherbergið, stórt svefnherbergi er þar við hliðina og lengra stofan, hjónaherbergið er í enda gangsins. Eldhúsið er hægra megin, beint á móti stofunni. Tvö svefnherbergi eru inn af rúmgóðu eldhúsinu. Þvottahúsið er inn af öðru herberginu, en þaðan er útgangur út á hellulagða vestur verönd með eftirmiðdagssól.
Forstofa/gangur: Flísalögð forstofa, parket á ganginum og gott opið fatahengi.
Eldhús: Mjög rúmgott og góð vinnuaðstaða, mikið skápapláss og falleg eldri uppgerð innrétting, borðkrókur og flísar á gólfi.
Stofa/borðstofa: Bjartar og rúmgóðar, parket á gólfi og gluggar á tvenna vegu.
Baðherbergi: Flísalagt og upphengt salerni, stórt baðkar með sturtuhengi, fallegar innréttingar og rúmgóður skápur, gluggi.
Svefnherbergin: Þrjú herbergi eru parketlögð, eitt með flísum og gott skápapláss er í hjónaherberginu.
Þvottahús/geymsla: Flísar á gólfi og skolvaskur, gott skápapláss, lítil geymsla inn af og sameiginleg geymsla er einnig við innganginn.
Bílskúr: Innréttaður sem íbúð með sér herbergi, skráður 32,3 fm. Baðherbergi með sturtuklefa.
Skúr á lóðinni: Eigninni fylgir einnig geymsluskúr sem er á lóðinni.
Lóðin: Sameiginlegur stór 585 fm. garður, en eigendur hafa haft sér afnot af bakgarðinum í gegnum tíðina.
Að sögn eigenda hefur húsið fengið eftirfarandi viðhald í gegnum tíðina; 2011: Skólpið endurnýjað og skipt um allar vatnslagnir, nýtt klósett og vaskur á baði. 2012: Drenlögn endurnýjuð í kring um húsið. Gólfhiti í öll gólf nema þvottahús og bílskúr. Nýtt gólfefni á öll gólf (nema þvottahús). Innréttuð íbúð í bílskúr. 2017: Geymsluskúr í bakgarði byggður. 2019: Nýtt þak á bílskúr. 2020: Flísar í þvottahúsi. 2024: Íbúðin máluð, eldhúsinnrétting máluð og skipt um borðplötu í eldhúsi.
- Ljósleiðari er kominn inn í íbúðina.
Um er að ræða fallega eign á einstökum, eftirsóttum og fjölskylduvænum stað. Stutt í alla skóla og verslun, ekki má gleyma sjálfum Laugardalnum.
Allar nánari uppl. og skoðun veitir: Jóhann Friðgeir, lgf. GSM: 896-3038 e-mail: johann@hofdi.is
Ár
Fasteignamat
Kaupverð
Stærð
Fermetraverð
4. nóv. 2011
24.200.000 kr.
27.000.000 kr.
135.4 m²
199.409 kr.
Byggt á upplýsingum úr Þjóðskrá Íslands frá 2006-2025