Upplýsingar
Byggt 1995
103,9 m²
3 herb.
1 baðherb.
2 svefnh.
Þvottahús
Sameiginl. inngangur
Bílastæði
Lyfta
Lýsing
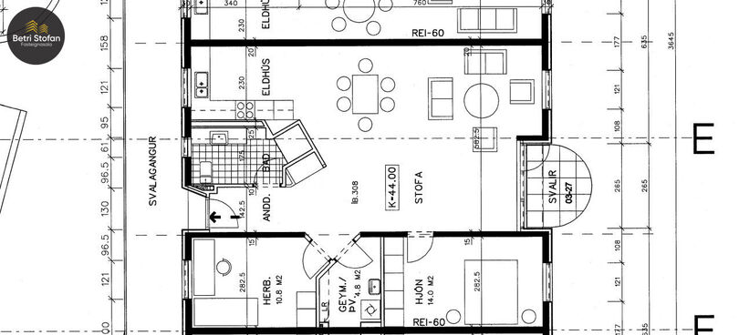
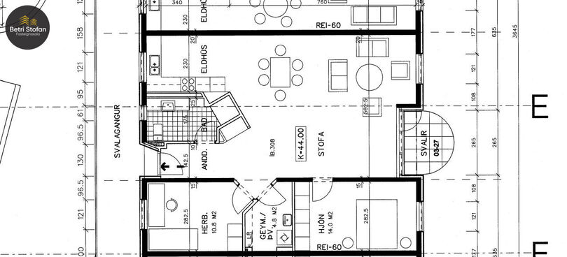
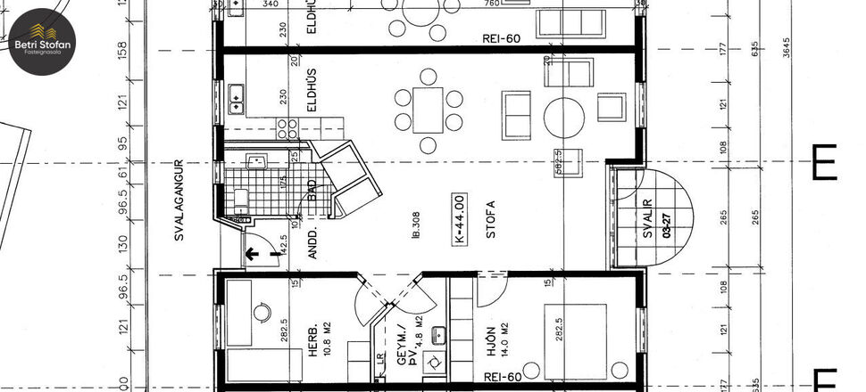
Betri Stofan og Jason fasteignasali kynnir: Glæsileg 103,5 fermetra íbúð við Garðatorg 7. Íbúðin skiptist í forstofu, baðherbergi, eldhús, stofu, tvö svefnherbergi og sér þvottahús. Svalir út frá stofu eru yfirbyggðar og snúa á móti sólu til suðausturs. Geymsla í kjallara og bílastæði í bílakjallara fylgir eigninni.
Laus strax.
BÓKIÐ SKOÐUN:
Jason Kristinn Ólafsson, löggiltur fasteignasali í síma 775-1515 eða jason@betristofan.is
Þórhallur Biering löggiltur fasteignasali í síma 896-8232 eða thorhallur@betristofan.is
Nánari lýsing:
Forstofa er flísalögð og með fataskápum og ofnhillu.
Baðherbergi er með glugga, flísalagt í hólf og gólf með hvítum flísum, flísalögð sturta með hurð og gott skápapláss í innréttingu.
Aukaherbergi er parketlagt og nokkuð rúmgott með fataskápum.
Þvottaherbergi er rúmgott með flísalögðu gólfi, hillum og vaski. Nýtist einnig sem geymsla innan íbúðar.
Hjónaherbergi er rúmgott, parketlagt og með góðu skápaplássi.
Stofan er mjög rúmgóð, parketlögð og björt með útgengi á rúmgóðar og skjólsælar suðursvalir með svalalokun.
Eldhúsið er parketlagt og með fallegum viðarinnréttingum og flísum á milli skápa og tengi fyrir uppþvottavél. Gluggi er á eldhúsi.
Bílastæði: er í lokuðum bílakjallara með sameiginlegri þvottaaðstöðu og rafstýrðri hurð. Búið er aðlaga raflögn í bílageymslu fyrir rafmagnsbíla en hver íbúð þarf að koma sér upp sinni hleðslustöð. Í kjallara er einnig sér geymsla.
Íbúð á 3. hæð í lyftuhúsi með sérinngangi af svalagangi sem snýr inná Garðatorg. Staðsetningin er frábær í miðbæ Garðabæjar þar sem flest öll þjónusta er í göngufæri, sem dæmi má nefna er Heilsugæsla Garðabæjar í sama húsi auk þess sem þjónustukjarni er á jarðhæðinni með margs konar þjónustu (verslanir og veitingahús, bæjarskrifstofa Garðabæjar, rakarastofa, fótaaðgerðarstofa, snyrtistofa og margt fleira). Bónus er hinum megin á torginu og það eru aðeins nokkrir metrar á milli húsanna til að komast í Bónus og fleiri verslanir þeim megin á torginu.
Björt og vel skipulögð 3ja herbergja íbúð á 3. hæð í góðu fjölbýlishúsi með lyftu á þessum eftirsótta stað við Garðatorg í Garðabæ
Nánari upplýsingar veita :
Jason Kristinn Ólafsson, löggiltur fasteignasali í síma 775-1515 eða jason@betristofan.is
Þórhallur Biering löggiltur fasteignasali í síma 896-8232 eða thorhallur@betristofan.is
Laus strax.
BÓKIÐ SKOÐUN:
Jason Kristinn Ólafsson, löggiltur fasteignasali í síma 775-1515 eða jason@betristofan.is
Þórhallur Biering löggiltur fasteignasali í síma 896-8232 eða thorhallur@betristofan.is
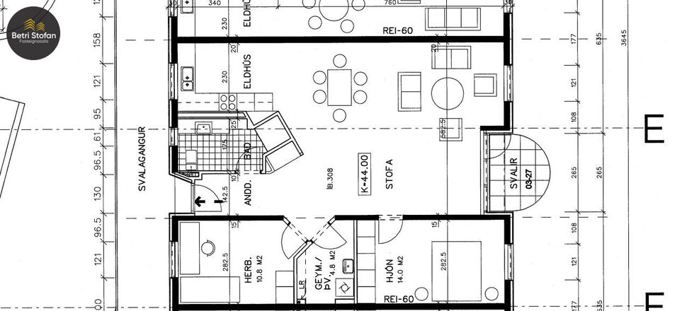
Nánari lýsing:
Forstofa er flísalögð og með fataskápum og ofnhillu.
Baðherbergi er með glugga, flísalagt í hólf og gólf með hvítum flísum, flísalögð sturta með hurð og gott skápapláss í innréttingu.
Aukaherbergi er parketlagt og nokkuð rúmgott með fataskápum.
Þvottaherbergi er rúmgott með flísalögðu gólfi, hillum og vaski. Nýtist einnig sem geymsla innan íbúðar.
Hjónaherbergi er rúmgott, parketlagt og með góðu skápaplássi.
Stofan er mjög rúmgóð, parketlögð og björt með útgengi á rúmgóðar og skjólsælar suðursvalir með svalalokun.
Eldhúsið er parketlagt og með fallegum viðarinnréttingum og flísum á milli skápa og tengi fyrir uppþvottavél. Gluggi er á eldhúsi.
Bílastæði: er í lokuðum bílakjallara með sameiginlegri þvottaaðstöðu og rafstýrðri hurð. Búið er aðlaga raflögn í bílageymslu fyrir rafmagnsbíla en hver íbúð þarf að koma sér upp sinni hleðslustöð. Í kjallara er einnig sér geymsla.
Íbúð á 3. hæð í lyftuhúsi með sérinngangi af svalagangi sem snýr inná Garðatorg. Staðsetningin er frábær í miðbæ Garðabæjar þar sem flest öll þjónusta er í göngufæri, sem dæmi má nefna er Heilsugæsla Garðabæjar í sama húsi auk þess sem þjónustukjarni er á jarðhæðinni með margs konar þjónustu (verslanir og veitingahús, bæjarskrifstofa Garðabæjar, rakarastofa, fótaaðgerðarstofa, snyrtistofa og margt fleira). Bónus er hinum megin á torginu og það eru aðeins nokkrir metrar á milli húsanna til að komast í Bónus og fleiri verslanir þeim megin á torginu.
Björt og vel skipulögð 3ja herbergja íbúð á 3. hæð í góðu fjölbýlishúsi með lyftu á þessum eftirsótta stað við Garðatorg í Garðabæ
Nánari upplýsingar veita :
Jason Kristinn Ólafsson, löggiltur fasteignasali í síma 775-1515 eða jason@betristofan.is
Þórhallur Biering löggiltur fasteignasali í síma 896-8232 eða thorhallur@betristofan.is
Gjöld sem kaupandi þarf að standa straum af ef að kaupum verður:
1. Stimpilgjald af fasteignamati fasteignar er 0.8%, en 0,4% fyrir fyrstu kaup og 1,6% fyrir lögaðila.
2. Þinglýsingargjald: kaupsamningi, skuldabréfi, veðleyfi, afsali o.s.frv. er kr. 2.700 af hverju skjali.
3. Lántökukostnaður samkvæmt verðskrá viðkomandi lánastofnunar.
4. Umsýslugjald til fasteignasölu skv. gjaldskrá.