Löggiltir fasteignasalar innan Félags fasteignasala:
Sverrir Kristinsson
Kjartan Hallgeirsson
Guðlaugur Ingi Guðlaugsson
Daði Hafþórsson
Gunnar Helgi Einarsson
Gunnar Bergmann Jónsson
Lilja Guðmundsdóttir
Jenný Sandra Gunnarsdóttir
Kári Sighvatsson
Vista
svg

4148

svg

3361  Skoðendur

svg

Skráð  19. okt. 2025

fjölbýlishús

Bergstaðastræti 45

101 Reykjavík

64.500.000 kr.

998.452 þ.kr./m2
Fasteignanúmer

F2007029

Fasteignamat

55.500.000 kr.

Brunabótamat

29.600.000 kr.

Áhvílandi

0 kr.

Arion banki – Reikna lán
Upplýsingar
Verðsaga
svg
Byggt 1903
svg
64,6 m²
svg
3 herb.
svg
1 baðherb.
svg
2 svefnh.
svg
Sameiginl. inngangur

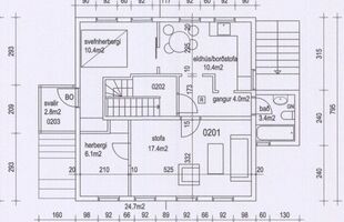
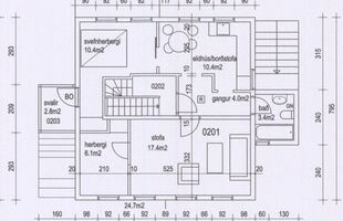
Lýsing

Eignamiðlun kynnir:

Mjög falleg og mikið endurnýjuð 3ja herbergja 64,6 fm íbúð á 2. hæð í litlu fjölbýlishúsi við Bergstaðastræti 45. Um er að ræða eitt af þessum fallegu gömlu timburhúsum í Þingholtunum. Sam. inngangur. Íbúð skiptist í forstofu, stofu, tvö herbergi, eldhús og baðherbergi. Sér geymsla fylgir í kjallara svo og sameiginlegt þvottahús.

NÁNARI UPPL. VEITIR: Magnea S. Sverrisdóttir lg. fasteignasali s. 861 8511, magnea@eignamidlun.is

Nánari lýsing:
Forstofa: Komið er inn í flísalagða forstofu.
Stofa: Stofan er parketlögð.
Eldhús: Eldhúsið er parketlagt. Ljós viðarinnrétting er í eldhúsi. Ofn úr stáli. Pláss fyrir uppþvottavél/þvottavél.
Herbergi 1: Herbergi inn af stofu. Gólf er parketlagt.
Herbergi 2: Herbergi inn af eldhúsi. Gólf er parketlagt. Svalir eru út af herberginu. Nýleg svalahurð.
Baðherbergi: Baðkar með sturtu í. Gluggi er á baðherbergi. Gólf er dúklagt. 
Fasteignamat fyrir árið 2026 er kr. 61.600.000.

Framkvæmdir innanhúss: Raflagnir í íbúðinni hafa nýlega verið endurnýjaðar svo og rafmagnstafla. 
Framkvæmdir utanhúss: Járn utan á húsi og þaki var endurnýjað á s.l. 10 árum (verið er að setja nýtt járn á síðasta hluta hússins núna). Frárennslislangir hafa verið endurnýjaðar en það var gert í tvennu lagi. Árið 2010 voru frárennslislagnir undir húsi endurnýjaðar og árið 2024 voru frárennslislagnir frá húsi og út í götu endurnýjaðar. Gluggar/gler í íbúðinni hefur verið endurnýjað á s.l.10 árum. Nýleg útihurð er á húsinu.

Frábær staðsetning í miðbæ Reykjavíkur. Örstutt í verslanir og helstu þjónustu. Útivistarsvæði í næsta nágrenni.

***
Ábyrg þjónusta í áratugi. Eignamiðlun var stofnuð 1957 og er elsta starfandi fasteignasala á Íslandi. Reynsla, heiðarleiki og þekking á fasteignamarkaðnum eru grunnur að farsælum viðskiptum. 

Eignamiðlun Grensásvegi 11, 108 Reykjavík - Opið frá kl. 9-17 mánudaga til fimmtudaga og 9-16 á föstudögum.

Heimasíða Eignamiðlunar

Eignamiðlun á Facebook

Eignamiðlun

Eignamiðlun

Grensásvegi 11, 108 Reykjavík
Ár
Fasteignamat
Kaupverð
Stærð
Fermetraverð
21. feb. 2025
55.500.000 kr.
56.500.000 kr.
10201 m²
5.539 kr.
Byggt á upplýsingum úr Þjóðskrá Íslands frá 2006-2025
Eignamiðlun

Eignamiðlun

Grensásvegi 11, 108 Reykjavík