Löggiltir fasteignasalar innan Félags fasteignasala:
Óskar Rúnar Harðarson
Jason Guðmundsson
Þröstur Þórhallsson
Ólafur Finnbogason
Kjartan Ísak Guðmundsson
Gústaf Adolf Björnsson
Viðar Böðvarsson
Rakel Viðarsdóttir
Vala Georgsdóttir
Ragnheiður Pétursdóttir
Böðvar Þ. Eggertsson
Vista
fjölbýlishús

Laugaborg 502

105 Reykjavík

124.900.000 kr.

1.073.024 þ.kr./m2
Fasteignanúmer

F2290502

Fasteignamat

2 kr.

Brunabótamat

1 kr.

Áhvílandi

0 kr.

Arion banki – Reikna lán
Upplýsingar
svg
Byggt 2025
svg
116,4 m²
svg
4 herb.
svg
1 baðherb.
svg
2 svefnh.
svg
Sameiginl. inngangur
svg
Lyfta

Lýsing

Miklaborg kynnir: Laugaborg við Kirkjusand er nýtt fjölbýlishús á 3–6 hæðum með skjólgóðum inngarði og sameiginlegum þakgarði sem býður upp á notalegt útsýni og dýrmætar stundir utandyra – í miðbænum sjálfum. Íbúðirnar eru fjölbreyttar að stærð og skipulagi, allar með gólfhita, vönduðum innréttingum og svölum eða sérafnotafleti. Allur úthringur hússins er með svalalokun sem stenst íslensk skilyrði og þolni stuðla. Alls verða bílastæði fyrir tæplega 1000 bifreiðar í sameiginlegri bílageymslu undir svæðinu, þar sem auðvelt aðgengi verður að rafhleðslustöðvum. Lyftur eru í öllum stigagöngum. Ítarlegar upplýsingar má sjá á https://105midborg.is/ibudir/borgartun-41


Bílakjallari: Stór samfelldur bílakjallari og hafa íbúar möguleika á aðgangi að einu eða fleiri bílastæðum í þessum bílakjallara gegn hóflegugjaldi til að mæta rekstrarkostnaði.

Nýr íbúðakjarni sem samanstendur af 115 íbúðum á 6 hæðum afhendast í 4 áföngum . Íbúðarkjarninn í randbyggðarformi umhverfis innigarð. Húsið er partur af nýju hverfi á Kirkjusandi. Græn svæði umlykja bygginguna ásamt þakgarði.

Sjálfstætt loftræstikerfi í öllum íbúðum. Frábær staðsetning rétt við Laugardalinn mikil áhersla er lögð á vistvænar samgöngur og góða aðstöðu fyrir hjólandi og gangandi í hverfinu.


** ÁFANGI 2 FORSALA **


Bókaðu skoðun hjá Gabriel Mána Hallssyni löggiltum fasteignasala í síma 772-2661 eða gabriel@miklaborg.is

NÁNARI LÝSING:

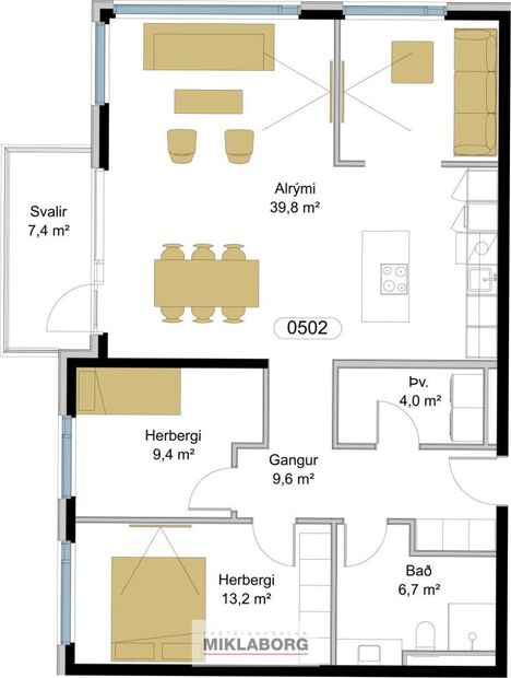
Íbúð 502 er frábær 3ja-4ra herbergja horníbúð á næst efstu hæð með yfirbyggðar vestur svalir. Stendur á norð-vestur horni hússins og er því með fleiri glugga í alrými sem hleypi mikilli náttúrelgri birtu inn í rýmið.

Forstofa: er með sérsmíðuðum fataskáp sem nær upp í loft.
Svefnherbergi: Tvö herbergi, annað með sérsmíðuðum fataskápum sem ná upp í loft.

Aukaherbergi/Sjónvarpshol: opið herbergi inn af alrými sem býður upp á þann möguleika að bæta við þriðja svefnherberginu.
Eldhús: Falleg sérsmíðuð innrétting úr ljósri létthvíttaðri eik með quartz Technistone plötu frá Rein í lit Mystery white á borði, eldhúseyja með sömu plötum á borði og meðfram hliðum eyjunar. Eldhús skilast með vönduðum tækjum frá Siemens, Span helluborði með innbyggðum gufugleypi og bakaraofn með kjöthitamæli og sjálfhreinsibúnaði.
Stofa/alrými: Björt og opin með útgengi úr stofu á vestur svalir.
Baðherbergi: Baðherbergið er með vönduðum sérsmíðuðum innréttingum frá Egger. Borðplata með sömu quartz plötum og í eldhúsi. Sturta með Unidrain gólfrennupakka. Flísar á böðum eru frá Ítalíu, Píemme, seria Journey, litur Otta, stærð 60*120 cm á gólf og veggi, einn veggur með skrautflísum stærð 30*60 cm.

Geymsla: er 11,2 fm

Svalir: 7,4 fm

Allir fata- skápar/forstofuskápar eru sérsmíðaðir og eru ljós grábrúnir á lit með svart lökkuðum handföngum. Innbyggðar skúffur með ljúflokun.

(Myndir á vefnum eru dæmi um útlit eignarinnar en endurspegla ekki alltaf nákvæmlega auglýsta eign)


Nánari upplýsingar veita:


Gabriel Máni Hallsson löggiltur fasteignasali í síma 772-2661 eða gabriel@miklaborg.is

Móeiður Svala Magnúsdóttir löggiltur fasteignasali í síma 8998278 eða moa@miklaborg.is

Jón Rafn Valdimarsson löggiltur fasteignasali í síma 695-5520 eða jon@miklaborg.is

Gústaf Adolf Björnsson löggiltur fasteignasali í síma 895-7205 eða gustaf@miklaborg.is

Íris Arna Geirsdóttir löggiltur fasteignasali í síma 770-0500 eða iris@miklaborg.is

Kjartan Ísak Guðmundsson löggiltur fasteignasali í síma 663-4392 eða kjartan@miklaborg.is

Steinn Andri Viðarsson löggiltur fasteignasali í síma 775-1477 eða steinn@miklaborg.is

Miklaborg fasteignasala

Miklaborg fasteignasala

Lágmúli 4, 108 Reykjavík
Miklaborg fasteignasala

Miklaborg fasteignasala

Lágmúli 4, 108 Reykjavík