Upplýsingar
Verðsaga
Byggt 2003
152,2 m²
4 herb.
1 baðherb.
3 svefnh.
Þvottahús
Bílskúr
Sameiginl. inngangur
Lyfta
Lýsing
****Eignin er seld með fyrirvara sem rennur út 1.desember 2025*****
Domusnova fasteignasala og Andri Hrafn Agnarsson lgf kynna til sölu Kristnibraut 81. Íbúðin er skráð samkvæmt HMS 152,2m2 og þar af er bílskúr 25,2m2. Um er að ræða bjarta endaíbúð á efstu hæð í húsi með lyftu. Húsinu hefur verið vel viðhaldið.
***Fyrirhugað fasteignamat árið 2026 er 94.000.000kr. ***
*Bílskúr með rafmagnsopnara, heitt og kalt vatn. Innangengt frá sameign.
*Sérþvottahús innan íbúðar.
*Suð-vestur svalir.
*Lyfta.
*Útsýni.
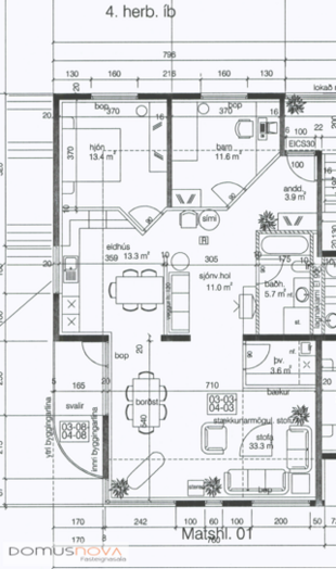
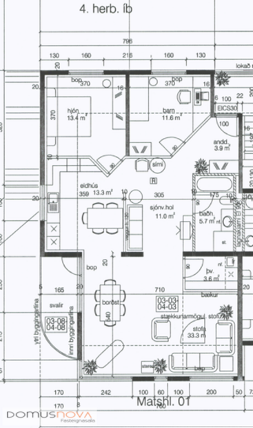
Lýsing eignar:
Forstofa: Komið inn í opna forstofu, gott skápapláss.
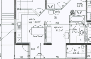
Eldhús: Gott skápapláss. Bakaraofn í vinnuhæð og stæði fyrir uppþvottavél og borðkrókur.
Stofa: Rúmgóð stofa með stórum gluggum til suðurs og vesturs og útgengt út á svalir.
Sjónvarpshorn: Á teikningu er gert ráð fyrir sjónvarpsholi.
Svefnerbergi I: 13,4m2 með góðum skápum og miklu útsýni til norðurs.
Svefnherbergi II: 11,6m2 með góðum skápum og einnig miklu útsýni til norðurs.
Svefnherbergi III: Er í dag nýtt sem svefnhorn en ólokað. Á teikningu er gert ráð fyrir herbergi hér og auðveld framkvæmd að breyta því í samræmi við teikningar.
Baðherbergi: Upphengt WC. Baðkar og sturta. Flísalagt.
Þvottahús: Innan íbúðar. Vaskur er inn í þvottahúsi. Flísar á gólfum.
Gólfefni: Parket er á allri íbúðinni nema í þvottahúsi og baðherbergi sem eru flísalögð.
Bílskúr: 25,2m2. Heitt og kalt vatn, rafmagnsopnari á hurð. Innangengt er frá bílskúr inn í sameign.
Geymsla: Í sameign er rúmgóð geymsla 11,1m2.
Sameign: Í stigahúsinu eru samtals 9 íbúðir og sameignin mjög snyrtileg.
Viðhaldssaga:
*Ástandsskýrsla á húsinu var unnin árið 2022 af Verksýn og í framhaldi var farið í framkvæmdir. Skv húsfélagsyfirlýsingu 3.10.2025 kemur fram að framkvæmdir á vegum skýrslunnar hafa farið fram.
*Á síðasta aðalfundi var ákveðið í að leita tilboða í uppsetningu rafhleðslustöðva á bílastæði. Niðurstaða verður kynnt á næsta húsfundi.
Nánari upplýsingar veita:
Andri Hrafn Agnarsson löggiltur fasteignasali / s.6982127 / andri@domusnova.is
Skrifstofa / s.527-1717 / eignir@domusnova.is
Um skoðunar- og aðgæsluskyldu:
Í lögum um fasteignakaup nr. 40/2002 er kveðið á um ríka skoðunarskyldu kaupenda á fasteignum. DOMUSNOVA fasteignasala bendir væntanlegum kaupendum á að kynna sér vel ástand fasteigna við skoðun og fyrir tilboðsgerð og ef þurfa þykir að leita til sérfræðinga um nánari ástandsskoðun.
Domusnova fasteignasala og Andri Hrafn Agnarsson lgf kynna til sölu Kristnibraut 81. Íbúðin er skráð samkvæmt HMS 152,2m2 og þar af er bílskúr 25,2m2. Um er að ræða bjarta endaíbúð á efstu hæð í húsi með lyftu. Húsinu hefur verið vel viðhaldið.
***Fyrirhugað fasteignamat árið 2026 er 94.000.000kr. ***
*Bílskúr með rafmagnsopnara, heitt og kalt vatn. Innangengt frá sameign.
*Sérþvottahús innan íbúðar.
*Suð-vestur svalir.
*Lyfta.
*Útsýni.
Lýsing eignar:
Forstofa: Komið inn í opna forstofu, gott skápapláss.
Eldhús: Gott skápapláss. Bakaraofn í vinnuhæð og stæði fyrir uppþvottavél og borðkrókur.
Stofa: Rúmgóð stofa með stórum gluggum til suðurs og vesturs og útgengt út á svalir.
Sjónvarpshorn: Á teikningu er gert ráð fyrir sjónvarpsholi.
Svefnerbergi I: 13,4m2 með góðum skápum og miklu útsýni til norðurs.
Svefnherbergi II: 11,6m2 með góðum skápum og einnig miklu útsýni til norðurs.
Svefnherbergi III: Er í dag nýtt sem svefnhorn en ólokað. Á teikningu er gert ráð fyrir herbergi hér og auðveld framkvæmd að breyta því í samræmi við teikningar.
Baðherbergi: Upphengt WC. Baðkar og sturta. Flísalagt.
Þvottahús: Innan íbúðar. Vaskur er inn í þvottahúsi. Flísar á gólfum.
Gólfefni: Parket er á allri íbúðinni nema í þvottahúsi og baðherbergi sem eru flísalögð.
Bílskúr: 25,2m2. Heitt og kalt vatn, rafmagnsopnari á hurð. Innangengt er frá bílskúr inn í sameign.
Geymsla: Í sameign er rúmgóð geymsla 11,1m2.
Sameign: Í stigahúsinu eru samtals 9 íbúðir og sameignin mjög snyrtileg.
Viðhaldssaga:
*Ástandsskýrsla á húsinu var unnin árið 2022 af Verksýn og í framhaldi var farið í framkvæmdir. Skv húsfélagsyfirlýsingu 3.10.2025 kemur fram að framkvæmdir á vegum skýrslunnar hafa farið fram.
*Á síðasta aðalfundi var ákveðið í að leita tilboða í uppsetningu rafhleðslustöðva á bílastæði. Niðurstaða verður kynnt á næsta húsfundi.
Nánari upplýsingar veita:
Andri Hrafn Agnarsson löggiltur fasteignasali / s.6982127 / andri@domusnova.is
Skrifstofa / s.527-1717 / eignir@domusnova.is
Um skoðunar- og aðgæsluskyldu:
Í lögum um fasteignakaup nr. 40/2002 er kveðið á um ríka skoðunarskyldu kaupenda á fasteignum. DOMUSNOVA fasteignasala bendir væntanlegum kaupendum á að kynna sér vel ástand fasteigna við skoðun og fyrir tilboðsgerð og ef þurfa þykir að leita til sérfræðinga um nánari ástandsskoðun.
Ár
Fasteignamat
Kaupverð
Stærð
Fermetraverð
16. jan. 2024
84.400.000 kr.
78.500.000 kr.
152.2 m²
515.769 kr.
Byggt á upplýsingum úr Þjóðskrá Íslands frá 2006-2025