Upplýsingar
Verðsaga
Byggt 1936
78,8 m²
2 herb.
1 baðherb.
1 svefnh.
Þvottahús
Sameiginl. inngangur
Opið hús: 17. nóvember 2025
kl. 12:15
til 12:45
Opið hús: Klapparstígur 13, 101 Reykjavík, Íbúð merkt: 01 03 01. Eignin verður sýnd mánudaginn 17. nóvember 2025 milli kl. 12:15 og kl. 12:45.
Lýsing
Björt og sjarmerandi 2ja til 3ja herbergja íbúð á 3. hæð ásamt rúmgóðu rislofti í litlu fjölbýli í hjarta miðbæjar Reykjavíkur.
** Frábær staðsetning
** Tilvalin fyrstu kaup
Nánari upplýsingar veita:
Hrafnkell Pálmarsson Lgf / MBA. í síma nr 660-1976 eða hrafnkell@palssonfasteignasala.is
www.eignavakt.is
www.verdmat.is
Góð ráð fyrir kaupendur / seljendur
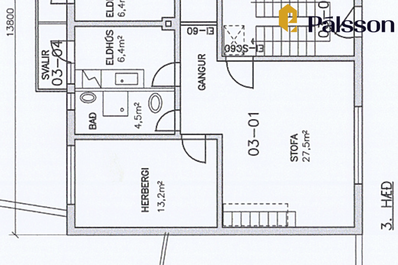
Birt stærð eignar er 78,8m2 þar af risloft/geymsla 18,9m2.
Eignin skiptist í svefnherbergi, baðherbergi, eldhús,stofu og risloft/geymslu.
Nánari lýsing
Stofa er rúmgóð og björt. Parket á gófli.
Eldhús er með sjarmerandi hvítri innréttingu, sambyggðri eldavél með ofni og helluborði og stæði fyrir uppþvottavél. Útgengi á litlar svalir. Parket á gólfi.
Baðherbergi með mósaíkflísum á gólfi og hluta veggja, sturtubotni, handlaug og vegghengdu salerni.
Svefnherbergi er rúmgott með góðum skápum. Parket á gólfi.
Risloft. Gengið er upp tröppuskápa upp á rúmgott risloft sem skráð er 18,9m2 en nýtanlegir fermetrar eru meiri þar sem rýmið er undir súð. Opnanlegur þakgluggi er í rýminu og geymsla undir súð. Risloftið hefur verið nýtt sem svefnherbergi. Málað gólf.
Í kjallara er sameiginlegt þvottahús og þurrkherbergi.
Klapparstígur 13, íbúð merkt 0301, er falleg eign á frábærum stað í miðbænum. Í nálægð við iðandi mannlíf, menningu og helstu þjónustu.
Gjöld sem kaupandi þarf að standa straum af vegna kaupanna:
1. Stimpilgjald af kaupsamningi - 0.8% af heildarfasteignamati / 1.6% fyrir lögaðila. (0.4% við fyrstu kaup einstaklinga).
2. Þinglýsingagjald af kaupsamningi, veðskuldabréfi, veðleyfi o.fl.- kr. 2.700 af hverju skjali.
3. Lántökugjald lánastofnunar - samanber gjaldskrá viðkomandi lánastofnunar.
4. Umsýsluþóknun til fasteignasölu, sbr.kauptilboð.
Um skoðunarskyldu:
Í lögum um fasteignakaup nr. 40/2002 er kveðið á um ríka skoðunarskyldu kaupenda á fasteignum. Pálsson fasteignasala bendir væntanlegum kaupendum á að kynna sér vel ástand fasteigna við skoðun og fyrir tilboðsgerð og ef þurfa þykir að leita til sérfræðinga um nánari ástandsskoðun.
** Frábær staðsetning
** Tilvalin fyrstu kaup
Nánari upplýsingar veita:
Hrafnkell Pálmarsson Lgf / MBA. í síma nr 660-1976 eða hrafnkell@palssonfasteignasala.is
www.eignavakt.is
www.verdmat.is
Góð ráð fyrir kaupendur / seljendur
Birt stærð eignar er 78,8m2 þar af risloft/geymsla 18,9m2.
Eignin skiptist í svefnherbergi, baðherbergi, eldhús,stofu og risloft/geymslu.
Nánari lýsing
Stofa er rúmgóð og björt. Parket á gófli.
Eldhús er með sjarmerandi hvítri innréttingu, sambyggðri eldavél með ofni og helluborði og stæði fyrir uppþvottavél. Útgengi á litlar svalir. Parket á gólfi.
Baðherbergi með mósaíkflísum á gólfi og hluta veggja, sturtubotni, handlaug og vegghengdu salerni.
Svefnherbergi er rúmgott með góðum skápum. Parket á gólfi.
Risloft. Gengið er upp tröppuskápa upp á rúmgott risloft sem skráð er 18,9m2 en nýtanlegir fermetrar eru meiri þar sem rýmið er undir súð. Opnanlegur þakgluggi er í rýminu og geymsla undir súð. Risloftið hefur verið nýtt sem svefnherbergi. Málað gólf.
Í kjallara er sameiginlegt þvottahús og þurrkherbergi.
Klapparstígur 13, íbúð merkt 0301, er falleg eign á frábærum stað í miðbænum. Í nálægð við iðandi mannlíf, menningu og helstu þjónustu.
Gjöld sem kaupandi þarf að standa straum af vegna kaupanna:
1. Stimpilgjald af kaupsamningi - 0.8% af heildarfasteignamati / 1.6% fyrir lögaðila. (0.4% við fyrstu kaup einstaklinga).
2. Þinglýsingagjald af kaupsamningi, veðskuldabréfi, veðleyfi o.fl.- kr. 2.700 af hverju skjali.
3. Lántökugjald lánastofnunar - samanber gjaldskrá viðkomandi lánastofnunar.
4. Umsýsluþóknun til fasteignasölu, sbr.kauptilboð.
Um skoðunarskyldu:
Í lögum um fasteignakaup nr. 40/2002 er kveðið á um ríka skoðunarskyldu kaupenda á fasteignum. Pálsson fasteignasala bendir væntanlegum kaupendum á að kynna sér vel ástand fasteigna við skoðun og fyrir tilboðsgerð og ef þurfa þykir að leita til sérfræðinga um nánari ástandsskoðun.
Ár
Fasteignamat
Kaupverð
Stærð
Fermetraverð
5. jan. 2017
30.800.000 kr.
33.000.000 kr.
78.8 m²
418.782 kr.
Byggt á upplýsingum úr Þjóðskrá Íslands frá 2006-2025