Löggiltir fasteignasalar innan Félags fasteignasala:
Hannes Steindórsson
Bogi Molby Pétursson
Guðrún Antonsdóttir
Heimir Hallgrímsson
Hrafnkell P. H. Pálmason
Viðar Marinósson
Elías Haraldsson
Kristján Þórir Hauksson
Albert Bjarni Úlfarsson
Ragnar Þorsteinsson
Þórey Ólafsdóttir
Andri Freyr Halldórsson
Upplýsingar
Verðsaga
Byggt 1967
195,3 m²
7 herb.
2 baðherb.
5 svefnh.
Þvottahús
Bílskúr
Lýsing
Nýtt á skrá! Tjarnarflöt 9 Garðabæ - Eignin er sýnd í einkasýningum / heimir@fastlind.is / 849-0672.
Lind fasteignasala / Heimir Hallgrímsson lögg. fasteignasali kynnir afar fallegt og vel skipulagt 195,3 fermetra fjölskylduhús á einni hæð með stórum bílskúr við Tjarnarflöt 9 í Garðabæ. Húsið er frábærlega staðsett innarlega í lokuðum og rólegum botnlanga í næsta nágrenni við fallega náttúruna og lækinn í Garðabæ. Eignin samanstendur af fjórum svefnherbergjum, stofum með arni, eldhúsi, sólstofu, þvottaherbergi, búri, sturtuherbergi, baðherbergi, gestasnyrtingu og 38,4 fermetra bílskúrs sem hefur verið breytt að hluta í studioíbúð og hluta í geymslu fyrir hjól o.fl. Stór hluti lóðar og verönd snúa til suðvesturs í góðu skjóli þar sem sólar nýtur allan daginn.
Lóðin er stór, eða 996,0 fermetrar að stærð, með viðarverönd, heitum potti og tyrfðum flötum. Möguleiki er að stækka húsið um allt að 150 fermetra og fylgja teikningar að stækkun með húsinu (sjá einnig myndir). Búið er að steypa undirstöður fyrir grindverki umhverfis lóðina. Geymsluskúr (einangraður með rafmagni) er um 15 fermetra og er staðsettur bakvið bílskúr. Auk þess er u.þ.b. 6 fermetra geymsluskúr staðsettur sömuleiðis bakvið bílskúr. Möguleiki er að stækka heimreið að bílskúr töluvert.
Húsið hefur fengið gott viðhald í gegnum árin. M.a. var skipt um járn á þaki hússins og sólskála og það yfirfarið fyrir sjö árum síðan (ásamt þakrennum). Þá var þak á bílskúr þrifið, pússað og borið á það vatnsfráhrindandi efni. Baðherbergi hefur verið endurnýjað frá grunni ásamt gestasnyrtingu. Skipt var um rafmagnstöflu innan hússins, dregið í rafmagn og skipt um rofa/tengla. Búið er að skipta um alla glugga í húsinu (utan sólskála og baðherbergisglugga). Múr var yfirfarinn og húsið málað að utan sem innan árið 2025. Auk þess er búið að endurnýja ofna í herbergjum, baðherbergjum og forstofu. Nánari samantekt er að finna í lok lýsingar um eignina.
Staðsetning eignarinnar er afar góð á eftirsóknarverðum stað í Flötunum í Garðabæ þaðan sem stutt er í grunnskóla, leikskóla, fjölbrautarskóla, íþróttasvæði auk verslunar, þjónustu og veitingastaða. Ný uppgert leiksvæði er í enda götunnar. Fallegar hjóla- og gönguleiðir í næsta nágrenni, m.a. við lækinn í Garðabæ og upp í Heiðmörk.
Fasteignamat ársins 2026 er kr. 156.100.000,-
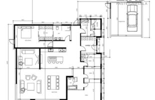
Nánari lýsing:
Forstofa: Með teppi á gólfi, skápum og handklæðaofni.
Gestasnyrting: Með innréttingu við vask, salerni og glugga til suðausturs.
Stofa: Er rúmgóð með parketi á gólfi og stórum gluggum til suðvesturs. Aukin lofthæð að hluta og fallegur arinn. Stofa rúmar mjög vel setustofu og borðstofu.
Borðstofa: Með parketi á gólfi og gluggum til norðvesturs. Gengið er inn í eldhús frá borðstofu.
Eldhús: Er bjart, með parketi á gólfi og gluggum til norðausturs. Sjarmerandi upprunaleg eldhúsinnrétting með góðu vinnuplássi. Tvöfaldur Samsung kæliskápur, vínkælir, uppþvottavél, Samsung bakaraofn, spansuðu helluborð og háfur.
Búr: Er staðsett inn af eldhúsi með hillum.
Þvottaherbergi: Er staðsett inn af eldhúsi. Flotað gólf og sérinngangur frá bakgarði. Tengi fyrir þvottavél og þurrkara. Gluggar til norðausturs, vaskur og fatahengi. Inn af þvottaherbergi er sturta, handklæðaofn og gluggi til suðausturs.
Svefngangur: Með parketi á gólfi. Útgengi í sólskála frá svefngangi.
Sólskáli: Er 18,9 fermetrar að stærð með flísum á gólfi. Upphitaður með rennihurð út á verönd til suðvesturs.
Hjónaherbergi: Með parketi á gólfi, skápum og glugga til suðausturs.
Svefnherbergi II: Er stórt. Búið að opna á milli tveggja barnaherbergja. Hurð enn til staðar og lítið mál að breyta til baka í tvö svefnherbergi. Parket á gólfi og gluggar til suðausturs.
Svefnherbergi III: Með parket á gólfi, skáp og glugga til suðvesturs.
Baðherbergi: Er nýlega endurnýjað. Flísar á gólfi og veggjum. Flísalögð sturta með glerþili. Innrétting við vask, upphengt salerni, handklæðaofn og gluggi til norðvesturs.
Bílskúr: Er stór, eða 38,4 fermetrar að stærð. Búið er að innrétta hluta af bílskúr í studioíbúð með sérinngangi og eldhúskrók (vaskur og kæliskápur). Inn af innkeyrsluhurð er hjóla- og eða útivistargeymsla.
Geymsluskúr: Er um 15 fermetrar að stærð, einangraður og með rafmagni.
Vinnuskúr: Er um 6 fermetrar að stærð.
Nánari upplýsingar:
Heimir Hallgrímsson, lögg. fasteignasali / heimir@fastlind.is / 849-0672
Lind fasteignasala / Heimir Hallgrímsson lögg. fasteignasali kynnir afar fallegt og vel skipulagt 195,3 fermetra fjölskylduhús á einni hæð með stórum bílskúr við Tjarnarflöt 9 í Garðabæ. Húsið er frábærlega staðsett innarlega í lokuðum og rólegum botnlanga í næsta nágrenni við fallega náttúruna og lækinn í Garðabæ. Eignin samanstendur af fjórum svefnherbergjum, stofum með arni, eldhúsi, sólstofu, þvottaherbergi, búri, sturtuherbergi, baðherbergi, gestasnyrtingu og 38,4 fermetra bílskúrs sem hefur verið breytt að hluta í studioíbúð og hluta í geymslu fyrir hjól o.fl. Stór hluti lóðar og verönd snúa til suðvesturs í góðu skjóli þar sem sólar nýtur allan daginn.
Lóðin er stór, eða 996,0 fermetrar að stærð, með viðarverönd, heitum potti og tyrfðum flötum. Möguleiki er að stækka húsið um allt að 150 fermetra og fylgja teikningar að stækkun með húsinu (sjá einnig myndir). Búið er að steypa undirstöður fyrir grindverki umhverfis lóðina. Geymsluskúr (einangraður með rafmagni) er um 15 fermetra og er staðsettur bakvið bílskúr. Auk þess er u.þ.b. 6 fermetra geymsluskúr staðsettur sömuleiðis bakvið bílskúr. Möguleiki er að stækka heimreið að bílskúr töluvert.
Húsið hefur fengið gott viðhald í gegnum árin. M.a. var skipt um járn á þaki hússins og sólskála og það yfirfarið fyrir sjö árum síðan (ásamt þakrennum). Þá var þak á bílskúr þrifið, pússað og borið á það vatnsfráhrindandi efni. Baðherbergi hefur verið endurnýjað frá grunni ásamt gestasnyrtingu. Skipt var um rafmagnstöflu innan hússins, dregið í rafmagn og skipt um rofa/tengla. Búið er að skipta um alla glugga í húsinu (utan sólskála og baðherbergisglugga). Múr var yfirfarinn og húsið málað að utan sem innan árið 2025. Auk þess er búið að endurnýja ofna í herbergjum, baðherbergjum og forstofu. Nánari samantekt er að finna í lok lýsingar um eignina.
Staðsetning eignarinnar er afar góð á eftirsóknarverðum stað í Flötunum í Garðabæ þaðan sem stutt er í grunnskóla, leikskóla, fjölbrautarskóla, íþróttasvæði auk verslunar, þjónustu og veitingastaða. Ný uppgert leiksvæði er í enda götunnar. Fallegar hjóla- og gönguleiðir í næsta nágrenni, m.a. við lækinn í Garðabæ og upp í Heiðmörk.
Fasteignamat ársins 2026 er kr. 156.100.000,-
Nánari lýsing:
Forstofa: Með teppi á gólfi, skápum og handklæðaofni.
Gestasnyrting: Með innréttingu við vask, salerni og glugga til suðausturs.
Stofa: Er rúmgóð með parketi á gólfi og stórum gluggum til suðvesturs. Aukin lofthæð að hluta og fallegur arinn. Stofa rúmar mjög vel setustofu og borðstofu.
Borðstofa: Með parketi á gólfi og gluggum til norðvesturs. Gengið er inn í eldhús frá borðstofu.
Eldhús: Er bjart, með parketi á gólfi og gluggum til norðausturs. Sjarmerandi upprunaleg eldhúsinnrétting með góðu vinnuplássi. Tvöfaldur Samsung kæliskápur, vínkælir, uppþvottavél, Samsung bakaraofn, spansuðu helluborð og háfur.
Búr: Er staðsett inn af eldhúsi með hillum.
Þvottaherbergi: Er staðsett inn af eldhúsi. Flotað gólf og sérinngangur frá bakgarði. Tengi fyrir þvottavél og þurrkara. Gluggar til norðausturs, vaskur og fatahengi. Inn af þvottaherbergi er sturta, handklæðaofn og gluggi til suðausturs.
Svefngangur: Með parketi á gólfi. Útgengi í sólskála frá svefngangi.
Sólskáli: Er 18,9 fermetrar að stærð með flísum á gólfi. Upphitaður með rennihurð út á verönd til suðvesturs.
Hjónaherbergi: Með parketi á gólfi, skápum og glugga til suðausturs.
Svefnherbergi II: Er stórt. Búið að opna á milli tveggja barnaherbergja. Hurð enn til staðar og lítið mál að breyta til baka í tvö svefnherbergi. Parket á gólfi og gluggar til suðausturs.
Svefnherbergi III: Með parket á gólfi, skáp og glugga til suðvesturs.
Baðherbergi: Er nýlega endurnýjað. Flísar á gólfi og veggjum. Flísalögð sturta með glerþili. Innrétting við vask, upphengt salerni, handklæðaofn og gluggi til norðvesturs.
Bílskúr: Er stór, eða 38,4 fermetrar að stærð. Búið er að innrétta hluta af bílskúr í studioíbúð með sérinngangi og eldhúskrók (vaskur og kæliskápur). Inn af innkeyrsluhurð er hjóla- og eða útivistargeymsla.
Geymsluskúr: Er um 15 fermetrar að stærð, einangraður og með rafmagni.
Vinnuskúr: Er um 6 fermetrar að stærð.
Nánari upplýsingar:
Heimir Hallgrímsson, lögg. fasteignasali / heimir@fastlind.is / 849-0672
Ár
Fasteignamat
Kaupverð
Stærð
Fermetraverð
13. des. 2024
140.450.000 kr.
164.415.000 kr.
10101 m²
16.277 kr.
2. maí. 2024
131.650.000 kr.
169.500.000 kr.
10101 m²
16.781 kr.
28. feb. 2022
95.900.000 kr.
109.000.000 kr.
195.3 m²
558.116 kr.
Byggt á upplýsingum úr Þjóðskrá Íslands frá 2006-2025