Löggiltir fasteignasalar innan Félags fasteignasala:
Björn Guðmundsson
Berglind Jónasardóttir
Greta Huld Mellado
Vista
fjölbýlishús

Keilusíða 12 - 304

603 Akureyri

51.900.000 kr.

516.932 þ.kr./m2
Fasteignanúmer

F2148235

Fasteignamat

44.000.000 kr.

Brunabótamat

58.700.000 kr.

Áhvílandi

0 kr.

Arion banki – Reikna lán
Upplýsingar
Verðsaga
svg
Byggt 1982
svg
100,4 m²
svg
4 herb.
svg
1 baðherb.
svg
3 svefnh.
svg
Útsýni
svg
Sameiginl. inngangur

Lýsing

    

Fasteignasalan Byggð 464-9955 - Einkasala

Keilusíða 12 L (304)

**Seld með fyrirvara**


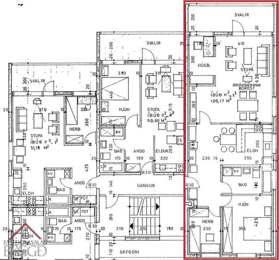
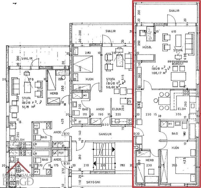
Um er að ræða góða fjögurra herbergja íbúð samtals 100,4 fm. á þriðju hæð í fjölbýlishúsi. Gott útsýni frá íbúðinni og henni fylgir sér geymsla í sameign. 

Eignin skipist í forstofu/rúmgott hol, þrjú svefnherbergi, baðherbergi, eldhús og stofu. Sér geymsla í sameign. 

Forstofa/Hol rúmgott með parketi á gólfi og fataskáp, á gangi er laus skápur sem fylgir með. 
Svefnherbergin eru þrjú, öll með parketi á gólfi og er fataskápur í tveimur þeirra.
Baðherbergi með flísum á gólfi og veggjum, lítil innrétting við vask, baðkar með sturtutækjum, opnanlegt fag og tengi fyrir þvottavél og þurrkara á baði. 
Eldhús með parket á gólfi, innrétting og borðplata máluð og stæði fyrir uppþvottavél í innréttingu. Tvöfaldur ísskápur í eldhúsi fylgir.  
Stofa með parketi á gólfi, útgengi út á svalir til vesturs úr stofu. 

Annað: 
- Sér geymsla í sameign. 
- Stutt í leik- og grunnskóla.  
- Húsið málað að utan 2022
- Búið að skipta um rofa og tengla í íbúðinni. 

Gjöld sem kaupandi þarf að standa straum af vegna kaupanna:  
1. Stimpilgjald af kaupsamningi - 0.8% af heildarfasteignamati / 1.6% fyrir lögaðila.    (0.4% við fyrstu kaup einstaklinga m.v. að lágmarki 50% eignarhlut).
2. Þinglýsingagjald af kaupsamningi, veðskuldabréfi, veðleyfi o.fl.- kr. 2.700 af hverju skjali.
3. Lántökugjald lánastofnunar -almennt 0,5-1,0% af höfuðstól skuldabréfs (nánari upplýsingar m.a. á heimasíðum lánastofnanna).
4. Umsýsluþóknun til fasteignasölu, sbr.kauptilboð. 

Frekari upplýsingar:
bjorn@byggd.is
greta@byggd.is
olafur@byggd.is

Skipagötu 16 á 2. hæð.
S:464 9955 


 

Byggð fasteignasala

Byggð fasteignasala

Skipagata 16, 600 Akureyri
phone
Ár
Fasteignamat
Kaupverð
Stærð
Fermetraverð
21. jún. 2022
30.200.000 kr.
42.600.000 kr.
100.4 m²
424.303 kr.
16. apr. 2021
29.650.000 kr.
31.000.000 kr.
100.4 m²
308.765 kr.
14. júl. 2017
19.350.000 kr.
26.000.000 kr.
100.4 m²
258.964 kr.
29. okt. 2014
16.150.000 kr.
17.400.000 kr.
100.4 m²
173.307 kr.
Byggt á upplýsingum úr Þjóðskrá Íslands frá 2006-2025
Byggð fasteignasala

Byggð fasteignasala

Skipagata 16, 600 Akureyri
phone