Upplýsingar
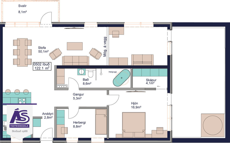
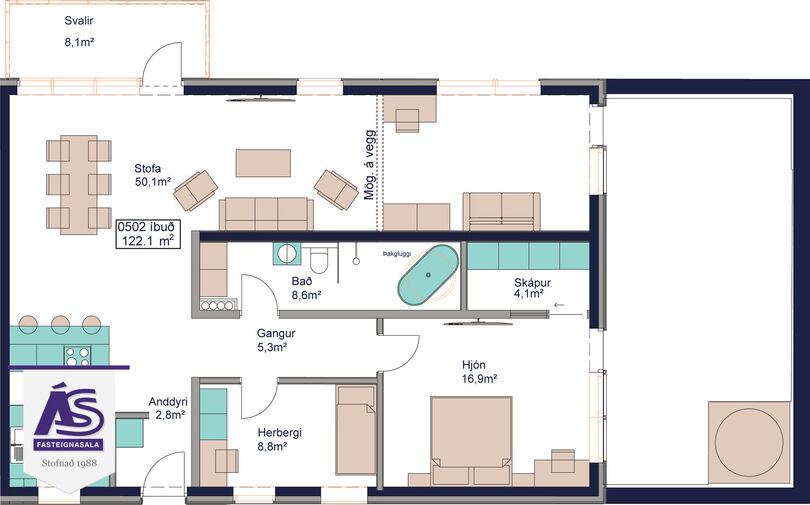
129,5 m²
4 herb.
1 baðherb.
3 svefnh.
Bílastæði
Lyfta
Opið hús: 11. febrúar 2026
kl. 16:30
til 17:00
Opið hús miðvikudaginn 11. feb. milli kl. 16:30 & 17:00 við Áshamar 56 í Hafnarfirði - Verið velkomin!
Lýsing
Glæsilegar nýjar íbúðir sem falla flestar undir hlutdeildarlán HMS.
Smelltu hér til að skoða nánari upplýsingar um hlutdeildarlán
Íbúðirnar eru 3ja, 4ra og 5 herbergja við Áshamar 56 í Hamranesi, Hafnarfirði.
Smelltu hér til að skoða sölusíðu íbúðanna
Stærðir: 80,5 - 130,1 fm
Herbergi: 3ja, 4ra og 5 herbergja íbúðir
Afhending: Október 2025
Verð: 64,0 - 98,5 mkr.
- Nýr leikskóli mun opna á lóðinni við hliðiná.
- Íbúðirnar skilast fullbúnar án megingólfefna, votrými verða flísalögð.
- Hönnuður hússins er Guðni Pálsson (GP Arkitektar ehf.)
- Sérsmíðaðar innréttingar eru frá Axis.
- Í eldhúsum er spanhelluborð og bakaraofn frá AEG ásamt eyjuháf.
- Mögulegt verður að setja rafbílahleðslu við hvert bílastæði á lóð. Þ.e. ídráttarlagnir í lóð verða til staðar.
- Gólfhiti er í öllum íbúðum.
- Nánari upplýsingar um skil má finna í skilalýsingu seljanda.
Húsbyggjandi er traustur verktaki: GG Verk ehf.
Hamranes er 25 hektara nýbyggingarsvæði sem rís sunnan Skarðshlíðarhverfis og Vallarhverfis í Hafnarfirði. Framkvæmdir við lóðir í Hamranesi hófust í upphafi árs 2021. Í hverfinu er gert ráð fyrir grunnskóla, tveimur leikskólum auk hjúkrunarheimilis. Uppbygging í hverfinu er langt komin.
Staðsetning hverfisins er frábær með tilliti til útivistar á fallegum útivistarsvæðum eins og til dæmis Ástjörn, Helgafelli og Hvaleyarvatni. Þá er stutt í íþróttaiðkun Hauka á Ásvöllum.
Fáðu nánari upplýsingar og bókaðu skoðun hjá sölumönnum Ás fasteignasölu:
Arnór Daði Eiríksson löggiltur fasteignasali s. 777-0939 / arnor@as.is
Stefán Rafn Sigurmannsson löggiltur fasteignasali s. 655-7000 / stefan@as.is
Aron Freyr Eiríksson löggiltur fasteignasali s. 772-7376 / aron@as.is
Svala Haraldsdóttir löggiltur fasteignasali s. 820-9699 / svala@as.is
Eiríkur Svanur Sigfússon lgfs. s. 862-3377 / eirikur@as.is
Ás fasteignasala er rótgróið fyrirtæki sem hefur veitt alla almenna þjónustu í fasteignaviðskiptum frá árinu 1988.
www.facebook.com/asfasteignasala
www.instagram.com/as_fasteignasala
www.as.is
Smelltu hér til að skoða nánari upplýsingar um hlutdeildarlán
Íbúðirnar eru 3ja, 4ra og 5 herbergja við Áshamar 56 í Hamranesi, Hafnarfirði.
Smelltu hér til að skoða sölusíðu íbúðanna
Stærðir: 80,5 - 130,1 fm
Herbergi: 3ja, 4ra og 5 herbergja íbúðir
Afhending: Október 2025
Verð: 64,0 - 98,5 mkr.
- Nýr leikskóli mun opna á lóðinni við hliðiná.
- Íbúðirnar skilast fullbúnar án megingólfefna, votrými verða flísalögð.
- Hönnuður hússins er Guðni Pálsson (GP Arkitektar ehf.)
- Sérsmíðaðar innréttingar eru frá Axis.
- Í eldhúsum er spanhelluborð og bakaraofn frá AEG ásamt eyjuháf.
- Mögulegt verður að setja rafbílahleðslu við hvert bílastæði á lóð. Þ.e. ídráttarlagnir í lóð verða til staðar.
- Gólfhiti er í öllum íbúðum.
- Nánari upplýsingar um skil má finna í skilalýsingu seljanda.
Húsbyggjandi er traustur verktaki: GG Verk ehf.
Hamranes er 25 hektara nýbyggingarsvæði sem rís sunnan Skarðshlíðarhverfis og Vallarhverfis í Hafnarfirði. Framkvæmdir við lóðir í Hamranesi hófust í upphafi árs 2021. Í hverfinu er gert ráð fyrir grunnskóla, tveimur leikskólum auk hjúkrunarheimilis. Uppbygging í hverfinu er langt komin.
Staðsetning hverfisins er frábær með tilliti til útivistar á fallegum útivistarsvæðum eins og til dæmis Ástjörn, Helgafelli og Hvaleyarvatni. Þá er stutt í íþróttaiðkun Hauka á Ásvöllum.
Fáðu nánari upplýsingar og bókaðu skoðun hjá sölumönnum Ás fasteignasölu:
Arnór Daði Eiríksson löggiltur fasteignasali s. 777-0939 / arnor@as.is
Stefán Rafn Sigurmannsson löggiltur fasteignasali s. 655-7000 / stefan@as.is
Aron Freyr Eiríksson löggiltur fasteignasali s. 772-7376 / aron@as.is
Svala Haraldsdóttir löggiltur fasteignasali s. 820-9699 / svala@as.is
Eiríkur Svanur Sigfússon lgfs. s. 862-3377 / eirikur@as.is
Ás fasteignasala er rótgróið fyrirtæki sem hefur veitt alla almenna þjónustu í fasteignaviðskiptum frá árinu 1988.
www.facebook.com/asfasteignasala
www.instagram.com/as_fasteignasala
www.as.is