Löggiltir fasteignasalar innan Félags fasteignasala:
Sverrir Kristinsson
Kjartan Hallgeirsson
Guðlaugur Ingi Guðlaugsson
Daði Hafþórsson
Gunnar Helgi Einarsson
Gunnar Bergmann Jónsson
Lilja Guðmundsdóttir
Jenný Sandra Gunnarsdóttir
Kári Sighvatsson
Vista
svg

324

svg

297  Skoðendur

svg

Skráð  28. nóv. 2025

fjölbýlishús

Skipalón 22

220 Hafnarfjörður

61.000.000 kr.

864.023 þ.kr./m2
Fasteignanúmer

F2291380

Fasteignamat

58.150.000 kr.

Brunabótamat

44.670.000 kr.

Áhvílandi

0 kr.

Arion banki – Reikna lán
Upplýsingar
Verðsaga
svg
Byggt 2007
svg
70,6 m²
svg
2 herb.
svg
1 baðherb.
svg
1 svefnh.
svg
Þvottahús
svg
Bílskúr
svg
Sameiginl. inngangur
svg
Lyfta

Lýsing

Eignamiðlun kynnir:

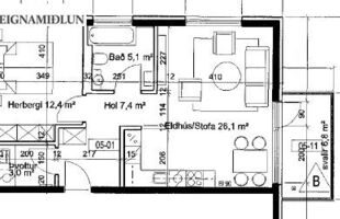
FRÁBÆR KAUP  - Vel skipulögð og mjög rúmgóð tveggja herbergja íbúð, á fimmtu hæð þar sem er mikil birta og ágætt útsýni, með stæði í bílakjallara. Eignin er samtals skráð 70,6 fermetrar, sem skiptist í 63,4 fermetra íbúð merkt 01-0501 og 7,2 fermetra geymslu í kjallara merkt 01-0013. Eigninni fylgir bílastæði í bílakjallara merkt 01-B17. Rúmgóðar 6,8 fermetra svalir eru út frá stofu. Í húsinu er veislusalur sem íbúar geta fengið afnot af.

Allar upplýsingar veitir Ólafur H. Guðgeirsson, MBA, lgfs., í síma 663-2508 eða olafur@eignamidlun.is
Smellið hér til að fá sent söluyfirlit.


Gengið er inn í rúmgóða forstofu þar sem er fataskápur, pláss fyrir fatahengi og rúmgott þvottahús til vinstri. Forstofa er opin að holi, þar sem svefnherbergi er til vinstri, baðherbergi beint fram undan og opið alrými til hægri. Fataskápur er á heilum vegg í svefnherbergi. Baðherbergið er flísalagt, gólf og veggi, eikarinnréttingar, spegill með ljósi yfir, baðkar með sturtu, handklæðaofn. Gluggi er á baðherberginu.
Alrými íbúðarinnar er með gluggum í tvær áttir og fallegri viðarlitri eldhúsinnréttingu í horn, þar sem er gott borðpláss og mikið skápapláss. Vandaðar ljósar steinplötur eru á eldhúsinnréttingunni, niðurfellt helluborð með viftu yfir, innbyggð uppþvottavél og stállitaður ofn í vinnuhæð. Flísar á milli skápa. Að sögn seljenda eru ofn og uppþvottavél mjög lítið notuð. Úr stofu gengt eldhúsi eru dyr út á rúmgóðar svalir þar sem er afar gott útsýni.
Á gólfum er eikarparket, flísar á baði og þvottahúsi.
Í kjallara er rúmgóð geymsla. Bílastæði er í bílakjallara.

Falleg vel staðsett íbúð, ætluð fólki 50 ára og eldra. Fasteignamat 2026 verður 62.250.000,-

Kostnaður kaupanda af kaupum:
1. Stimpilgjald af kaupsamningi er fyrir einstaklinga 0,8% af heildarfasteignamati eignar. Sé um fyrstu kaup að ræða er stimpilgjald af kaupsamningi 0,4% af heildarfasteignamati.
2. Stimpilgjald af kaupsamningi fyrir lögaðila er 1,6% af heildarfasteignamati eignar.
3. Þinglýsingargjald af kaupsamningi, afsali, veðskuldabréfi, veðleyfi og mögulega fleiri skjölum - kr. 2.500 af hverju skjali.
4. Lántökugjald lánastofnunar - samanber gjaldskrá viðkomandi lánastofnunar.
5. Umsýslugjald til fasteignasölu samkvæmt kaupendasamningi.
Söluyfirlit er samið af fasteignasala í samræmi við ákvæði laga nr. 70/2015. Þær upplýsingar sem fram koma í söluyfirliti þessu eru sóttar í opinberar skrár, til seljanda sjálfs og eftir atvikum til húsfélags. Seljandi veitir upplýsingar um eign í samræmi við upplýsingaskyldu seljanda samanber 26.gr. laga nr.40/2002 um fasteignakaup og 25.gr. laga nr.26/1994 um fjöleignarhús. Eignamiðlun fasteignasala bendir fasteignakaupendum á ríka skoðunarskyldu kaupenda sem kveðið er á í lögum um fasteignakaup nr.40/2002. Kaupanda er bent á að nýta sér þjónustu fagmanna við skoðun fasteigna, en mælt er með því að kaupendur fasteigna fái óháðan fagaðila til að framkvæma formlega ástandsskoðun á eignum sem gert er tilboð í.
Eignamiðlun fasteignasala | Grensásvegur 11 | 108 Reykjavík | Sími 588 9090 | www.eignamidlun.is

***
Ábyrg þjónusta í áratugi. Eignamiðlun var stofnuð 1957 og er elsta starfandi fasteignasala á Íslandi. Reynsla, heiðarleiki og þekking á fasteignamarkaðnum eru grunnur að farsælum viðskiptum. 

Eignamiðlun Grensásvegi 11, 108 Reykjavík - Opið frá kl. 9-17 mánudaga til fimmtudaga og 9-16 á föstudögum.

Heimasíða Eignamiðlunar

Eignamiðlun á Facebook

Eignamiðlun

Eignamiðlun

Grensásvegi 11, 108 Reykjavík
Ár
Fasteignamat
Kaupverð
Stærð
Fermetraverð
17. ágú. 2007
17.830.000 kr.
20.000.000 kr.
70.6 m²
283.286 kr.
Byggt á upplýsingum úr Þjóðskrá Íslands frá 2006-2025
Eignamiðlun

Eignamiðlun

Grensásvegi 11, 108 Reykjavík