Löggiltir fasteignasalar innan Félags fasteignasala:
Óskar Rúnar Harðarson
Jason Guðmundsson
Þröstur Þórhallsson
Ólafur Finnbogason
Kjartan Ísak Guðmundsson
Gústaf Adolf Björnsson
Viðar Böðvarsson
Rakel Viðarsdóttir
Vala Georgsdóttir
Ragnheiður Pétursdóttir
Böðvar Þ. Eggertsson
Vista
fjölbýlishús

Frakkastígur 8C

101 Reykjavík

149.500.000 kr.

1.150.000 þ.kr./m2
Fasteignanúmer

F2004752

Fasteignamat

105.600.000 kr.

Brunabótamat

81.480.000 kr.

Áhvílandi

0 kr.

Arion banki – Reikna lán
Upplýsingar
Verðsaga
svg
Byggt 2019
svg
130 m²
svg
4 herb.
svg
2 baðherb.
svg
3 svefnh.
svg
Sameiginl. inngangur
svg
Bílastæði
svg
Lyfta

Lýsing

Miklaborg kynnir:

***Virkilega björt og glæsileg 4ra herbergja íbúð á 4 hæð í nýlegu fjölbýli í miðbæ Reykjavíkur - hönnuð af Berglindi Berndsen innanhúsarkítekt.
Lýsing er frá LUMEX
Gólfsíðir gluggar með frábæru útsýni á miðborgina, hafið og Esjuna.
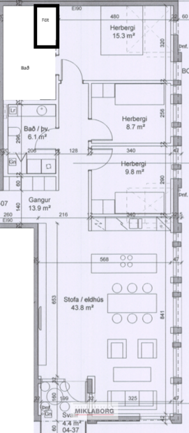
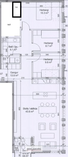
Eignin er samtals 130fm, 3 svefnherbergi, 2 baðherbergi, geymsla (8,4fm) og stæði í bílakjallara.
Eignin getur verið laus við kaupsamning.


***Allar nánari upplýsingar veita

Sæþór Ólafsson löggiltur fasteignasali í síma 855-5550 eða saethor@miklaborg.is

NÁNARI LÝSING: Komið inn í anddyri með skápum. Eldhús er með fallegri innréttingu (voke 3), eldunareyju og innbyggðum ísskáp og uppþvottavél. Eldhús er opið inn í bjarta stofu sem skiptist í stofu og borðstofu. Fallegt útsýni er út á flóann og gólfsíðir gluggar. Svalir út frá stofu. Úr stofu er gengið inn á svefnherbergisgang. Tvö góð barnaherbergi með skápum ásamt baðherbergi með sturtu og tengi fyrir þvottavél og þurrkara. Hjónaherbergið er sérlega rúmgott með góðum skápum. Sér baðherbergi er inn af hjónaherbergi og er það með fallegri innréttingu, sturtu og baðkari. Í kjallara er góð geymsla og stæði í lokaðri bílgeymslu. Snyrtilegur inngarður er í suðurvestur.

GÓLFEFNI: Vandað viðarparket er á öllum gólfum nema baðherbergjum en þar eru flísar.


FALLEG, NÝLEG ÍBÚÐ Á FRÁBÆRUM STAÐ Í MIÐBÆ REYKJAVÍKUR


Allar nánari upplýsingar veita

Sæþór Ólafsson löggiltur fasteignasali í síma 855-5550 eða saethor@miklaborg.is

Ólafur Finnbogason löggiltur fasteignasali í síma 822 2307 eða olafur@miklaborg.is

Miklaborg fasteignasala

Miklaborg fasteignasala

Lágmúli 4, 108 Reykjavík
Ár
Fasteignamat
Kaupverð
Stærð
Fermetraverð
9. mar. 2018
8.550.000 kr.
156.070.000 kr.
259.5 m²
601.426 kr.
Byggt á upplýsingum úr Þjóðskrá Íslands frá 2006-2025
Miklaborg fasteignasala

Miklaborg fasteignasala

Lágmúli 4, 108 Reykjavík