Upplýsingar
Verðsaga
Byggt 1969
61,8 m²
2 herb.
1 baðherb.
1 svefnh.
Þvottahús
Sameiginl. inngangur
Opið hús: 16. desember 2025
kl. 16:45
til 17:45
Opið hús: Hörðaland 12, 108 Reykjavík, Íbúð merkt: 06 01 01. Eignin verður sýnd þriðjudaginn 16. desember 2025 milli kl. 16:45 og kl. 17:45.
Lýsing
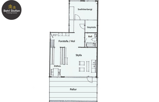
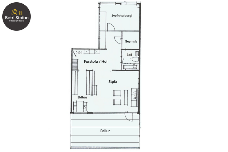
Hreiðar Levý lögg. fasteignasali og Betri Stofan Fasteignasala kynna fallega, vel skipulagða og bjarta 2ja herbergja íbúð á jarðhæð með um 40fm aflokaðri viðarverönd til suðurs á vinsælum stað í Fossvoginum í Reykjavík. Íbúðin hefur fengið gott viðhald hin síðustu ár þar sem m.a eldhús og gólfefni var endurnýjað ásamt byggður um 40fm aflokaður sólpallur. Húsið hefur einnig fengið gott viðhald þar sem ma. var skipt um járn á þaki, rennur og niðurföll endurnýjuð, gluggar og hurð á suðurhlið endurnýjað ásamt því að húsið var múrviðgert og málað. Eignin skiptist í Anddyri, hol, eldhús, stofu með útgengi út á rúmgóðan sérafnotaflöt, baðherbergi, svefnherbergi ásamt geymslu innan íbúðar. Einnig fylgir sér geymsluskápur í sameign. Afar vinsæl staðsetning í Fossvoginum í Reykjavík.
Fasteignamat eignar fyrir árið 2026 skv. HMS er 60.850.000kr
Bókið skoðun hjá Hreiðari Levý lögg. fasteignasala í síma 661-6021 eða hreidar@betristofan.is
2022
-Skipt upp járn á þaki, rennur og niðurföll.
2023 - 2024
Skipt um glugga og hurð í sameign
-Skipt um alla glugga og hurð á suðurhlið (eldhús, stofa og ný hurð)
- Þak á anddyri endurnýjað
- Múrviðgerðir á húsi að utan og málað
- Aðrir gluggar málaðir sem ekki var skipt um
2024
- Pallur smíðaður
Nánari lýsing:
Anddyri: Parket á gólfi. Fataskápur.
Hol: Tengir saman öll rými íbúðar.
Eldhús: Nýlega endurnýjuð innrétting með góðu skápa- og vinnuplássi. Innbyggður ísskápur og uppþvottavél ásamt ofni og örbylgjuofni í vinnuhæð. Borðkrókur í eldhúsi.
Stofa: Rúmgóð og björt stofa með útgengi út á ca. 40fm aflokaðan pall. Góð tenging við eldhús.
Baðherbergi: Flísalagt í hólf og gólf. Baðkar með sturtu, klósett, innrétting með vaski, skápum, hillum og spegli fyrir ofan vask.
Svefnherbergi: Rúmgott svefnherbergi með fataskáp.
Geymsla: Geymsla innan íbúðar. Sér geymsluskápur í sameign.
Sameign: Sameiginlegt þvottahús ásamt sameiginlegri hjóla- og vagna geymsla með útgangi til suðurs út í sameignargarð.
Garður: Sameiginlegur garður sunnanmegin við hús.
Fossvoginn þarf ekki að kynna, en hann er eitt veðursælasta hverfi höfðuborgarinnar í suður hlíð, með frábærum göngutengslum innan hverfis og með heimavöll hamingjunar í göngufæri.
Nánari upplýsingar veitir Hreiðar Levý Guðmundsson löggiltur fasteignasali, í síma 661- 6021, tölvupóstur hreidar@betristofan.is.
Fasteignamat eignar fyrir árið 2026 skv. HMS er 60.850.000kr
Bókið skoðun hjá Hreiðari Levý lögg. fasteignasala í síma 661-6021 eða hreidar@betristofan.is
2022
-Skipt upp járn á þaki, rennur og niðurföll.
2023 - 2024
Skipt um glugga og hurð í sameign
-Skipt um alla glugga og hurð á suðurhlið (eldhús, stofa og ný hurð)
- Þak á anddyri endurnýjað
- Múrviðgerðir á húsi að utan og málað
- Aðrir gluggar málaðir sem ekki var skipt um
2024
- Pallur smíðaður
Nánari lýsing:
Anddyri: Parket á gólfi. Fataskápur.
Hol: Tengir saman öll rými íbúðar.
Eldhús: Nýlega endurnýjuð innrétting með góðu skápa- og vinnuplássi. Innbyggður ísskápur og uppþvottavél ásamt ofni og örbylgjuofni í vinnuhæð. Borðkrókur í eldhúsi.
Stofa: Rúmgóð og björt stofa með útgengi út á ca. 40fm aflokaðan pall. Góð tenging við eldhús.
Baðherbergi: Flísalagt í hólf og gólf. Baðkar með sturtu, klósett, innrétting með vaski, skápum, hillum og spegli fyrir ofan vask.
Svefnherbergi: Rúmgott svefnherbergi með fataskáp.
Geymsla: Geymsla innan íbúðar. Sér geymsluskápur í sameign.
Sameign: Sameiginlegt þvottahús ásamt sameiginlegri hjóla- og vagna geymsla með útgangi til suðurs út í sameignargarð.
Garður: Sameiginlegur garður sunnanmegin við hús.
Fossvoginn þarf ekki að kynna, en hann er eitt veðursælasta hverfi höfðuborgarinnar í suður hlíð, með frábærum göngutengslum innan hverfis og með heimavöll hamingjunar í göngufæri.
Nánari upplýsingar veitir Hreiðar Levý Guðmundsson löggiltur fasteignasali, í síma 661- 6021, tölvupóstur hreidar@betristofan.is.
Gjöld sem kaupandi þarf að standa straum af ef að kaupum verður:
1. Stimpilgjald af fasteignamati fasteignar er 0.8%, en 0,4% fyrir fyrstu kaup og 1,6% fyrir lögaðila.
2. Þinglýsingargjald: kaupsamningi, skuldabréfi, veðleyfi, afsali o.s.frv. er kr. 2.700 af hverju skjali.
3. Lántökukostnaður samkvæmt verðskrá viðkomandi lánastofnunar.
4. Umsýslugjald til fasteignasölu skv. gjaldskrá.
Ár
Fasteignamat
Kaupverð
Stærð
Fermetraverð
15. mar. 2023
46.300.000 kr.
49.000.000 kr.
61.8 m²
792.880 kr.
9. sep. 2013
17.350.000 kr.
21.000.000 kr.
61.8 m²
339.806 kr.
Byggt á upplýsingum úr Þjóðskrá Íslands frá 2006-2025