Löggiltir fasteignasalar innan Félags fasteignasala:
Arnar Birgisson
Lína Rut Olgeirsdóttir
Tryggvi Gunnarsson
Bergþóra Höskuldsdóttir
Vista
svg

229

svg

209  Skoðendur

svg

Skráð  15. des. 2025

fjölbýlishús

Þursaholt 5 íbúð 103

603 Akureyri

87.944.000 kr.

842.375 þ.kr./m2
Fasteignanúmer

F2530550

Fasteignamat

67.800.000 kr.

Brunabótamat

64.300.000 kr.

Áhvílandi

0 kr.

Arion banki – Reikna lán
Upplýsingar
svg
Byggt 2025
svg
104,4 m²
svg
3 herb.
svg
1 baðherb.
svg
2 svefnh.
svg
Bílastæði
svg
Lyfta

Lýsing


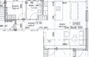
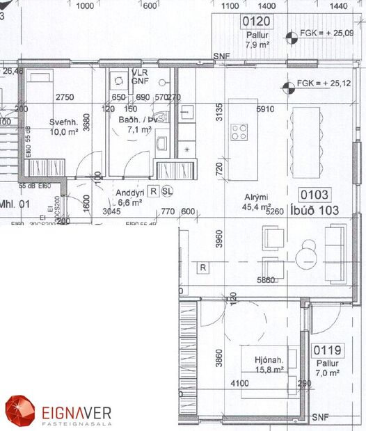
Þursaholt 5 íbúð 103   **** Nýbygging ***** 
Laus við kaupsamning

Glæsilega hönnuð, vönduð og björt 3ja herbergja íbúð á jarðhæð í fjölbýli við vistgötu. Íbúðin er 104,4 fm þar af geymsla í kjallara 6,7 fm.
Frábær staðsetning.


Íbúðin skiptist í forstofu, tvö svefnherbergi, baðherbergi með þvottaaðstöðu, eldhús og stofa í rúmgóðu alrými.
Öllum íbúðum fylgir stæði í bílageymslu – breið stæði í björtum og rúmgóðum bílakjallara.
Þrefalt gler í gluggum og hurðum, aukin einangrun og bætt hljóðvist. Sólstopp í öllu gleri. Húsin eru klædd að utan með vandaðri og fallegri álklæðningu.
Sérsmíðaðar TAK-innréttingar og innihurðir, quartz borðplötur bæði í eldhúsi og á baðherbergjum.
Baðherbergi flísalögð, bæði gólf og veggir.
Parket á gólfum allra rýma utan baðherbergis.
Loftskiptakerfi er í íbúðum.
Sérgeymsla í kjallara.

Byggingaraðili er SS Byggir ehf.

Eignin er í einkasölu á fasteignasölunni Eignaveri.

Allar nánari upplýsingar, t.d. um stærðir og verð íbúða er að hjá fasteignasölunni Eignaver 460-6060 eða á  www.eignaver.is

Nánari upplýsingar veita:
Begga           s: 845-0671   / begga@eignaver.is
Arnar             s: 898-7011   / arnar@eignaver.is
Tryggvi          s: 862-7919   / tryggvi@eignaver.is

Eignaver fasteignasala ehf

Eignaver fasteignasala ehf

Hafnarstræti 97 (krónan), 600 Akureyri
phone
Eignaver fasteignasala ehf

Eignaver fasteignasala ehf

Hafnarstræti 97 (krónan), 600 Akureyri
phone