Löggiltir fasteignasalar innan Félags fasteignasala:
Björn Guðmundsson
Berglind Jónasardóttir
Greta Huld Mellado
Vista
svg

928

svg

802  Skoðendur

svg

Skráð  17. des. 2025

fjölbýlishús

Davíðshagi 8 - 206

600 Akureyri

47.500.000 kr.

868.373 þ.kr./m2
Fasteignanúmer

F2502133

Fasteignamat

38.750.000 kr.

Brunabótamat

32.350.000 kr.

Áhvílandi

0 kr.

Arion banki – Reikna lán
Upplýsingar
Verðsaga
svg
Byggt 2019
svg
54,7 m²
svg
2 herb.
svg
1 baðherb.
svg
1 svefnh.
svg
Sameiginl. inngangur
svg
Lyfta

Lýsing

    

Fasteignasalan Byggð 464-9955 - Einkasala

Davíðshagi 8 - 206


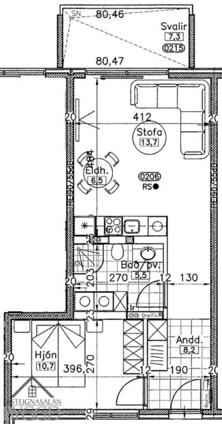
Góð tveggja herbergja íbúð á annari hæð í lyftuhúsi nyrst í Hagahverfi. Eignin er samtals 54,7 fm. en þar af er geymsla í sameign 3,6 fm.. 
Aðalinngangur er um lyftuhús, en húsið er stallað um hálfa hæð sitt hvoru megin við inngang. Gengið er inn í íbúðina af svalagangi á norðurhlið, en á suðurhlið eru svalir. Á jarðhæð hússins er sameignarrými, með sameiginlegri vagna- og hjólageymslu ásamt sér geymslu.  

Eignin skiptist í forstofu, svefnherbergi, baðherbergi og eldhús og stofu í sameiginlegu rými.

Forstofa er með parket á gólfi og skáp á gangi.
Svefnherbergið er við forstofu með parket á gólfi og föstum rúmgóðum skápum.
Eldhús og stofa er í sameiginlegu rými með parket á gólfi. Eldhúsinnrétting er dökk með stæði fyrir uppþvottavél, góðu skápaplássi og svörtum flísum milli efri og neðri skápa. Úr stofu er gengið út á verönd um rennihurð. 
Baðherbergi er með svartar flísar á gólfi og hvítar á veggjum, sturtu með vængjahurðum, upphengt salerni og góðri innréttingu með stæði fyrir þvottavél og þurrkara. 

Annað:
-Vel skipulögð íbúð 
-Gólfhiti í allri íbúðinni
-Öndun við rennihurð í stofu
-Bílastæði eru bæði norðan og vestan við húsið. 
-Lyfta er í húsinu
-Ljósleiðari

Gjöld sem kaupandi þarf að standa straum af vegna kaupanna:  
1. Stimpilgjald af kaupsamningi - 0.8% af heildarfasteignamati / 1.6% fyrir lögaðila.    (0.4% við fyrstu kaup einstaklinga m.v. að lágmarki 50% eignarhlut).
2. Þinglýsingagjald af kaupsamningi, veðskuldabréfi, veðleyfi o.fl.- kr. 2.700 af hverju skjali.
3. Lántökugjald lánastofnunar -almennt 0,5-1,0% af höfuðstól skuldabréfs (nánari upplýsingar m.a. á heimasíðum lánastofnanna).
4. Umsýsluþóknun til fasteignasölu, sbr.kauptilboð. 


Frekari upplýsingar:
bjorn@byggd.is
greta@byggd.is
berglind@byggd.is
olafur@byggd.is

Skipagötu 16 á 2. hæð.
S:464 9955 


 

Byggð fasteignasala

Byggð fasteignasala

Skipagata 16, 600 Akureyri
phone
Ár
Fasteignamat
Kaupverð
Stærð
Fermetraverð
17. ágú. 2022
26.950.000 kr.
37.000.000 kr.
54.7 m²
676.417 kr.
7. des. 2018
1.650.000 kr.
25.200.000 kr.
54.7 m²
460.695 kr.
Byggt á upplýsingum úr Þjóðskrá Íslands frá 2006-2026
Byggð fasteignasala

Byggð fasteignasala

Skipagata 16, 600 Akureyri
phone