Löggiltir fasteignasalar innan Félags fasteignasala:
Björn Guðmundsson
Berglind Jónasardóttir
Greta Huld Mellado
Vista
svg

717

svg

521  Skoðendur

svg

Skráð  30. des. 2025

fjölbýlishús

Dvergaholt 5 - 201

603 Akureyri

83.500.000 kr.

699.916 þ.kr./m2
Fasteignanúmer

F2525597

Fasteignamat

71.100.000 kr.

Brunabótamat

80.150.000 kr.

Áhvílandi

0 kr.

Arion banki – Reikna lán
Upplýsingar
svg
Byggt 2023
svg
119,3 m²
svg
4 herb.
svg
1 baðherb.
svg
3 svefnh.
svg
Sameiginl. inngangur
svg
Bílastæði
svg
Lyfta

Lýsing

    

Fasteignasalan Byggð 464-9955 - Einkasala

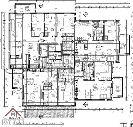
Dvergaholt 5 - 201


Ný glæsileg fjögurra herbergja íbúð á 2. hæð í fjölbýlishúsi með lyftu, svalir snúa til vesturs. 
Eigninni fylgir sér stæði í sameiginlegum bílakjallara auk sér geymslu í sameign. Samtals er hún 119,3 fm., þar af er geymsla 5,4 fm.. Gólfhiti og loftskiptikerfi er í íbúð, hvítar innihurðir og allar innréttingar koma frá Brúnás. Eignin afhendist fullbúin með gólfefnum.


Íbúðin skiptist í anddyri, eldhús og stofu í opnu rými, baðherbergi með þvottaaðstöðu og þrjú svefnherbergi. 

Anddyri með parketi á gólfi og fataskáp. 
Eldhús og stofa í opnu rými, útgengi út á svalir til vesturs úr stofu. Góð innrétting í eldhúsi ásamt eyju, þar eru skúffur og helluborð. Stæði fyrir ísskáp, uppþvottavél og bakaraofn í vinnuhæð.
Baðherbergi með flísum á gólfi og í votrými í sturtu. Sturta með glerskilrúmi og upphengt wc. Góð innrétting við vask ásamt speglaskápum og stæði fyrir þvottavél og þurrkara í innréttingu í vinnuhæð. Loftræstistokkur/stýrikerfi er í skáp fyrir ofan þvottavél og þurrkara og í honum er því ekkert bak eða hillur. 
Svefnherbergin eru þrjú öll eru með parketi á gólfi og fataskápum.

Ath að myndir eru úr sýningaríbúð en sýna innréttingar, skápa og fleira sem er eins milli íbúða. 

Smelltu hér til að sjá 3D vefsjá af íbúðinni

*Athugið að innréttingar og gólfefni í vefsjánni endurspegla ekki endanlegt útlit þeirra við afhendingu. Nánari upplýsingar um innréttingar og gólfefni má sjá í skilalýsingu sem hægt er að fá senda í tölvupósti eða koma við á skrifstofu
 
Áætluð afhending snemma árs 2025
Kaupandi greiðir skipulagsgjald
Verktaki: Trétak ehf.


Gjöld sem kaupandi þarf að standa straum af vegna kaupanna:  
1. Stimpilgjald af kaupsamningi - 0.8% af heildarfasteignamati / 1.6% fyrir lögaðila.    (0.4% við fyrstu kaup einstaklinga m.v. að lágmarki 50% eignarhlut).
2. Þinglýsingagjald af kaupsamningi, veðskuldabréfi, veðleyfi o.fl.- kr. 2.700 af hverju skjali.
3. Lántökugjald lánastofnunar -almennt 0,5-1,0% af höfuðstól skuldabréfs (nánari upplýsingar m.a. á heimasíðum lánastofnanna).
4. Umsýsluþóknun til fasteignasölu, sbr.kauptilboð. 

Frekari upplýsingar:
bjorn@byggd.is
greta@byggd.is
berglind@byggd.is
olafur@byggd.is

Skipagötu 16 á 2. hæð.
S:464 9955 


 

Byggð fasteignasala

Byggð fasteignasala

Skipagata 16, 600 Akureyri
phone
Byggð fasteignasala

Byggð fasteignasala

Skipagata 16, 600 Akureyri
phone