Upplýsingar
Verðsaga
Byggt 2019
79,3 m²
2 herb.
1 baðherb.
2 svefnh.
Sameiginl. inngangur
Lýsing
Eignaver 460-6060
Davíðshagi 2 íbúð 105, Akureyri.
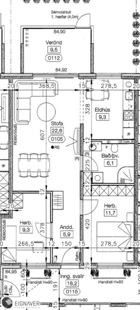
Glæsileg 73,6 fm þriggja herbergja íbúð á 1. hæð í fjölbýli með lyftu í Hagahverfi. Sérgeymsla 5,7 fm í kjallara. Samtals er eignin 79,3 fm.
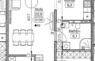
Eignin skiptist í forstofu/gang, eldhús, stofu, baðherbergi með þvottaaðstöðu og tvö svefnherbergi.
Sér 5,7 fm geymsla er í kjallara.
Steyptar 9,7 fm suðursvalir.
Forstofa er með vínyl parketi á gólfi og fataskáp.
Hol/Gangur góðir skápar og vínylparket á gólfi.Eldhús og stofa
Stofa er björt og rúmgóð með vínylparketi, Rennihurð út góðar steypta suðurverönd.
Eldhús vínyl parketi á gólfi, innrétting í eldhúsi er hvít og með flísaþiljum á milli skápa. Borðkrókur.
Svefnherbergi eru tvö bæði með vínyl parketi á gólfi og fataskápum, góður fataskápur er í hjónaherbergi.
Baðherbergi er með vínyl á gólfi, vandaðri innréttingu, upphengdu wc og flísalagðri sturtu. Stæði er í innréttingu fyrir þvottavél og þurrkara.
Sérgeymsla er í kjallaranum, skráð 5,7 fm að stærð.
HÚSEIGNIN ER Í EINKASÖLU HJÁ EIGNAVERI FASTEIGNASÖLU.
Annað:
- Allar innréttingar og innihurðar eru frá Tak innréttingum.
- Hljóðdempandi plötur eru í öllum loftum nema á baðherbergi.
- Loftskiptikerfi er í íbúðinni.
- Mynddyrasími.
- Hönnun handriðs og svala er með þeim hætti að auðvelt er að koma fyrir svalalokun í framtíðinni.
Nánari upplýsingar veita;
Arnar s; 898-7011 / arnar@eignaver.is
Begga s; 845-0671 / begga@eignaver.is
Tryggvi s; 862-7919 / tryggvi@eignaver.is
Davíðshagi 2 íbúð 105, Akureyri.
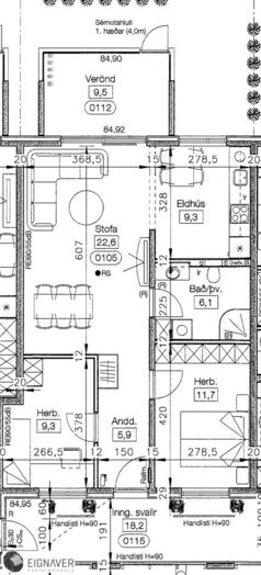
Glæsileg 73,6 fm þriggja herbergja íbúð á 1. hæð í fjölbýli með lyftu í Hagahverfi. Sérgeymsla 5,7 fm í kjallara. Samtals er eignin 79,3 fm.
Eignin skiptist í forstofu/gang, eldhús, stofu, baðherbergi með þvottaaðstöðu og tvö svefnherbergi.
Sér 5,7 fm geymsla er í kjallara.
Steyptar 9,7 fm suðursvalir.
Forstofa er með vínyl parketi á gólfi og fataskáp.
Hol/Gangur góðir skápar og vínylparket á gólfi.Eldhús og stofa
Stofa er björt og rúmgóð með vínylparketi, Rennihurð út góðar steypta suðurverönd.
Eldhús vínyl parketi á gólfi, innrétting í eldhúsi er hvít og með flísaþiljum á milli skápa. Borðkrókur.
Svefnherbergi eru tvö bæði með vínyl parketi á gólfi og fataskápum, góður fataskápur er í hjónaherbergi.
Baðherbergi er með vínyl á gólfi, vandaðri innréttingu, upphengdu wc og flísalagðri sturtu. Stæði er í innréttingu fyrir þvottavél og þurrkara.
Sérgeymsla er í kjallaranum, skráð 5,7 fm að stærð.
HÚSEIGNIN ER Í EINKASÖLU HJÁ EIGNAVERI FASTEIGNASÖLU.
Annað:
- Allar innréttingar og innihurðar eru frá Tak innréttingum.
- Hljóðdempandi plötur eru í öllum loftum nema á baðherbergi.
- Loftskiptikerfi er í íbúðinni.
- Mynddyrasími.
- Hönnun handriðs og svala er með þeim hætti að auðvelt er að koma fyrir svalalokun í framtíðinni.
Nánari upplýsingar veita;
Arnar s; 898-7011 / arnar@eignaver.is
Begga s; 845-0671 / begga@eignaver.is
Tryggvi s; 862-7919 / tryggvi@eignaver.is
Ár
Fasteignamat
Kaupverð
Stærð
Fermetraverð
5. ágú. 2022
34.450.000 kr.
49.000.000 kr.
79.3 m²
617.907 kr.
2. nóv. 2020
34.100.000 kr.
34.892.000 kr.
79.3 m²
440.000 kr.
Byggt á upplýsingum úr Þjóðskrá Íslands frá 2006-2026