Löggiltir fasteignasalar innan Félags fasteignasala:
Upplýsingar
Verðsaga
Byggt 1961
66,2 m²
2 herb.
1 baðherb.
1 svefnh.
Sameiginl. inngangur
Lýsing
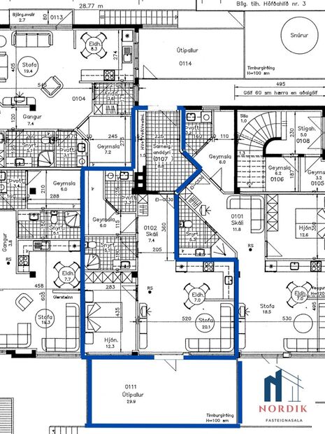
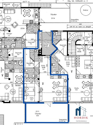
Höfðahlíð 1 íbúð 102 Akureyri.
Falleg tveggja herbergja íbúð á jarðhæð í litlu fjölbýli. Íbúðin er samtals 66,2 fm.
Íbúðin skiptist í sameiginlegan inngang fyrir tvær íbúðir á jarðhæð, forstofu, geymslu/þvottahús sem hugsanlega mætti nýta sem svefnherberfi, baðherbergi, hjónaherbergi, eldhús og stofu í einu rými, gengið er út á pall úr stofu.
Sameiginleg forstofa, flísar á gólfi.
Hol/gangur, parket á gólfi.
Svefnherbergi, parket á gólfi, góður fataskápur.
Baðherbergið er með flísum á gólfi og veggjum, innangengd sturta.
Stofan er með parketi á gólfi og úr stofu er farið út á svalir til austurs.
Eldhús, falleg hvít sprautulökkuð eldhúsinnrétting, parket á gólfi. Lítil uppþvottavél inni í innréttingu fylgir með við kaupin.
Falleg eign með aukinni lofthæð.
Annað:
- Ljósleiðari kominn í íbúð.
- Aukin lofthæð í íbúð og upptekin loft í íbúðinni allri.
- Falleg eign og vel staðsett, stutt í alla þjónustu.
- Eign nýlega tekin í gegn að utan
Eignin er í einkasölu hjá Nordik fasteignasölu.
Nánari upplýsingar veitir
Andrés Már Magnússon í síma: 8522098
Tölvupóstur andres@nordikfasteignasala.is
Falleg tveggja herbergja íbúð á jarðhæð í litlu fjölbýli. Íbúðin er samtals 66,2 fm.
Íbúðin skiptist í sameiginlegan inngang fyrir tvær íbúðir á jarðhæð, forstofu, geymslu/þvottahús sem hugsanlega mætti nýta sem svefnherberfi, baðherbergi, hjónaherbergi, eldhús og stofu í einu rými, gengið er út á pall úr stofu.
Sameiginleg forstofa, flísar á gólfi.
Hol/gangur, parket á gólfi.
Svefnherbergi, parket á gólfi, góður fataskápur.
Baðherbergið er með flísum á gólfi og veggjum, innangengd sturta.
Stofan er með parketi á gólfi og úr stofu er farið út á svalir til austurs.
Eldhús, falleg hvít sprautulökkuð eldhúsinnrétting, parket á gólfi. Lítil uppþvottavél inni í innréttingu fylgir með við kaupin.
Falleg eign með aukinni lofthæð.
Annað:
- Ljósleiðari kominn í íbúð.
- Aukin lofthæð í íbúð og upptekin loft í íbúðinni allri.
- Falleg eign og vel staðsett, stutt í alla þjónustu.
- Eign nýlega tekin í gegn að utan
Eignin er í einkasölu hjá Nordik fasteignasölu.
Nánari upplýsingar veitir
Andrés Már Magnússon í síma: 8522098
Tölvupóstur andres@nordikfasteignasala.is
Ár
Fasteignamat
Kaupverð
Stærð
Fermetraverð
12. apr. 2016
12.450.000 kr.
16.200.000 kr.
66.2 m²
244.713 kr.
Byggt á upplýsingum úr Þjóðskrá Íslands frá 2006-2026