Upplýsingar
Verðsaga
Byggt 2003
91 m²
3 herb.
1 baðherb.
2 svefnh.
Þvottahús
Sameiginl. inngangur
Hjólastólaaðgengi
Laus strax
Opið hús: 17. janúar 2026
kl. 13:00
til 13:30
Opið hús: Burknavellir 5, 221 Hafnarfjörður, Íbúð merkt: 01 01 03. Eignin verður sýnd laugardaginn 17. janúar 2026 milli kl. 13:00 og kl. 13:30.
Lýsing
DOMUSNOVA OG VILBORG KYNNA NÝTT Á EINKASÖLU:
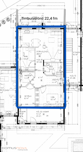
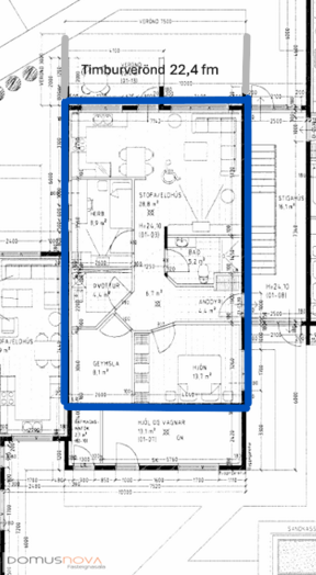
FALLEG 3JA - 4RA HERBERGJA ÍBÚÐ, 91,0 fm Á JARÐHÆÐ MEÐ 22,4 FM TIMBURVERÖND VIÐ BURKNAVELLI 5B Í HAFNARFIRÐI.
STÆÐI FYLGIR ÍBÚÐ VIÐ INNGANG Á VERÖND. STÆÐIÐ ER EXTRA BREYTT OG ER ENDASTÆÐI.
GEYMSLA INNAN ÍBÚÐAR. ER NÝTT SEM HERBERGI Í DAG - ER GLUGGALAUST RÝMI.
ÞVOTTAHÚS Í ÍBÚÐ.
EIGNIN HENTAR VEL FYRIR HUNDAEIGENDUR VEGNA PALLSINS SEM OG GÓLFEFNA SEM ERU FLÍSAR.
Hafið samband við Vilborgu; vilborg@domusnova eða í síma 891-8660 til að fá söluyfirlit eða nánari upplýsingar.
Nánari lýsing:
Gengið er inn framan við hús í sameigninlega forstofu með dyrasíma og þaðan inn í flísalagðan stigagang. Einnig er inngangur aftan við hús frá bílastæðum staðsettum þar.
Íbúð:
Forstofa með flísum á gólfi og fataskáp.
Eldhús með góðri mahogany viðarinnréttingu, borðkrókur, helluborð m/háf yfir, ofn.
Stofa/borðstofa með flísum á gólfi. Opið inn í eldhúsrými. (Sjá teikningu)
Timburverönd: Útgengt á 22,4 fm timburverönd til suðvesturs með góðum skjólvegg. Hægt er að ganga að bílastæði frá verönd.
Baðherbergi með hvítri innréttingu, flísalögð sturta, sturtugler, flísar á gólfi og veggjum.
Hjónaherbergi með góðum fataskápum. Flísar á gólfi.
Barnaherbergi með fataskáp.Flísar á gólfi.
Þvottahús innan íbúðar er rúmgott með góðu geymsluplássi og innréttingu. Flísar á gólfi.
Geymsla er innan íbúðar en hún er nýtt sem skrifstofa í dag.
Íbúðin er öll með náttúrustein á gólfi fyrir utan baðherbergi og þvottahús.
Sameiginleg hjóla- og vagnageymsla.
Sér merkt bílastæði á lóð tilheyrir íbúðinni.
Leiksvæði barna með leiktækjum er á lóð og er sæmæginlegt.
Skv. yfirlýsingu húsfélags hefur sorptunnuskýli verið sett upp og vinna við hleðslustöðvar er fullkláruð. Hleðslustöðvar eru við bílastæði aftan við hús. (Norð austan megin)
Fasteignamat 2026 er kr. 65.350.000.
Nánari upplýsingar veitir:
Vilborg Gunnarsdóttir löggiltur fasteignasali / s.8918660 / vilborg@domusnova.is
Um skoðunar- og aðgæsluskyldu:
Í lögum um fasteignakaup nr. 40/2002 er kveðið á um ríka skoðunarskyldu kaupenda á fasteignum. DOMUSNOVA fasteignasala bendir væntanlegum kaupendum á að kynna sér vel ástand fasteigna við skoðun og fyrir tilboðsgerð og ef þurfa þykir að leita til sérfræðinga um nánari ástandsskoðun.
Forsendur söluyfirlits:
Söluyfirlit er samið af fasteignasala í samræmi við ákvæði laga nr. 70/2015. Þær upplýsingar sem fram koma í söluyfirliti þessu eru sóttar í opinberar skrár, til seljanda sjálfs og eftir atvikum til húsfélags. Seljandi veitir upplýsingar um eign í samræmi við upplýsingaskyldu laga um fasteignakaup nr. 40/2002, og ábyrgist að þær séu réttar. Fasteignasali sannreynir að þær upplýsingar séu réttar með sjónskoðun á eigninni. Fasteignasali getur ekki fullyrt um ástand og eiginleika þeirra hluta fasteigna sem ekki eru aðgengilegir og sjást ekki berum augum, t.d. lagnir, dren, skólp og þak. Það sama á við um staðhæfingar seljanda eignar um viðhald og einstaka framkvæmdir.
Gjöld sem kaupandi þarf að standa straum af vegna kaupanna:Stimpilgjald af kaupsamningi sem er hlutfall af fasteignamati. Stimpilgjald er 0,8% fyrir einstaklinga (0,4% við fyrstu kaup) og 1,6% fyrir lögaðila. Þinglýsingargjald af kaupsamningi, veðskuldabréfum, veðleyfum o.fl. Þinglýsingargjald er kr. 2.700,- fyrir hvert skjal. Lántökugjald lánastofnunar. Um lántökugjald vísast í gjaldskrá viðkomandi lánveitanda. Umsýsluþóknun fasteignasölu skv. gjaldskrá. Ef um nýbyggingu er að ræða greiðir kaupandi skipulagsgjald, 0,3% af brunabótamáti, þegar það er lagt á.
FALLEG 3JA - 4RA HERBERGJA ÍBÚÐ, 91,0 fm Á JARÐHÆÐ MEÐ 22,4 FM TIMBURVERÖND VIÐ BURKNAVELLI 5B Í HAFNARFIRÐI.
STÆÐI FYLGIR ÍBÚÐ VIÐ INNGANG Á VERÖND. STÆÐIÐ ER EXTRA BREYTT OG ER ENDASTÆÐI.
GEYMSLA INNAN ÍBÚÐAR. ER NÝTT SEM HERBERGI Í DAG - ER GLUGGALAUST RÝMI.
ÞVOTTAHÚS Í ÍBÚÐ.
EIGNIN HENTAR VEL FYRIR HUNDAEIGENDUR VEGNA PALLSINS SEM OG GÓLFEFNA SEM ERU FLÍSAR.
Hafið samband við Vilborgu; vilborg@domusnova eða í síma 891-8660 til að fá söluyfirlit eða nánari upplýsingar.
Nánari lýsing:
Gengið er inn framan við hús í sameigninlega forstofu með dyrasíma og þaðan inn í flísalagðan stigagang. Einnig er inngangur aftan við hús frá bílastæðum staðsettum þar.
Íbúð:
Forstofa með flísum á gólfi og fataskáp.
Eldhús með góðri mahogany viðarinnréttingu, borðkrókur, helluborð m/háf yfir, ofn.
Stofa/borðstofa með flísum á gólfi. Opið inn í eldhúsrými. (Sjá teikningu)
Timburverönd: Útgengt á 22,4 fm timburverönd til suðvesturs með góðum skjólvegg. Hægt er að ganga að bílastæði frá verönd.
Baðherbergi með hvítri innréttingu, flísalögð sturta, sturtugler, flísar á gólfi og veggjum.
Hjónaherbergi með góðum fataskápum. Flísar á gólfi.
Barnaherbergi með fataskáp.Flísar á gólfi.
Þvottahús innan íbúðar er rúmgott með góðu geymsluplássi og innréttingu. Flísar á gólfi.
Geymsla er innan íbúðar en hún er nýtt sem skrifstofa í dag.
Íbúðin er öll með náttúrustein á gólfi fyrir utan baðherbergi og þvottahús.
Sameiginleg hjóla- og vagnageymsla.
Sér merkt bílastæði á lóð tilheyrir íbúðinni.
Leiksvæði barna með leiktækjum er á lóð og er sæmæginlegt.
Skv. yfirlýsingu húsfélags hefur sorptunnuskýli verið sett upp og vinna við hleðslustöðvar er fullkláruð. Hleðslustöðvar eru við bílastæði aftan við hús. (Norð austan megin)
Fasteignamat 2026 er kr. 65.350.000.
Nánari upplýsingar veitir:
Vilborg Gunnarsdóttir löggiltur fasteignasali / s.8918660 / vilborg@domusnova.is
Um skoðunar- og aðgæsluskyldu:
Í lögum um fasteignakaup nr. 40/2002 er kveðið á um ríka skoðunarskyldu kaupenda á fasteignum. DOMUSNOVA fasteignasala bendir væntanlegum kaupendum á að kynna sér vel ástand fasteigna við skoðun og fyrir tilboðsgerð og ef þurfa þykir að leita til sérfræðinga um nánari ástandsskoðun.
Forsendur söluyfirlits:
Söluyfirlit er samið af fasteignasala í samræmi við ákvæði laga nr. 70/2015. Þær upplýsingar sem fram koma í söluyfirliti þessu eru sóttar í opinberar skrár, til seljanda sjálfs og eftir atvikum til húsfélags. Seljandi veitir upplýsingar um eign í samræmi við upplýsingaskyldu laga um fasteignakaup nr. 40/2002, og ábyrgist að þær séu réttar. Fasteignasali sannreynir að þær upplýsingar séu réttar með sjónskoðun á eigninni. Fasteignasali getur ekki fullyrt um ástand og eiginleika þeirra hluta fasteigna sem ekki eru aðgengilegir og sjást ekki berum augum, t.d. lagnir, dren, skólp og þak. Það sama á við um staðhæfingar seljanda eignar um viðhald og einstaka framkvæmdir.
Gjöld sem kaupandi þarf að standa straum af vegna kaupanna:
Ár
Fasteignamat
Kaupverð
Stærð
Fermetraverð
27. apr. 2017
25.300.000 kr.
38.500.000 kr.
91 m²
423.077 kr.
11. des. 2013
19.300.000 kr.
21.000.000 kr.
91 m²
230.769 kr.
Byggt á upplýsingum úr Þjóðskrá Íslands frá 2006-2026