Upplýsingar
Verðsaga
Byggt 2006
119,8 m²
3 herb.
1 baðherb.
2 svefnh.
Þvottahús
Sameiginl. inngangur
Bílastæði
Lyfta
Lýsing
Háborg fasteignasala og Jórunn lögg.fasteingnasali kynna í einkasölu: Sérlega falleg rúmgóð og björt 119,8 fm íbúð á 1. hæð ásamt sér stæði í bílageymslu, fyrir heldri borgara 50 ára og eldri. Íbúðin er stór 3ja herbergja. Sér þvottahús er í íbúð. Útgangur úr stofu, er á sér afgirta timbur verönd í garði. Húsið er álklætt og því nær viðhaldslítið að utan. Afhending samkomulag.
Birt stærð eignar er 119,8 fm samkvæmt HMS, þar af er 8,3 fm geymsla. Fasteignamat eignar er kr. 94.700.000-
Um er að ræða einstaklega glæsilega íbúð á frábærum stað. Í byggð þar sem ekki eru mjög háar byggingar en góðir göngustígar og góð þjónusta í hverfinu. Jóns hús í næsta húsi, þar sem öll helsta þjónusta er veitt af Das og sveitafélaginu.
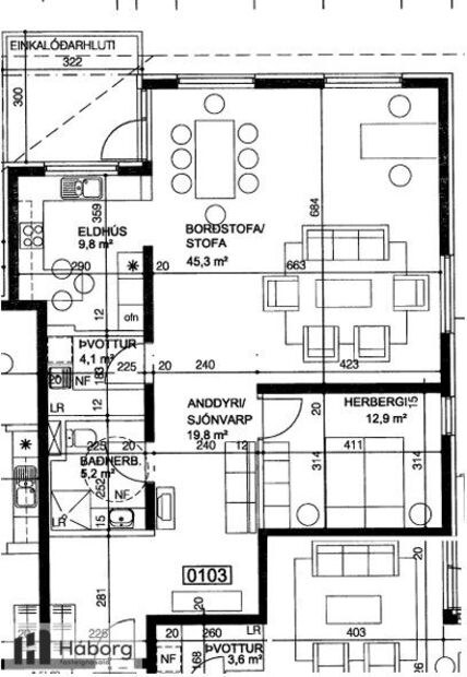
Eignin skipar: forstofu, sjónvarpshol, 2. svefnherbergi, stofu/borðstofu, eldhús, baðherbergi, þvottahús og geymslu í kjallara. Úr stofu er gengið út á afgirta verönd. Eigninni fylgir bílastæði í lokuðum bílakjallara.
Nánari lýsing á eigninni: Þegar komið er inn í íbúðina er rúmgóð opin forstofu með góðum fataskápum. Úr forstofu er komið inn í hol sem er nýtt í dag sem sjónvaprshol. Sér þvottahús innan íbúðar með góðri vinnuaðstöðu. Baðherbergið er með góðri snyrtiaðstöðu, sturta og innrétting undir handlaug með speglaskápi fyrir ofan handlaug. Svefnherbergin 2 eru bæði rúmgóð og björt og annað þeirra með skápum. Eldhúsið er hannað í U með ljósri innréttingu. Í eldhúsi er góður borðkrókur við vegg. Eigninni fylgir góð geymsla í kjallara og stæði í bílkjallara.
Húsið: 17. Júní torg, 1-3-5-7, er fjölbýlishús með 66 íbúðum, hannaðar fyrir heldri borgara, eldri en 50.ára.
Húsið er byggt árið 2006 og er steinsteypt. I meginatriðum skiptist húsið í tvo hluta, 6 hæða byggingu og einu stigahúsi og L-laga 4 hæða byggingu með 3 stigahúsum, þessir hlutar eru sambyggðir. Í kjallara eru geymslur ásamt bílageymslu fyrir 48 bíla.
Húsfélag: í húsinu er virkt húsfélag. Ekki eru fyrirhugaðar framkvæmdir eða yfirstandandi.
Stæði í upphitaðri bílageymslu fylgir, merkt B-14 - möguleiki á hleðslustöð í bílageymslu - hleðslustöðvar á bílaplani.
Í kjallara er sér geymsla ásamt sameiginlegri hjólageymslu.
Nánari upplýsingar veitir Jórunn Skúladóttir lögg. fasteignasali, í síma 845-8958, eða tölvupóstur jorunn@haborg.is
Gjöld sem kaupandi þarf að standa straum af vegna kaupanna:
Stimpilgjald af kaupsamningi sem er hlutfall af fasteignamati. Stimpilgjald er 0,8% fyrir einstaklinga (0,4% við fyrstu kaup) og 1,6% fyrir lögaðila.
Þinglýsingargjald af kaupsamningi, veðskuldabréfum, veðleyfum o.fl. Þinglýsingargjald er kr. 2.700,- fyrir hvert skjal. Lántökugjald lánastofnunar. Um lántökugjald vísast í gjaldskrá viðkomandi lánveitanda. Umsýsluþóknun fasteignasölu skv. gjaldskrá.
Birt stærð eignar er 119,8 fm samkvæmt HMS, þar af er 8,3 fm geymsla. Fasteignamat eignar er kr. 94.700.000-
Um er að ræða einstaklega glæsilega íbúð á frábærum stað. Í byggð þar sem ekki eru mjög háar byggingar en góðir göngustígar og góð þjónusta í hverfinu. Jóns hús í næsta húsi, þar sem öll helsta þjónusta er veitt af Das og sveitafélaginu.
Eignin skipar: forstofu, sjónvarpshol, 2. svefnherbergi, stofu/borðstofu, eldhús, baðherbergi, þvottahús og geymslu í kjallara. Úr stofu er gengið út á afgirta verönd. Eigninni fylgir bílastæði í lokuðum bílakjallara.
Nánari lýsing á eigninni: Þegar komið er inn í íbúðina er rúmgóð opin forstofu með góðum fataskápum. Úr forstofu er komið inn í hol sem er nýtt í dag sem sjónvaprshol. Sér þvottahús innan íbúðar með góðri vinnuaðstöðu. Baðherbergið er með góðri snyrtiaðstöðu, sturta og innrétting undir handlaug með speglaskápi fyrir ofan handlaug. Svefnherbergin 2 eru bæði rúmgóð og björt og annað þeirra með skápum. Eldhúsið er hannað í U með ljósri innréttingu. Í eldhúsi er góður borðkrókur við vegg. Eigninni fylgir góð geymsla í kjallara og stæði í bílkjallara.
Húsið: 17. Júní torg, 1-3-5-7, er fjölbýlishús með 66 íbúðum, hannaðar fyrir heldri borgara, eldri en 50.ára.
Húsið er byggt árið 2006 og er steinsteypt. I meginatriðum skiptist húsið í tvo hluta, 6 hæða byggingu og einu stigahúsi og L-laga 4 hæða byggingu með 3 stigahúsum, þessir hlutar eru sambyggðir. Í kjallara eru geymslur ásamt bílageymslu fyrir 48 bíla.
Húsfélag: í húsinu er virkt húsfélag. Ekki eru fyrirhugaðar framkvæmdir eða yfirstandandi.
Stæði í upphitaðri bílageymslu fylgir, merkt B-14 - möguleiki á hleðslustöð í bílageymslu - hleðslustöðvar á bílaplani.
Í kjallara er sér geymsla ásamt sameiginlegri hjólageymslu.
Nánari upplýsingar veitir Jórunn Skúladóttir lögg. fasteignasali, í síma 845-8958, eða tölvupóstur jorunn@haborg.is
Gjöld sem kaupandi þarf að standa straum af vegna kaupanna:
Stimpilgjald af kaupsamningi sem er hlutfall af fasteignamati. Stimpilgjald er 0,8% fyrir einstaklinga (0,4% við fyrstu kaup) og 1,6% fyrir lögaðila.
Þinglýsingargjald af kaupsamningi, veðskuldabréfum, veðleyfum o.fl. Þinglýsingargjald er kr. 2.700,- fyrir hvert skjal. Lántökugjald lánastofnunar. Um lántökugjald vísast í gjaldskrá viðkomandi lánveitanda. Umsýsluþóknun fasteignasölu skv. gjaldskrá.
Ár
Fasteignamat
Kaupverð
Stærð
Fermetraverð
13. ágú. 2021
57.550.000 kr.
65.000.000 kr.
119.8 m²
542.571 kr.
14. maí. 2021
57.550.000 kr.
58.000.000 kr.
119.8 m²
484.140 kr.
5. júl. 2017
41.250.000 kr.
52.500.000 kr.
119.8 m²
438.230 kr.
10. sep. 2014
31.450.000 kr.
31.000.000 kr.
119.8 m²
258.765 kr.
Byggt á upplýsingum úr Þjóðskrá Íslands frá 2006-2026