Upplýsingar
Verðsaga
Byggt 2008
115,7 m²
4 herb.
1 baðherb.
3 svefnh.
Þvottahús
Sameiginl. inngangur
Bílastæði
Lyfta
Lýsing
Betri Stofan og Jason Kristinn sími 775 1515 löggiltur fasteignasali kynna: Langalína 29, 4ra herbergja íbúð á efstu hæð með stæði í bílakjallara.
Rúmgóð lofthæð, eða 4.2 metrar í alrými og útsýni til sjávar. Rúmgóðar suður svalir. Lyftuhús.
Íbúðin var að mestu endurnýjuð að innan árið 2019 og síðan máluð öll og yfirfarin árið 2024.
Granít og kvartz borðplötur, Vola blöndunartæki. Mjög gott skipulag. Þrjú svefnherbergi og glæsileg stofa
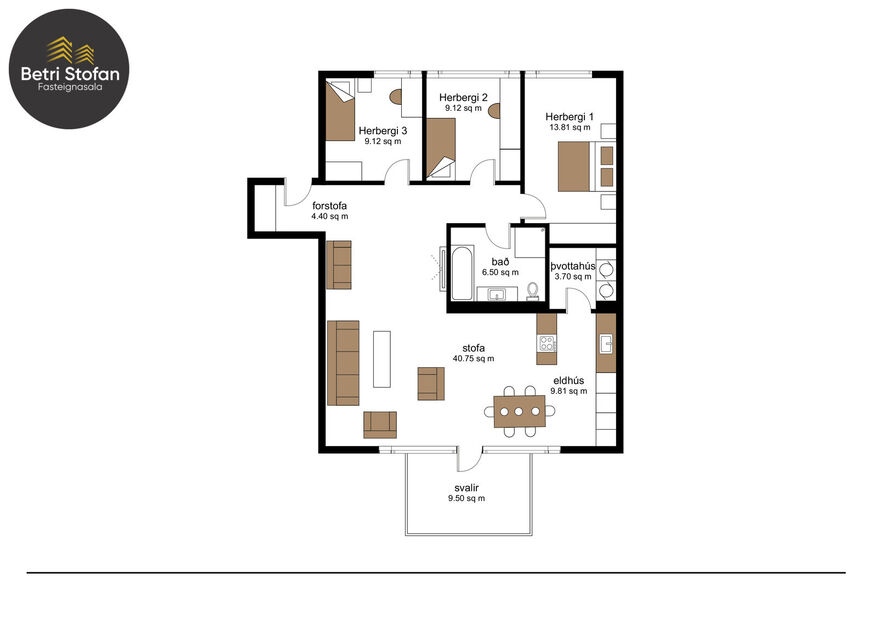
Forstofa: Flísalögð með góðu skápaplássi.
Sjónvarpsstofa: Parketlagt sjónvarpshol í miðju íbúðar sem skilur af alrými og svefnherbergi.
Eldhús: Opið eldhús með dökkri innréttingu ásamt eyju, Granítborðplötur á borði og 4,2 metra lofthæð.
Stofa og borðstofa; Rúmgóðar og bjartar, samliggjandi í einu stóru rými, 4,2 metra lofthæð. Útgengi út á suðursvalir, útsýni til sjávar og ylströnd Garðabæjar.
Gluggi frá gólfi til lofts frá eldhúsi og alveg að stofu sem gefur einstaka birtu.
Hjónaherbergi: Teppalagt hlýlegt hjónaherbergi með fataskápum (14,8 fm).
Svefnherbergi II: Parketlagt með góðu skápaplássi.
Svefnherbergi III: Parketlagt með góðu skápaplássi.
Baðherbergi: Flísalagt baðherbergi með svartri innréttingu og skápum, Kvartz borðplata og falleg handlaug með svörtum Vola tækjum.
Stór sturta með glerskilrúmi og innbyggðum svörtum Vola tækjum.
Þvottahús: Flísalagt sér þvottahús með vinnuborði og rými fyrir þvottavél og þurrkara.
Bílakjallari: Sérmerkt bílastæði í upphituðum bílakjallara með hleðslustöð.
Sameign: Snyrtileg sameign, sérgeymsla ásamt hjóla- og vagnageymslu.
Stutt í skóla og fallegar gönguleiðir við sjávarsíðuna.
Nánari upplýsingar veitir: Jason Kristinn Ólafsson, netfang: jason@betristofan.is / sími 775 1515 löggiltur fasteignasali
Rúmgóð lofthæð, eða 4.2 metrar í alrými og útsýni til sjávar. Rúmgóðar suður svalir. Lyftuhús.
Íbúðin var að mestu endurnýjuð að innan árið 2019 og síðan máluð öll og yfirfarin árið 2024.
Granít og kvartz borðplötur, Vola blöndunartæki. Mjög gott skipulag. Þrjú svefnherbergi og glæsileg stofa
Forstofa: Flísalögð með góðu skápaplássi.
Sjónvarpsstofa: Parketlagt sjónvarpshol í miðju íbúðar sem skilur af alrými og svefnherbergi.
Eldhús: Opið eldhús með dökkri innréttingu ásamt eyju, Granítborðplötur á borði og 4,2 metra lofthæð.
Stofa og borðstofa; Rúmgóðar og bjartar, samliggjandi í einu stóru rými, 4,2 metra lofthæð. Útgengi út á suðursvalir, útsýni til sjávar og ylströnd Garðabæjar.
Gluggi frá gólfi til lofts frá eldhúsi og alveg að stofu sem gefur einstaka birtu.
Hjónaherbergi: Teppalagt hlýlegt hjónaherbergi með fataskápum (14,8 fm).
Svefnherbergi II: Parketlagt með góðu skápaplássi.
Svefnherbergi III: Parketlagt með góðu skápaplássi.
Baðherbergi: Flísalagt baðherbergi með svartri innréttingu og skápum, Kvartz borðplata og falleg handlaug með svörtum Vola tækjum.
Stór sturta með glerskilrúmi og innbyggðum svörtum Vola tækjum.
Þvottahús: Flísalagt sér þvottahús með vinnuborði og rými fyrir þvottavél og þurrkara.
Bílakjallari: Sérmerkt bílastæði í upphituðum bílakjallara með hleðslustöð.
Sameign: Snyrtileg sameign, sérgeymsla ásamt hjóla- og vagnageymslu.
Stutt í skóla og fallegar gönguleiðir við sjávarsíðuna.
Nánari upplýsingar veitir: Jason Kristinn Ólafsson, netfang: jason@betristofan.is / sími 775 1515 löggiltur fasteignasali
Gjöld sem kaupandi þarf að standa straum af ef að kaupum verður:
1. Stimpilgjald af fasteignamati fasteignar er 0.8%, en 0,4% fyrir fyrstu kaup og 1,6% fyrir lögaðila.
2. Þinglýsingargjald: kaupsamningi, skuldabréfi, veðleyfi, afsali o.s.frv. er kr. 3.800 af hverju skjali.
3. Lántökukostnaður samkvæmt verðskrá viðkomandi lánastofnunar.
4. Umsýslugjald til fasteignasölu skv. gjaldskrá.
Skoðunarskylda kaupanda:
Í lögum um fasteignakaup nr. 40/2002 er kveðið á um ríka skoðunarskyldu kaupenda á fasteignum. Betri Stofan fasteignasala bendir væntanlegum kaupendum á að kynna sér vel ástand fasteigna við skoðun og fyrir tilboðsgerð og ef þurfa þykir að leita til sérfræðinga um nánari ástandsskoðun.
Ár
Fasteignamat
Kaupverð
Stærð
Fermetraverð
2. nóv. 2018
91.050.000 kr.
62.500.000 kr.
10304 m²
6.066 kr.
5. mar. 2024
91.050.000 kr.
108.000.000 kr.
115.7 m²
933.449 kr.
2. júl. 2013
31.850.000 kr.
39.500.000 kr.
115.7 m²
341.400 kr.
21. nóv. 2008
31.590.000 kr.
31.375.000 kr.
115.7 m²
271.175 kr.
Byggt á upplýsingum úr Þjóðskrá Íslands frá 2006-2026