Upplýsingar
Verðsaga
Byggt 1991
74,9 m²
3 herb.
1 baðherb.
2 svefnh.
Útsýni
Sameiginl. inngangur
Lýsing
Fasteignasalan Hvammur - 466-1600
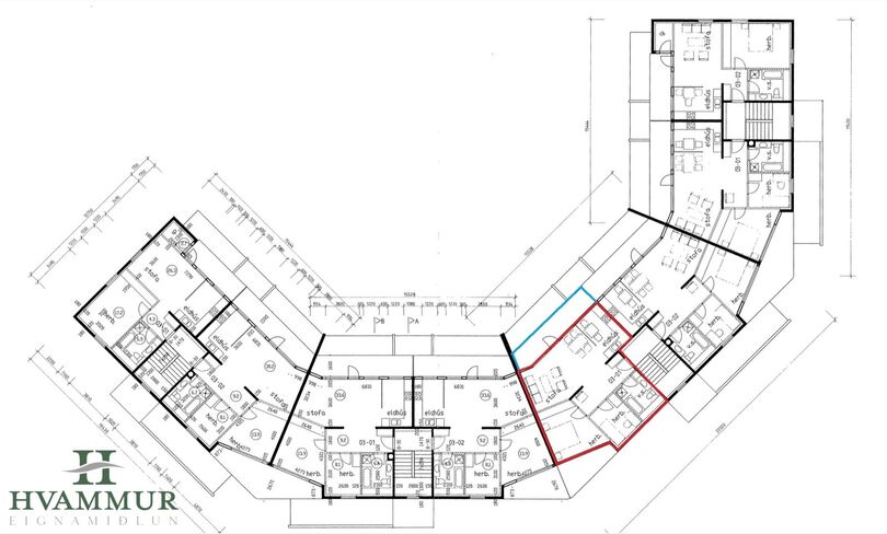
Vestursíða 36 íbúð 301 - björt og vel skipulögð 3ja herbergja íbúð á 3.hæð (efstu) í fjölbýli í Síðuhverfi - stærð 74,9 m²
Eignin skiptist í forstofu/hol, eldhús, stofu, tvö svefnherbergi, baðherbergi, sameiginlegt þvottahús og sér geymslu í kjallara.
Nánari lýsing:
Forstofan er með harðparketi á gólfi, skáp og opnu fatahengi.
Eldhúsið er með ljósri L-laga innrétting með flísum á milli skápa. Stæði er í innréttingu fyrir ísskáp og uppþvottavél.
Stofan og eldhúsið eru í opnu rými með stórum gluggum til suðvesturs og hurð út á hellulagðar svalir.
Svefnherbergin eru tvö, bæði með ljósu harðparketi á gólfi og hvítum fataskápum.
Baðherbergi er með flísum á gólfi og hluta veggja, vegghengt wc, baðkari með sturtutækjum, tengi fyrir þvottavél og opnanlegum glugga.
Sameiginlegt þvotthús er á annarri hæð og sér geymsla er í kjallara.
Annað
- Ljósleiðari er kominn inn og tengdur.
- Teppi á sameign var endurnýjað 2020.
- Húsið var málað utan sumarið 2021.
- Góð staðsettning, stutt er í leik- og grunnskóla.
Um skoðunar- og aðgæsluskyldu:
Í lögum um fasteignakaup nr. 40/2002 er kveðið á um ríka skoðunarskyldu kaupenda á fasteignum. Fasteignasalan Hvammur skorar því á væntanlega kaupendur að kynna sér vel ástand fasteigna fyrir kauptilboðsgerð og leita til þar til bærra sérfræðinga um nánari skoðun ef með þarf.
Forsendur söluyfirlits:
Söluyfirlit er samið af fasteignasala í samræmi við ákvæði laga nr. 70/2015. Þær upplýsingar sem fram koma í söluyfirliti þessu eru sóttar í opinberar skrár, til seljanda sjálfs og eftir atvikum til húsfélags. Seljandi veitir upplýsingar um eign í samræmi við upplýsingaskyldu laga um fasteignakaup nr. 40/2002. Fasteignasali sannreynir að þær upplýsingar séu réttar með sjónskoðun á eigninni.
Fasteignasali getur ekki fullyrt um ástand og eiginleika þeirra hluta fasteigna sem ekki eru aðgengilegir og sjást ekki berum augum, t.d. lagnir, dren, skólp og þak.
Vestursíða 36 íbúð 301 - björt og vel skipulögð 3ja herbergja íbúð á 3.hæð (efstu) í fjölbýli í Síðuhverfi - stærð 74,9 m²
Eignin skiptist í forstofu/hol, eldhús, stofu, tvö svefnherbergi, baðherbergi, sameiginlegt þvottahús og sér geymslu í kjallara.
Nánari lýsing:
Forstofan er með harðparketi á gólfi, skáp og opnu fatahengi.
Eldhúsið er með ljósri L-laga innrétting með flísum á milli skápa. Stæði er í innréttingu fyrir ísskáp og uppþvottavél.
Stofan og eldhúsið eru í opnu rými með stórum gluggum til suðvesturs og hurð út á hellulagðar svalir.
Svefnherbergin eru tvö, bæði með ljósu harðparketi á gólfi og hvítum fataskápum.
Baðherbergi er með flísum á gólfi og hluta veggja, vegghengt wc, baðkari með sturtutækjum, tengi fyrir þvottavél og opnanlegum glugga.
Sameiginlegt þvotthús er á annarri hæð og sér geymsla er í kjallara.
Annað
- Ljósleiðari er kominn inn og tengdur.
- Teppi á sameign var endurnýjað 2020.
- Húsið var málað utan sumarið 2021.
- Góð staðsettning, stutt er í leik- og grunnskóla.
Um skoðunar- og aðgæsluskyldu:
Í lögum um fasteignakaup nr. 40/2002 er kveðið á um ríka skoðunarskyldu kaupenda á fasteignum. Fasteignasalan Hvammur skorar því á væntanlega kaupendur að kynna sér vel ástand fasteigna fyrir kauptilboðsgerð og leita til þar til bærra sérfræðinga um nánari skoðun ef með þarf.
Forsendur söluyfirlits:
Söluyfirlit er samið af fasteignasala í samræmi við ákvæði laga nr. 70/2015. Þær upplýsingar sem fram koma í söluyfirliti þessu eru sóttar í opinberar skrár, til seljanda sjálfs og eftir atvikum til húsfélags. Seljandi veitir upplýsingar um eign í samræmi við upplýsingaskyldu laga um fasteignakaup nr. 40/2002. Fasteignasali sannreynir að þær upplýsingar séu réttar með sjónskoðun á eigninni.
Fasteignasali getur ekki fullyrt um ástand og eiginleika þeirra hluta fasteigna sem ekki eru aðgengilegir og sjást ekki berum augum, t.d. lagnir, dren, skólp og þak.
Ár
Fasteignamat
Kaupverð
Stærð
Fermetraverð
6. júl. 2022
26.200.000 kr.
41.700.000 kr.
74.9 m²
556.742 kr.
9. mar. 2020
26.350.000 kr.
25.000.000 kr.
74.9 m²
333.778 kr.
Byggt á upplýsingum úr Þjóðskrá Íslands frá 2006-2026