Löggiltir fasteignasalar innan Félags fasteignasala:
Hannes Steindórsson

Bogi Molby Pétursson

Guðrún Antonsdóttir

Heimir Hallgrímsson

Hrafnkell P. H. Pálmason

Viðar Marinósson

Elías Haraldsson

Kristján Þórir Hauksson

Albert Bjarni Úlfarsson

Ragnar Þorsteinsson

Þórey Ólafsdóttir
Andri Freyr Halldórsson

Upplýsingar
Byggt 2022
103,8 m²
3 herb.
1 baðherb.
2 svefnh.
Þvottahús
Sameiginl. inngangur
Bílastæði
Lyfta
Opið hús: 23. október 2025
kl. 17:00
til 17:30
Opið hús: Sunnusmári 5, 201 Kópavogur, Íbúð merkt: 01 04 04. Eignin verður sýnd fimmtudaginn 23. október 2025 milli kl. 17:00 og kl. 17:30.
Lýsing
Nýtt á skrá!! Sunnusmári 5 - Glæsileg 3ja herb. íbúð á fjórðu hæð.
LIND Fasteignasala / Heimir Hallgrímsson lögg. fasteignasali kynnir afar fallega 103,8 fermetra 3ja herbergja íbúð við Sunnusmára 5 í Kópavogi. Íbúðin skiptist í 89,9 fermetra íbúðarrými og 13,9 fermetra geymslu í kjallara. Virkilega gott skipulag þar sem fermetrar nýtast vel. Sérstæði í bílakjallara fylgir íbúð þar sem búið er að leggja grunn fyrir rafhleðslukerfi.
Íbúðin er með nýlegu harðparketi á gólfum og nýlegum gardínum í gluggum. Innangengt er úr bílakjallara í lyftu- og stigahús. Svalir til suðurs inn í skjólgóðan garð milli Sunnusmára 1-13. Öll eldhústæki fylgja og er kæliskápur með frysti og uppþvottavél innbyggð í innréttingu.
Húsið er steinsteypt og útveggir einangraðir að utan, klætt álklæðningu sem tryggir lágmarks viðhald húsanna. Gluggar eru ál/tré kerfi og glerjaðir með K-gleri. Innveggir aðrir en steyptir eru úr hleðslusteini. Fallegur sameiginlegur garður til suðurs sem verður fullfrágenginn.
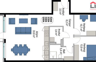
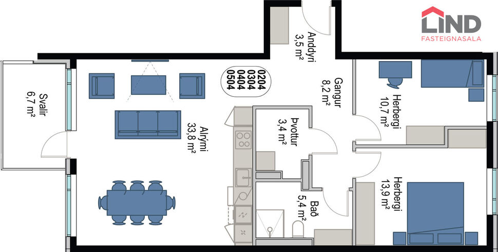
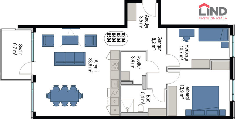
Íbúð 404: Er glæsileg 3 herbergja íbúð. Heildarstærð er 103,8 fermetrar og er staðsett á fjórðu hæð. Íbúðinni fylgir bílastæði í bílakjallara og 13,9 fermetra geymsla. 6,7 fermetra svalir til suðurs. Afhending er við kaupsamning.
Nánari lýsing:
Íbúðin skiptist í forstofu, eldhús í alrými sem er staðsett við stofu/borðstofu, 2 svefnherbergi, baðherbergi og þvottaherbergi.
Sunnusmári er nýtt hverfi miðsvæðis á höfuðborgarsvæðinu. Stutt er í alla þjónustu, verslanir, skóla og leikskóla.
ÞG Verk er verktaki hússins og hafa þeir um 30 ára reynslu á byggingarmarkaði. Fyrirtækið leggur áherslu á vandaðar íbúðir, góða þjónustu og skil íbúða á réttum tíma. Áreiðanleiki, gæði og notagildi eru einkunnarorð ÞG verks og fyrirtækið kappkostar að eiga gott samstarf við viðskiptavini sína.
BÓKIÐ SKOÐUN!
ALLAR NÁNARI UPPLÝSINGAR VEITA:
Heimir F. Hallgrímsson í síma: 849-0672 / HEIMIR@FASTLIND.IS
Innréttingar: Í eldhúsi og baðherbergi eru frá þýska framleiðandanum Nobilia og fataskápar frá GKS smíðaverkstæði. Lýsing undir efri skápum í eldhúsum. Speglaskápar er á baðherbergi.
Eldhústæki: Íbúðinni fylgja vönduð eldhústæki af gerðinni Bosch. Íbúðin er með span helluborði, innbyggðum kæliskáp, innbyggðri uppþvottavél, blástursofni og viftu.
Hreinlætistæki: Salernisskál er vegghengd með innbyggðum vatnskassa. Sturta er með flísalögðum botni og hertu sturtugleri. Hreinlætistæki eru frá Damixa. Sér þvottahús er innan íbúðar.
Kaupandi greiðir skipulagsgjald sem nemur 0,3% af brunabótamati.
LIND Fasteignasala / Heimir Hallgrímsson lögg. fasteignasali kynnir afar fallega 103,8 fermetra 3ja herbergja íbúð við Sunnusmára 5 í Kópavogi. Íbúðin skiptist í 89,9 fermetra íbúðarrými og 13,9 fermetra geymslu í kjallara. Virkilega gott skipulag þar sem fermetrar nýtast vel. Sérstæði í bílakjallara fylgir íbúð þar sem búið er að leggja grunn fyrir rafhleðslukerfi.
Íbúðin er með nýlegu harðparketi á gólfum og nýlegum gardínum í gluggum. Innangengt er úr bílakjallara í lyftu- og stigahús. Svalir til suðurs inn í skjólgóðan garð milli Sunnusmára 1-13. Öll eldhústæki fylgja og er kæliskápur með frysti og uppþvottavél innbyggð í innréttingu.
Húsið er steinsteypt og útveggir einangraðir að utan, klætt álklæðningu sem tryggir lágmarks viðhald húsanna. Gluggar eru ál/tré kerfi og glerjaðir með K-gleri. Innveggir aðrir en steyptir eru úr hleðslusteini. Fallegur sameiginlegur garður til suðurs sem verður fullfrágenginn.
Íbúð 404: Er glæsileg 3 herbergja íbúð. Heildarstærð er 103,8 fermetrar og er staðsett á fjórðu hæð. Íbúðinni fylgir bílastæði í bílakjallara og 13,9 fermetra geymsla. 6,7 fermetra svalir til suðurs. Afhending er við kaupsamning.
Nánari lýsing:
Íbúðin skiptist í forstofu, eldhús í alrými sem er staðsett við stofu/borðstofu, 2 svefnherbergi, baðherbergi og þvottaherbergi.
Sunnusmári er nýtt hverfi miðsvæðis á höfuðborgarsvæðinu. Stutt er í alla þjónustu, verslanir, skóla og leikskóla.
ÞG Verk er verktaki hússins og hafa þeir um 30 ára reynslu á byggingarmarkaði. Fyrirtækið leggur áherslu á vandaðar íbúðir, góða þjónustu og skil íbúða á réttum tíma. Áreiðanleiki, gæði og notagildi eru einkunnarorð ÞG verks og fyrirtækið kappkostar að eiga gott samstarf við viðskiptavini sína.
BÓKIÐ SKOÐUN!
ALLAR NÁNARI UPPLÝSINGAR VEITA:
Heimir F. Hallgrímsson í síma: 849-0672 / HEIMIR@FASTLIND.IS
Innréttingar: Í eldhúsi og baðherbergi eru frá þýska framleiðandanum Nobilia og fataskápar frá GKS smíðaverkstæði. Lýsing undir efri skápum í eldhúsum. Speglaskápar er á baðherbergi.
Eldhústæki: Íbúðinni fylgja vönduð eldhústæki af gerðinni Bosch. Íbúðin er með span helluborði, innbyggðum kæliskáp, innbyggðri uppþvottavél, blástursofni og viftu.
Hreinlætistæki: Salernisskál er vegghengd með innbyggðum vatnskassa. Sturta er með flísalögðum botni og hertu sturtugleri. Hreinlætistæki eru frá Damixa. Sér þvottahús er innan íbúðar.
Kaupandi greiðir skipulagsgjald sem nemur 0,3% af brunabótamati.