Löggiltir fasteignasalar innan Félags fasteignasala:
Sigurður Maack Gunnarsson
Svanþór Einarsson
Theodór Emil Karlsson
Steingrímur Benediktsson
Vista
einbýlishús

Vogatunga 5

270 Mosfellsbær

218.000.000 kr.

688.784 þ.kr./m2
Fasteignanúmer

F2316746

Fasteignamat

153.450.000 kr.

Brunabótamat

168.800.000 kr.

Áhvílandi

0 kr.

Arion banki – Reikna lán
Upplýsingar
Verðsaga
svg
Byggt 2020
svg
316,5 m²
svg
7 herb.
svg
2 baðherb.
svg
5 svefnh.
svg
Þvottahús
svg
Bílskúr
svg
Sérinngangur

Lýsing

** Hafðu samband og bókaðu tíma fyrir skoðun - Svanþór Einarsson, löggiltur fasteignasali - svanthor@fastmos.is eða 698-8555 - Theodór Emil Karlsson, löggiltur fasteignasali - teddi@fastmos.is eða 690-8040 - Steingrímur Benediktsson, löggiltur fasteignasali - steingrimur@fastmos.is eða 862-9416 **

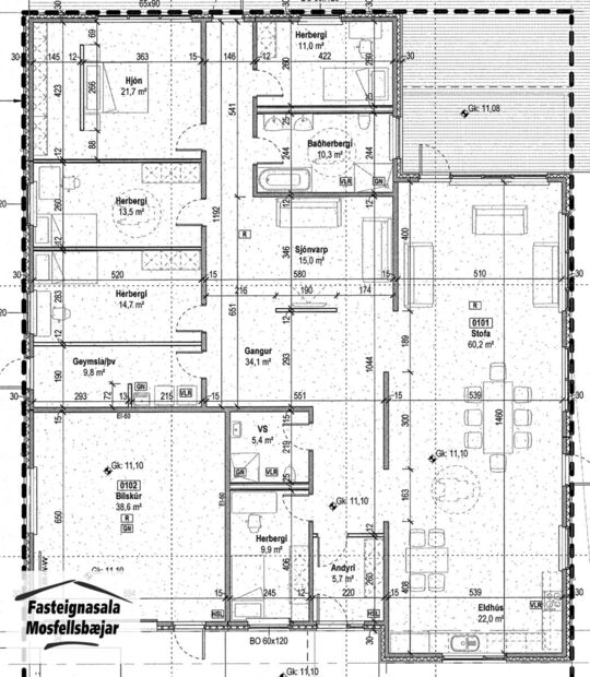
Fasteignasala Mosfellsbæjar kynnir: Fallegt og vel skipulagt 316,5 m2 einbýlishús á einni hæð með mikilli lofthæð og innbyggðum bílskúr við Vogatungu 5 í Mosfellsbæ. Eignin skiptist í fimm svefnherbergi, tvö baðherbergi, þvottahús, geymslu, forstofu, sjónvarpshol, eldhús, stofu, borðstofu og bílskúr. Lóðin afgirt að mesu leiti og grófjöfnuð.  Seljandi skoðar ýmis eignaskipti, td á íbúðarhúsnæði, atvinnuhúsnæði eða lóð.
Eignin er staðsett í nýlegu fjölskylduvænu hverfi í Mosfellsbæ. Stutt í gönguleiðir og íþrótta- og útivistarsvæði. Íþróttamiðstöðin að Varmá, Varmárskóli og miðbær Mosfellsbæjar aðeins í nokkra mínútna akstursfjarlægð. 

Smelltu hér til að fá söluyfirlit sent


Nánari lýsing:
Forstofa er flísalögð með góðum fataskápum. 
Eldhús, stofa og borðstofa mynda rúmgott og bjart alrými með parket á gólfi. Í eldhúsi er falleg hvít L-laga innrétting, stór eyja með rafmagni, ofn í vinnuhæð auk þess er gert ráð fyrir ísskáp og uppþvottavél í innréttingu. Úr stofu er útgengt á lóð til suðurs.
Sjónvarpshol með parket á gólfi er í miðju hússins.
Svefnherbergi nr. 1 (hjónaherbergi) er rúmgott með parket á gólfi. Inn af hjónaherbergi er fataherbergi (breyting frá teikningu, fataherbergi var stækkað).
Svefnherbergi nr. 2 er rúmgott með parket á gólfi.
Svefnherbergi nr. 3 er rúmgott með parket á gólfi.
Svefnherbergi nr. 4 er rúmgott með parket á gólfi.
Svefnherbergi nr. 5 er inn af forstofu/gangi og er með parket á gólfi.
Baðherbergi nr. 1 er rúmgott, flísalagt í hólf og gólf með fallegri innréttingu, baðkari, sturtu, upphengdu salerni og tveimur handlaugum.
Baðherbergi nr. 2 er flísalagt í hólf og gólf með góðri innréttingu, upphengdu salerni, handlaug og sturtu.
Þvottahús er með flísum á gólfi, handlaug og góðri innréttingu. Gert er ráð fyrir þvottavél og þurrkara í vinnuhæð. Inn af þvottahúsi er geymsla. (Breyting frá teikningu, sameiginlegt fataherbergi er fyrir barnaherbergi inn af þvottahúsi).
Bílskúr er frágenginn með epoxy á gólfi. 
Unnið er að lokafrágangi innanhúss í eigninni.
Húsið er byggt úr forsteyptum einingum. Þak er varið með PVC dúk og malarfargi. Þakrennur, niðurföll og þakkantur frágengin. Á lóðinni er gert ráð fyrir tveimur bílastæðum og sorpskýli fyrir þrjú sorpílát. Gluggar úr áli/tré með tvöföldu gleri. Inngangshurðar/svalahurðar úr tré og hvít bílskúrshurð. Innréttingar og skápar smíðaðar af Tréinn ehf.

Fyrirhugað fasteignamat fyrir árið 2026 er 167.800.000 kr.

Verð kr. 218.000.000



 



Um skoðunar- og aðgæsluskyldu:
Í lögum um fasteignakaup nr. 40/2002 er kveðið á um ríka skoðunarskyldu kaupenda á fasteignum. Fasteignasala Mosfellsbæjar skorar því á væntanlega kaupendur að kynna sér vel ástand fasteigna fyrir kauptilboðsgerð og leita til þar til bærra sérfræðinga um nánari skoðun ef með þarf.

Forsendur söluyfirlits:
Söluyfirlit er samið af fasteignasala í samræmi við ákvæði laga nr. 70/2015. Þær upplýsingar sem fram koma í söluyfirliti þessu eru sóttar í opinberar skrár, til seljanda sjálfs og eftir atvikum til húsfélags. Seljandi veitir upplýsingar um eign í samræmi við upplýsingaskyldu laga um fasteignakaup nr. 40/2002. Fasteignasali sannreynir að þær upplýsingar séu réttar með sjónskoðun á eigninni.
Fasteignasali getur ekki fullyrt um ástand og eiginleika þeirra hluta fasteigna sem ekki eru aðgengilegir og sjást ekki berum augum, t.d. lagnir, dren, skólp og þak.

Gjöld sem kaupandi þarf að greiða vegna kaupa:
1. Stimpilgjald af kaupsamningi sem er hlutfall af fasteignamati. Stimpilgjald er 0,8% fyrir einstaklinga (0,4% við fyrstu kaup) og 1,6% fyrir lögaðila.
2. Þinglýsingargjald af kaupsamningi, veðskuldabréfum, veðleyfum o.fl. Þinglýsingargjald er kr. 2.700,- fyrir hvert skjal.
3. Lántökugjald lánastofnunar - er skv. gjaldskrá viðkomandi lánastofnunar.
4. Umsýslugjald til fasteignasölu skv. kauptilboði.
5. Þegar um nýbyggingu er að ræða greiðir kaupandi skipulagsgjald, 0,3% af endanlegu brunabótamáti, þegar það er lagt á af viðkomandi sveitarfélagi.

img
Svanþór Einarsson
Lögg.fasteignasali innan félags fasteignasala
Fasteignasala Mosfellsbæjar
Þverholti 2, 270 Mosfellsbæ
Fasteignasala Mosfellsbæjar

Fasteignasala Mosfellsbæjar

Þverholti 2, 270 Mosfellsbæ
phone
img

Svanþór Einarsson

Þverholti 2, 270 Mosfellsbæ
Ár
Fasteignamat
Kaupverð
Stærð
Fermetraverð
19. jan. 2018
12.450.000 kr.
15.900.000 kr.
316.5 m²
50.237 kr.
Byggt á upplýsingum úr Þjóðskrá Íslands frá 2006-2025
Fasteignasala Mosfellsbæjar

Fasteignasala Mosfellsbæjar

Þverholti 2, 270 Mosfellsbæ
phone

Svanþór Einarsson

Þverholti 2, 270 Mosfellsbæ