Löggiltir fasteignasalar innan Félags fasteignasala:
Freyja Sigurðardóttir
Ágústa Hauksdóttir
Andrea Guðrún Gunnlaugsdóttir
Glódís Helgadóttir
Hlynur Halldórsson
Valgerður Ása Gissurardóttir
Vista
svg

82

svg

79  Skoðendur

svg

Skráð  15. okt. 2025

fjölbýlishús

Hádegisskarð 24

221 Hafnarfjörður

114.900.000 kr.

835.636 þ.kr./m2
Fasteignanúmer

F2531094

Fasteignamat

38.600.000 kr.

Brunabótamat

0 kr.

Áhvílandi

0 kr.

Arion banki – Reikna lán
Upplýsingar
svg
Byggt 2023
svg
137,5 m²
svg
4 herb.
svg
1 baðherb.
svg
3 svefnh.
svg
Sérinngangur

Lýsing

Hraunhamar kynnir: Glæsilega nýbyggingu á frábærum stað við Hádegisskarð 24 (7 íbúðaklasi) í Skarðshlíðarhverfinu í Hafnarfirði í göngufæri við skóla, leikskóla, útivist ofl.  

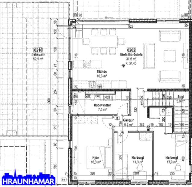
Íbúð 202 er glæsileg fögurra herbergja íbúð með sérinngangi, skráð 137,5 fermetrar með geymslu. Aukin lofthæð er í íbúðinni og fylgir henni um 50 fm þaksvalir. Frábært útsýni.

Afhending við kaupsamning.


Íbúðirnar afhendast fullbúnar með gólfefnum. Innréttingar eru frá HTH og eldhústæki frá AEG. Ísskápur og uppþvottavél fylgir.

Nánari lýsing skv. teikningu:
Sérinngangur. Anddyri með fataskáp á neðri hæð.
Geymsla á neðri hæð. 
Góður teppalagður stigi upp á efri hæðina.
Gott opið rými, þar sem eldhús og stofa eru samliggjandi.
Eldhús með smekklegri innréttingu frá HTH og vönduðum eldunartækjum. 
Björt stofa og borðstofa og þaðan er útgengt rúmgóðar ca 50 fm þaksvalir sem snúa til suðurs. 
Þrjú góð svefnherbergi með fataskápum.  
Flísalagt baðherbergi með innréttingu, upphengdu salerni og sturtu. Tengi fyrir þvottavél og þurrkara.
Stæði merkt B3 tilheyrir íbúðinni.

Sérinngangur er fyrir hverja íbúð og sorpgerði er staðsett við sitthvoran endann á húsinu og er sameign allra.
Megin burðarkerfi hússins er steinsteypa. Veggir eru forsteyptar einingar frá BM-Vallá. Plötur eru steinsteyptar, uppbyggðar úr forsteyptum filigranplötum og ásteypulagi.


Bókið skoðun hjá sölumönnum Hraunhamars: 
Glódís Helgadóttir löggiltur fasteignasali s. 659-0510, glodis@hraunhamar.is
Hlynur Halldórsson, löggiltur fasteignasali, s. 698-2603, hlynur@hraunhamar.is
Helgi Jón Harðarson, sölust. s. 893-2233, helgi@hraunhamar.is
Vala Gissurardóttir löggiltur fasteignasali s. 791-7500, vala@hraunhamar.is

Skoðunarskylda: 
Í lögum um fasteignakaup nr. 40/2002 er kveðið á um ríka skoðunarskyldu kaupenda á fasteignum. Hraunhamar fasteignasala vill benda væntanlegum kaupendum á að kynna sér vel ástand fasteigna fyrir kauptilboðsgerð og ef þurfa þykir að leita til sérfræðinga fyrir nánari ástandsskoðun.

Gjöld sem kaupandi þarf að standa straum af vegna kaupanna:
1.    Stimpilgjald af kaupsamningi, fyrstu kaup (0,4%), almenn kaup (0,8%), lögaðilar (1,6%) af heildarfasteignamati.
2.    Þinglýsingargjald af kaupsamningi, veðskuldabréfi, mögulegu veðleyfi o.fl. – kr. 2.700 kr. af hverju skjali.
3.    Lántökugjald lánastofnunar er skv. verðskrá viðkomandi lánastofnunar.
4.    Umsýslugjald til fasteignasölu skv. þjónustusamningi

Hraunhamar er elsta fasteignasala Hafnarfjarðar, stofnuð 1983.
Hraunhamar, í farabroddi í rúm 40 ár ! – Hraunhamar.is

Hraunhamar fasteignasala

Hraunhamar fasteignasala

Bæjarhraun 10, 220 Hafnarfjörður
Hraunhamar fasteignasala

Hraunhamar fasteignasala

Bæjarhraun 10, 220 Hafnarfjörður