Upplýsingar
Byggt 2023
111,1 m²
4 herb.
1 baðherb.
3 svefnh.
Sameiginl. inngangur
Bílastæði
Lyfta
Lýsing
Eignamiðlun kynnir nýjar eignir við Áshamar 2-10 í glæsilegum fjölbýlishúsum í Svansvottuðu ferli í Hamranesi í Hafnarfirði. Í húsunum eru 140 íbúðir, allt frá stúdíóíbúðum til fjögurra herbergja íbúða. Íbúðirnar eru bjartar og nútímalegar með hagnýtu skipulagi. Glæsilegt hverfi í nágrenni við stórkostlega náttúru, Hvaleyrarvatn, Helgafell, Kleifarvatn o.fl.
NÁNARI UPPLÝSINGAR GEFUR: Oddný María Kristinsdóttir, í síma 7773711 eða oddny@eignamidlun.is
**Sækja söluyfirlit**
Heimasíða verkefnisins:
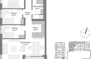
Áshamar 4, íbúð 03-01 er 111.1 fm 4 herb.íbúð í nýju glæsilegu lyftuhúsi á mjög góðum stað í Hafnarfirði. Stæði í bílskýli merkt B2-04 fylgir íbúðinni.
Opinber skráning eignarinnar: Birt flatarmál er 111.1 fm, með geymslu í sameign.
Bókið skoðun hjá sölumanni Eignamiðlunar.
Oddný María Kristinsdóttir í síma 777-3711 eða oddny@eignamidlun.is
Lilja Guðmundsdóttir í síma 649-3868 eða lilja@eignamidlun.is
Kári Sighvatsson í síma 899-8815 eða kari@eignamidlun.is
Rögnvaldur Örn Jónsson í síma 660-3452 eða rognvaldur@eignamidlun.is
Magnús Þórir Matthíasson í síma 895-1427 eða magnusm@eignamidlun.is
Nánari lýsing:
Íbúðirnar afhendast fullfrágengnar meö öllum innréttingum og gólfefnum, flísar og vandað harðparket verður á gólfum.
Eldhúsinnrétting er frá Nobilia í Þýskalandi. Eldhúsinnrétting er fullbúin með blöndunartækjum og eldhústækjum þ.e. helluborði, viftu í innréttingu eða eyjuháfi yfir helluborði þar sem það á við, innbyggðum ísskáp, innbyggðri uppþvottavél og ofni. Eldhústæki eru frá AEG.
Baðherbergisgólf og sturturými eru flísalögð. Baðherbergisveggir eru spartlaðir og málaðir með rakaþolinni málningu á þeim veggjum sem ekki eru flísalagðir. Baðinnrétting er með neðri skáp, hvítri handlaug og efri skápum með spegli á hurðum og ljósi. Salerni er vegghengt með innbyggðum vatnskassa. Blöndunartæki á baði eru hitastýrð blöndunartæki og sturtustöng með utanáliggjandi blöndunartækjum. Lýsing er í lofti á baðherbergjum. Vandað harðparket er á alrýmum. Sjá nánar í skilalýsingu. Innréttingar í þessari íbúð eru: Ljós-Concrete Sand.
Kaupendur greiða skipulagsgjald þ.e 0,3% af endanlegu brunabótamati þegar það verður innheimt.
NÁNARI UPPLÝSINGAR GEFUR: Oddný María Kristinsdóttir, í síma 7773711 eða oddny@eignamidlun.is
**Sækja söluyfirlit**
Heimasíða verkefnisins:
Áshamar 4, íbúð 03-01 er 111.1 fm 4 herb.íbúð í nýju glæsilegu lyftuhúsi á mjög góðum stað í Hafnarfirði. Stæði í bílskýli merkt B2-04 fylgir íbúðinni.
Opinber skráning eignarinnar: Birt flatarmál er 111.1 fm, með geymslu í sameign.
Bókið skoðun hjá sölumanni Eignamiðlunar.
Oddný María Kristinsdóttir í síma 777-3711 eða oddny@eignamidlun.is
Lilja Guðmundsdóttir í síma 649-3868 eða lilja@eignamidlun.is
Kári Sighvatsson í síma 899-8815 eða kari@eignamidlun.is
Rögnvaldur Örn Jónsson í síma 660-3452 eða rognvaldur@eignamidlun.is
Magnús Þórir Matthíasson í síma 895-1427 eða magnusm@eignamidlun.is
Nánari lýsing:
Íbúðirnar afhendast fullfrágengnar meö öllum innréttingum og gólfefnum, flísar og vandað harðparket verður á gólfum.
Eldhúsinnrétting er frá Nobilia í Þýskalandi. Eldhúsinnrétting er fullbúin með blöndunartækjum og eldhústækjum þ.e. helluborði, viftu í innréttingu eða eyjuháfi yfir helluborði þar sem það á við, innbyggðum ísskáp, innbyggðri uppþvottavél og ofni. Eldhústæki eru frá AEG.
Baðherbergisgólf og sturturými eru flísalögð. Baðherbergisveggir eru spartlaðir og málaðir með rakaþolinni málningu á þeim veggjum sem ekki eru flísalagðir. Baðinnrétting er með neðri skáp, hvítri handlaug og efri skápum með spegli á hurðum og ljósi. Salerni er vegghengt með innbyggðum vatnskassa. Blöndunartæki á baði eru hitastýrð blöndunartæki og sturtustöng með utanáliggjandi blöndunartækjum. Lýsing er í lofti á baðherbergjum. Vandað harðparket er á alrýmum. Sjá nánar í skilalýsingu. Innréttingar í þessari íbúð eru: Ljós-Concrete Sand.
Kaupendur greiða skipulagsgjald þ.e 0,3% af endanlegu brunabótamati þegar það verður innheimt.
***
Ábyrg þjónusta í áratugi. Eignamiðlun var stofnuð 1957 og er elsta starfandi fasteignasala á Íslandi. Reynsla, heiðarleiki og þekking á fasteignamarkaðnum eru grunnur að farsælum viðskiptum.
Eignamiðlun Grensásvegi 11, 108 Reykjavík - Opið frá kl. 9-17 mánudaga til fimmtudaga og 9-16 á föstudögum.
Heimasíða Eignamiðlunar
Eignamiðlun á Facebook