Löggiltir fasteignasalar innan Félags fasteignasala:
Hannes Steindórsson
Bogi Molby Pétursson
Guðrún Antonsdóttir
Heimir Hallgrímsson
Hrafnkell P. H. Pálmason
Viðar Marinósson
Elías Haraldsson
Kristján Þórir Hauksson
Albert Bjarni Úlfarsson
Ragnar Þorsteinsson
Þórey Ólafsdóttir
Andri Freyr Halldórsson
Upplýsingar
Verðsaga
Byggt 2013
101,6 m²
3 herb.
1 baðherb.
2 svefnh.
Þvottahús
Sérinngangur
Bílastæði
Lyfta
Lýsing
LIND fasteignasala og Þórey Ólafsdóttir, löggiltur fasteignasali, kynna í einkasölu bjarta og rúmgóða 3 herbergja útsýnisíbúð á 2. hæð með sérinngang í nýlegu lyftuhúsi við Álfhólsveg í Kópavogi þar sem stutt í alla helstu þjónustu, skóla og leikskóla. Eigninni fylgja tvö merkt bílastæði í bílskýli þar sem búið er að leggja hleðslustöðvum.
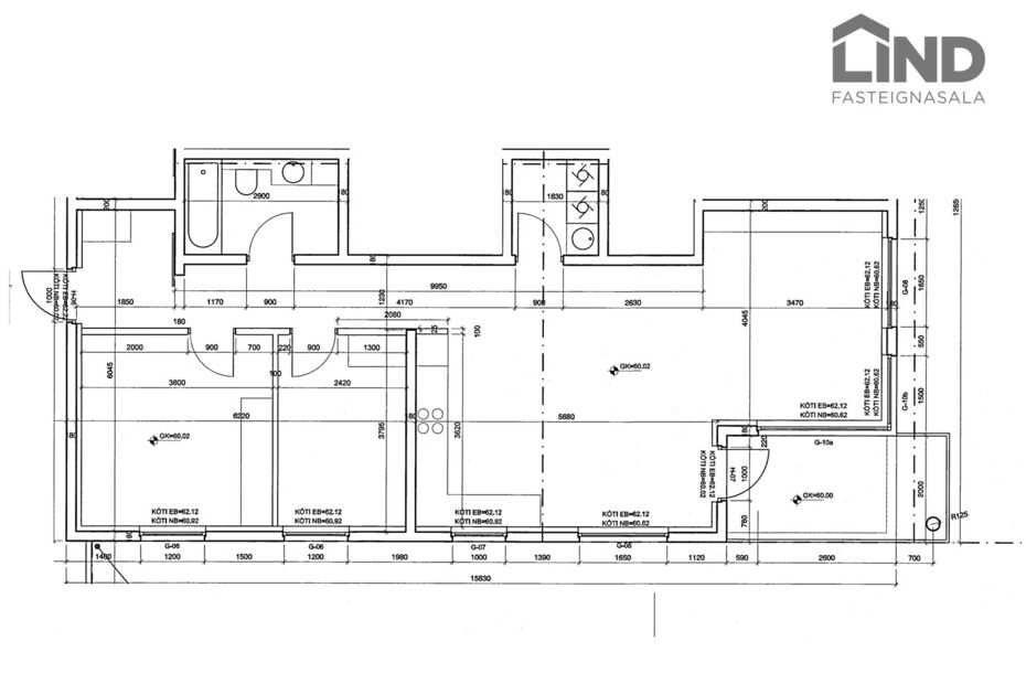
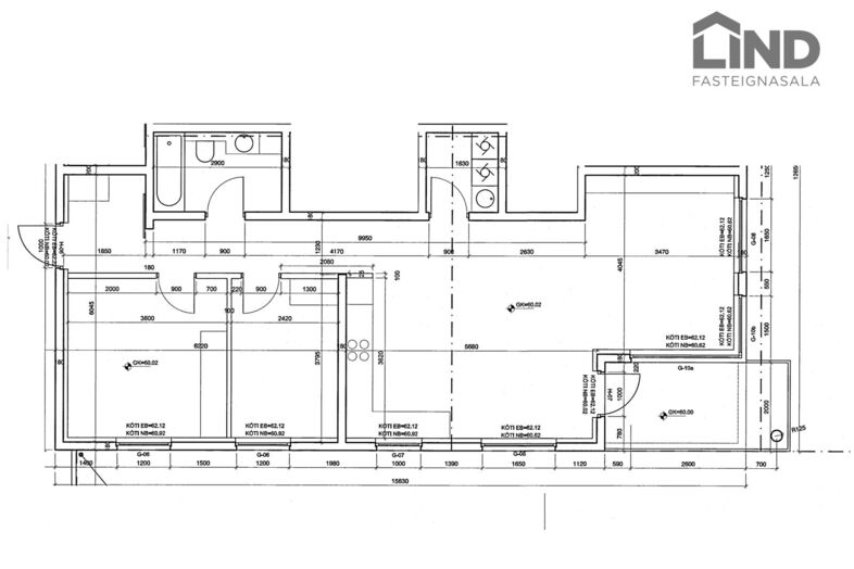
Birt stærð eignar er 101.6 fm samkvæmt Þjóðskrá Íslands, þar af er 9,2 fm. geymsla á jarðhæð.
Eignin skiptist í forstofu, eldhús, stofu og borðstofu í opnu rými, tvö svefnherbergi, baðherbergi, þvottahús innan íbúðar og geymslu á jarðhæð en henni fylgja tvo merkt bílastæði í bílskýli.
SMELLTU HÉR TIL AÐ FÁ SENT SÖLUYFIRLIT en annars veiti ég allar frekari upplýsingar í síma 663 2300 eða thorey@fastlind.is
Nánari lýsing:
Forstofa með fataskáp, flísar á gólfi.
Eldhús með ljósri innréttingu, tengi fyrir uppþvottavél og parket á gólfi.
Stofa og borðstofa, bjart opið rými með miklu útsýni, parket á gólfi, útgengt á rúmgóðar svalir.
Hjónaherbergi með fataskáp, parket á gólfi.
Barnaherbergi með fataskáp, parket á gólfi.
Baðherbergi, flísalagt með ljósri innréttingu, upphengdu salerni og baðkari með sturtustöng.
Þvottahús innan íbúðar, með innréttingu og vask, flísar á gólfi.
Geymsla með glugga á jarðhæð.
Bílastæði, tvö merkt stæð í bílskýli, merkt 01B006 og 01B007. Stæðin eru hlið við hlið og búið að leggja fyrir hleðslustöðvum.
Nánari upplýsingar veitir Þórey Ólafsdóttir, löggiltur fasteignasali / B.Sc. í viðskiptafræði í síma 663 2300 eða gegnum thorey@fastlind.is
Á heimasíðunni minni www.thorey.is má skoða umsagnir ánægðra viðskiptavina og kynna sér þjónustuna mína.
Allir kaupendur okkar fá Vildarkort Lindar. Með því að framvísa kortinu færð þú 30% afslátt hjá samstarfsaðilum: Húsgagnahöllin, S. Helgason, Flugger litir, Húsasmiðjan, Z brautir og gluggatjöld, Vídd, Parki, Betra bak, Dorma og Sýn.
Birt stærð eignar er 101.6 fm samkvæmt Þjóðskrá Íslands, þar af er 9,2 fm. geymsla á jarðhæð.
Eignin skiptist í forstofu, eldhús, stofu og borðstofu í opnu rými, tvö svefnherbergi, baðherbergi, þvottahús innan íbúðar og geymslu á jarðhæð en henni fylgja tvo merkt bílastæði í bílskýli.
SMELLTU HÉR TIL AÐ FÁ SENT SÖLUYFIRLIT en annars veiti ég allar frekari upplýsingar í síma 663 2300 eða thorey@fastlind.is
Nánari lýsing:
Forstofa með fataskáp, flísar á gólfi.
Eldhús með ljósri innréttingu, tengi fyrir uppþvottavél og parket á gólfi.
Stofa og borðstofa, bjart opið rými með miklu útsýni, parket á gólfi, útgengt á rúmgóðar svalir.
Hjónaherbergi með fataskáp, parket á gólfi.
Barnaherbergi með fataskáp, parket á gólfi.
Baðherbergi, flísalagt með ljósri innréttingu, upphengdu salerni og baðkari með sturtustöng.
Þvottahús innan íbúðar, með innréttingu og vask, flísar á gólfi.
Geymsla með glugga á jarðhæð.
Bílastæði, tvö merkt stæð í bílskýli, merkt 01B006 og 01B007. Stæðin eru hlið við hlið og búið að leggja fyrir hleðslustöðvum.
Nánari upplýsingar veitir Þórey Ólafsdóttir, löggiltur fasteignasali / B.Sc. í viðskiptafræði í síma 663 2300 eða gegnum thorey@fastlind.is
Á heimasíðunni minni www.thorey.is má skoða umsagnir ánægðra viðskiptavina og kynna sér þjónustuna mína.
Allir kaupendur okkar fá Vildarkort Lindar. Með því að framvísa kortinu færð þú 30% afslátt hjá samstarfsaðilum: Húsgagnahöllin, S. Helgason, Flugger litir, Húsasmiðjan, Z brautir og gluggatjöld, Vídd, Parki, Betra bak, Dorma og Sýn.
Ár
Fasteignamat
Kaupverð
Stærð
Fermetraverð
18. jún. 2021
51.050.000 kr.
61.900.000 kr.
101.6 m²
609.252 kr.
7. jan. 2016
36.250.000 kr.
43.250.000 kr.
101.6 m²
425.689 kr.
30. des. 2013
14.000.000 kr.
23.900.000 kr.
101.6 m²
235.236 kr.
Byggt á upplýsingum úr Þjóðskrá Íslands frá 2006-2025