Löggiltir fasteignasalar innan Félags fasteignasala:
Elín Káradóttir
Hrönn Bjargar Harðardóttir
Vista
svg

226

svg

200  Skoðendur

svg

Skráð  27. ágú. 2025

fjölbýlishús

HNJÚKAMÓI 16 ÍBÚÐ 105

815 Þorlákshöfn

44.900.000 kr.

885.602 þ.kr./m2
Fasteignanúmer

F2534100

Fasteignamat

2.230.000 kr.

Brunabótamat

0 kr.

Áhvílandi

0 kr.

Arion banki – Reikna lán
Upplýsingar
svg
50,7 m²
svg
2 herb.
svg
1 baðherb.
svg
1 svefnh.
svg
Sérinngangur
svg
Lyfta

Lýsing

BYR fasteignasala og Stofnhús kynna HNJÚKAMÓI 16 íbúð 105, Þorlákshöfn. Ný tveggja herbergja íbúð á jarðhæð með sérinngangi í nýju fimm hæða lyftuhúsi. 
Góð staðsetning miðsvæðis í Þorlákshöfn, stutt í alla almenna þjónustu og útivist og ýmiskonar afþreyingu. Smellið hér fyrir staðsetningu.

TIL AFHENDINGAR MARS 2026. ÞORLÁKSHÖFN, hamingjan er hér!
Allar nánari upplýsingar hjá BYR FASTEIGNASALA | 483-5800 | byr@byrfasteignasala.is |


Íbúðin er 50.7 m² að stærð samkvæmt skráningu HMS. Eignin skilast fullfrágengin að innan og utan samkvæmt skilalýsingu seljanda.
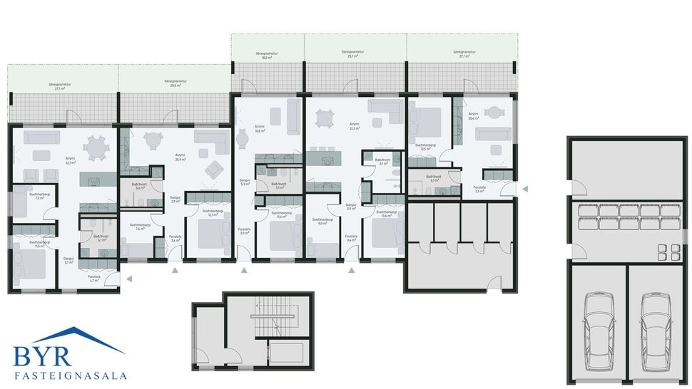
Skipulag íbúðar: Forstofa, alrými með stofu, borðstofu og eldhúsi, svefnherbergi, gangur og baðherbergi/þvottur. 
Í sameign: Hjóla- og vagnageymsla, sorpgeymsla.

Nánari lýsing:
Forstofa með fataskápum. Alrými með stofu, borðstofu og eldhúsi, útgengt er frá alrými út á sérafnotareit með timburverönd.
Eldhús, öll tæki fylgja, spanhelluborð, sjálfhreinsandi blástursofn, innbyggður kæli- og frystiskápur, innbyggð uppþvottavél. 
Svefnherbergi, með fataskápum. Baðherbergi, flisar á gólfi og á tveimur veggjum í sturtu, upphengt salerni, baðinnrétting og spegill. Þvottaaðstaða er á baðherbergi, innrétting, gert er ráð fyrir tveimur tækjum í innréttingu (gert er ráð fyrir barkalausum þurrkara).

Frágangur og efnisval, allar íbúðir eru fullfrágengnar að innan, gólfefni, innréttingar og heimilistæki:
Íbúðirnar eru málaðar í ljósum lit, yfirfelldar innihurðar hvítar frá Parki. Allar innréttingar í eldhúsum, baðherbergjum, þvottahúsum ásamt fataskápum eru sérsmíðaðar frá Voké-III innréttingum, ljósar á lit í bland við dökka viðaráferð, heimilistæki AEG frá Rafha innbyggður ísskápur og uppþvottavél. Öll gólfefni verða frá Álfaborg, flísar á baði 60x60 á gólfi og tveimur veggjum í sturtu, harðparket  ásamt hvítum gólflistum. Háhraða ljósleiðari frá Mílu tilbúinn til tengingar. 
Sjá frekari upplýsingar í sölubækling íbúða. 

Byggingaraðili Stofnhús. Arkitekt Teikna ehf. Burðarþols, lagnir og loftræsting NNE ehf. Raflagnahönnun Voltorka ehf.
Landlagshönnun Lilium ehf. Byggingastjóri Goðhús ehf. Verkefnastjórn JTV ehf. 

Hnjúkamói 16 er fimm hæða fjölbýlishús, 22 íbúðir eru í húsinu. Húsið er staðsteypt, einangrað að utan og klætt  smábáru frá Áltak. Gluggar og hurðar úr ál/tré frá BYKO.
Lóð verður fullfrágengin samkvæmt leiðbeinandi teikningum arkitekts. Lyfta er í húsinu, Gengið er inn í íbúðir af svalagöngum. Íbúðum á jarðhæð fylgir sérnotareitur með timburverönd, svalir eru á íbúðum á efri hæðum. 
Stéttar næst húsi og gangstígar á lóð verða steypt eða hellulagt, snjóbræðslulögn í gangstíg framan við húsið og að sorpgeymslu að öðru leyti verður lóð frágengin með þökum. Á lóðinni eru 25 bílastæði í óskiptri sameign, þar af 2 fyrir hreyfihamlaða. Möguleiki er á að koma upp hleðslustöðvum rafbíla næst húsi.

Seljandi áskilur sér rétt til nauðsynlegra breytinga á teikningum á byggingartíma egna tæknilegra útfærsla í samráði við arkitekta og hönnuði að fengnu samþykki byggingaryfirvalda sé þess þörf vegna tæknilegra útfærslna, auk þess að leggja inn reyndateikningar eftir að byggingu hefur verið lokið. 
Seljandi áskilur sér rétt til að breyta/leiðrétta eignaskiptasamning og reyndarteikningar án samþykki íbúðareiganda. 
Seljandi áskilur sér allan rétt til að gera efnis, tæknilegar og útlits breytingar á meðan á byggingarframkvæmd stendur. 

Allt auglýsinga- og kynningarefni eins og tölvugerðar myndir og teikningar eru eingöngu til hliðsjónar.
Laus búnaður og annað sem kann að vera sýnt á teikningum eða þrívíddar myndum en er ekki talið upp í skilalýsingu fylgir þannig ekki íbúðum.

Athugið að kaupendur greiða stimpil-, þinglýsingar- og lántökugjald vegna kaupsamnings og nýrra lána, auk þjónustu- og umsýslugjalds til fasteignasölunnar.
Um er að ræða eign í byggingu og brunabótamat liggur ekki fyrir, kemur það í hlut kaupanda að greiða skipulagsgjald 0,3% þegar þess verður krafist.

 


ALLAR NÁNARI UPPLÝSINGAR Á SKRIFSTOFU s. 483 5800 - byr@byrfasteignasala.is 
Elín Káradóttir, löggiltur fasteignasali og eigandi – elin@byrfasteignasala.is
Hrönn Bjargar Harðardóttir, löggiltur fasteignasali / stílisti - hronn@byrfasteignasala.is
Kristín Rós Magnadóttir, löggiltur fasteignasali / lögfræðingur - kristin@byrfasteignasala.is
Sigurbjörg Halla Sigurjónsdóttir, löggiltur fasteignasali - silla@byrfasteignasala.is

Opið alla virka daga milli kl. 09:00-16:00.

Um skoðunarskyldu:
Lög um fasteignakaup nr. 40/2002 er kveða á um ríka skoðunarskyldu kaupenda á fasteignum.        
Byr fasteignasala skorar því á væntanlega kaupendur að kynna sér vel ástand fasteigna fyrir kauptilboðsgerð og leita til þar til bærra sérfræðinga um nánari skoðun.
 
Gjöld sem kaupandi þarf að greiða af vegna kaupanna:
1. Stimpilgjald af kaupsamningi -  0.8% af heildarfasteignamati fyrir einstaklinga  / 1.6% fyrir lögaðila
2. Þinglýsingargjald af kaupsamningi, veðskuldabréfi, o.fl. - kr. 2.700 af hverju skjali.
3. Lántökugjald lánastofnunar – sjá gjaldskrá viðkomandi lánveitanda.
4. Umsýslugjald til fasteignasölu kr. 69.900 m.vsk.
5. Ef um nýbyggingu er að ræða greiðir kaupandi skipulagsgjald, 0,3% af brunabótamáti, þegar það er lagt á.

www.byrfasteign.is |  Austurmörk 7, 810 Hveragerði - Miðvangur 2-4, 700 Egilsstaðir | Byr fasteignasala

Byr fasteignasala

Byr fasteignasala

Austurmörk 7, 810 Hveragerði
Byr fasteignasala

Byr fasteignasala

Austurmörk 7, 810 Hveragerði