Upplýsingar
Byggt 2023
77,8 m²
3 herb.
1 baðherb.
2 svefnh.
Þvottahús
Sameiginl. inngangur
Hjólastólaaðgengi
Bílastæði
Lyfta
Laus strax
Lýsing
Domusnova Akranesi og Bestla Byggingarfélag kynna nýtt og mjög svo vandað lyftuhús að Þjóðbraut 5 – Akranesi.
Íbúðirnar eru fallegar og vel skipulagðar og er innanhús hönnun í höndum Rut Káradóttur.
***BÓKAÐU SKOÐUN - SÝNUM SAMDÆGURS - DomusNova Akranesi, Kirkjubraut 40 ***
Nánari upplýsingar veitir.
Ragnheiður Rún Gísladóttir löggiltur fasteignasali ragga@domusnova.is / sími 861-4644
Soffía Sóley Magnúsdóttir löggiltur fasteignasali soffia@domusnova.is / sími 846-4144
Sölvi Sævarsson löggiltur fasteignasali solvi@domusnova.is / síma 618-0064
Hrannar Jónsson, löggiltur fasteignasali hrannar@domusnova.is / Sími: 899 0720
Þjóðbraut 5 - 300 Akranesi:
Fjölbýlishúsið að Þjóðbraut 5 er staðsett í glæsilegu íbúðarhverfi í uppbyggingu á Akranesi. Byggingin er 5 hæðir með 38 íbúðum af fjölbreyttum stærðum og gerðum. Eitt stiga- og lyftuhús er í byggingunni. Svalagangar tengjast saman í vinkil á 2.-5. hæð og er aðgengi að stigahúsi frá tveim áttum. Þá hafa íbúðir á jarðhæðum sem snúa til suðurs sérinngang má segja. Á 1. – 5. hæð eru íbúðir af fjölbreyttum stærðum og gerðum, tveggja, þriggja og fjögurra herbergja. Í kjallara hússins er sameiginleg bílageymsla með bílastæðum fyrir 26 bifreiðir. Að auki eru í kjallara sérgeymslur fyrir hluta íbúða ásamt vagna- og hjólageymslu og sameiginlegum tæknirýmum. Aðalinngangur er staðsettur á 1. hæð. Eingöngu er notast við fyrsta flokks efni bæði innan- sem og utandyra. Léttir innveggir íbúða eru með sérvöldu gipsefni fyrir hvert rými og veggir sérgeymslna eru hlaðnir.
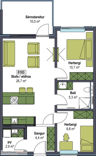
Íbúð 103:
3ja herbergja 77.8 íbúð. Eignin skiptist í forstofu með fataskáp, eldhús eikar innrétting og góðum tækjum, svört borðplata. Hjónaherbergi með góðum fastaskápum, útgengt út á svalir. 1 barnaherbergi með góðum fataskápum. Baðherbergi með flísum á gólfi og veggjum að hluta. Falleg eikar innrétting og sturta. Þvottahús með eikar inréttingu með vaski.
8.2fm geymsla í kjallara. Einnig er stæði í bílageymslu.
Eignin er afhent skv. nánari meðfylgjandi skilalýsingu.
Nánari upplýsingar veitir.
Ragnheiður Rún Gísladóttir löggiltur fasteignasali ragga@domusnova.is / sími 861-4644
Soffía Sóley Magnúsdóttir löggiltur fasteignasali soffia@domusnova.is / sími 846-4144
Sölvi Sævarsson löggiltur fasteignasali solvi@domusnova.is / síma 618-0064
Hrannar Jónsson, löggiltur fasteignasali hrannar@domusnova.is / Sími: 899 0720
***ATH MYNDIR AF SÝNINGARÍBÚÐ***
Um skoðunar- og aðgæsluskyldu:
Í lögum um fasteignakaup nr. 40/2002 er kveðið á um ríka skoðunarskyldu kaupenda á fasteignum. DOMUSNOVA fasteignasala bendir væntanlegum kaupendum á að kynna sér vel ástand fasteigna við skoðun og fyrir tilboðsgerð og ef þurfa þykir að leita til sérfræðinga um nánari ástandsskoðun.
Forsendur söluyfirlits:
Söluyfirlit er samið af fasteignasala í samræmi við ákvæði laga nr. 70/2015. Þær upplýsingar sem fram koma í söluyfirliti þessu eru sóttar í opinberar skrár, til seljanda sjálfs og eftir atvikum til húsfélags. Seljandi veitir upplýsingar um eign í samræmi við upplýsingaskyldu laga um fasteignakaup nr. 40/2002, og ábyrgist að þær séu réttar. Fasteignasali sannreynir að þær upplýsingar séu réttar með sjónskoðun á eigninni. Fasteignasali getur ekki fullyrt um ástand og eiginleika þeirra hluta fasteigna sem ekki eru aðgengilegir og sjást ekki berum augum, t.d. lagnir, dren, skólp og þak.
Gjöld sem kaupandi þarf að standa straum af vegna kaupanna:
Stimpilgjald af kaupsamningi sem er hlutfall af fasteignamati. Stimpilgjald er 0,8% fyrir einstaklinga (0,4% við fyrstu kaup) og 1,6% fyrir lögaðila.
Þinglýsingargjald af kaupsamningi, veðskuldabréfum, veðleyfum o.fl. Þinglýsingargjald er kr. 2.500,- fyrir hvert skjal.
Lántökugjald lánastofnunar. Um lántökugjald vísast í gjaldskrá viðkomandi lánveitanda.
Umsýsluþóknun fasteignasölu skv. gjaldskrá.
Ef um nýbyggingu er að ræða greiðir kaupandi skipulagsgjald, 0,3% af brunabótamáti, þegar það er lagt á.
Íbúðirnar eru fallegar og vel skipulagðar og er innanhús hönnun í höndum Rut Káradóttur.
***BÓKAÐU SKOÐUN - SÝNUM SAMDÆGURS - DomusNova Akranesi, Kirkjubraut 40 ***
Nánari upplýsingar veitir.
Ragnheiður Rún Gísladóttir löggiltur fasteignasali ragga@domusnova.is / sími 861-4644
Soffía Sóley Magnúsdóttir löggiltur fasteignasali soffia@domusnova.is / sími 846-4144
Sölvi Sævarsson löggiltur fasteignasali solvi@domusnova.is / síma 618-0064
Hrannar Jónsson, löggiltur fasteignasali hrannar@domusnova.is / Sími: 899 0720
Þjóðbraut 5 - 300 Akranesi:
Fjölbýlishúsið að Þjóðbraut 5 er staðsett í glæsilegu íbúðarhverfi í uppbyggingu á Akranesi. Byggingin er 5 hæðir með 38 íbúðum af fjölbreyttum stærðum og gerðum. Eitt stiga- og lyftuhús er í byggingunni. Svalagangar tengjast saman í vinkil á 2.-5. hæð og er aðgengi að stigahúsi frá tveim áttum. Þá hafa íbúðir á jarðhæðum sem snúa til suðurs sérinngang má segja. Á 1. – 5. hæð eru íbúðir af fjölbreyttum stærðum og gerðum, tveggja, þriggja og fjögurra herbergja. Í kjallara hússins er sameiginleg bílageymsla með bílastæðum fyrir 26 bifreiðir. Að auki eru í kjallara sérgeymslur fyrir hluta íbúða ásamt vagna- og hjólageymslu og sameiginlegum tæknirýmum. Aðalinngangur er staðsettur á 1. hæð. Eingöngu er notast við fyrsta flokks efni bæði innan- sem og utandyra. Léttir innveggir íbúða eru með sérvöldu gipsefni fyrir hvert rými og veggir sérgeymslna eru hlaðnir.
Íbúð 103:
3ja herbergja 77.8 íbúð. Eignin skiptist í forstofu með fataskáp, eldhús eikar innrétting og góðum tækjum, svört borðplata. Hjónaherbergi með góðum fastaskápum, útgengt út á svalir. 1 barnaherbergi með góðum fataskápum. Baðherbergi með flísum á gólfi og veggjum að hluta. Falleg eikar innrétting og sturta. Þvottahús með eikar inréttingu með vaski.
8.2fm geymsla í kjallara. Einnig er stæði í bílageymslu.
Eignin er afhent skv. nánari meðfylgjandi skilalýsingu.
Nánari upplýsingar veitir.
Ragnheiður Rún Gísladóttir löggiltur fasteignasali ragga@domusnova.is / sími 861-4644
Soffía Sóley Magnúsdóttir löggiltur fasteignasali soffia@domusnova.is / sími 846-4144
Sölvi Sævarsson löggiltur fasteignasali solvi@domusnova.is / síma 618-0064
Hrannar Jónsson, löggiltur fasteignasali hrannar@domusnova.is / Sími: 899 0720
***ATH MYNDIR AF SÝNINGARÍBÚÐ***
Um skoðunar- og aðgæsluskyldu:
Í lögum um fasteignakaup nr. 40/2002 er kveðið á um ríka skoðunarskyldu kaupenda á fasteignum. DOMUSNOVA fasteignasala bendir væntanlegum kaupendum á að kynna sér vel ástand fasteigna við skoðun og fyrir tilboðsgerð og ef þurfa þykir að leita til sérfræðinga um nánari ástandsskoðun.
Forsendur söluyfirlits:
Söluyfirlit er samið af fasteignasala í samræmi við ákvæði laga nr. 70/2015. Þær upplýsingar sem fram koma í söluyfirliti þessu eru sóttar í opinberar skrár, til seljanda sjálfs og eftir atvikum til húsfélags. Seljandi veitir upplýsingar um eign í samræmi við upplýsingaskyldu laga um fasteignakaup nr. 40/2002, og ábyrgist að þær séu réttar. Fasteignasali sannreynir að þær upplýsingar séu réttar með sjónskoðun á eigninni. Fasteignasali getur ekki fullyrt um ástand og eiginleika þeirra hluta fasteigna sem ekki eru aðgengilegir og sjást ekki berum augum, t.d. lagnir, dren, skólp og þak.
Gjöld sem kaupandi þarf að standa straum af vegna kaupanna:
Stimpilgjald af kaupsamningi sem er hlutfall af fasteignamati. Stimpilgjald er 0,8% fyrir einstaklinga (0,4% við fyrstu kaup) og 1,6% fyrir lögaðila.
Þinglýsingargjald af kaupsamningi, veðskuldabréfum, veðleyfum o.fl. Þinglýsingargjald er kr. 2.500,- fyrir hvert skjal.
Lántökugjald lánastofnunar. Um lántökugjald vísast í gjaldskrá viðkomandi lánveitanda.
Umsýsluþóknun fasteignasölu skv. gjaldskrá.
Ef um nýbyggingu er að ræða greiðir kaupandi skipulagsgjald, 0,3% af brunabótamáti, þegar það er lagt á.