Löggiltir fasteignasalar innan Félags fasteignasala:
Aðalheiður Karlsdóttir
Upplýsingar
113 m²
4 herb.
2 baðherb.
3 svefnh.
Sérinngangur
Lýsing
SPÁNAREIGNIR KYNNIR:
*GLÆSILEG EINBÝLISHÚS" - "GÖNGUFÆRI VIÐ GOLF, STRÖND OG SKEMMTILEGAN SPÆNSKAN BÆ"
Vönduð og falleg einbýlishús á tveimur hæðum rétt við La Serena golfvöllinn í Los Alcazares. Þrjú svefnherbergi og tvö baðherbergi. Göngufæri á fallega strönd og gamla bæinn í Los Alcazares, þar sem svo sannarlega er sál og sjarmi, bátahöfn og skemmtilegt "promenaðe" meðfram ströndinni. Einnig eru fleiri golfvellir í nágrenninu, t.d. Roda Golf, Mar Menor golfvöllurinn, Las Colinas, Las Ramblas, Villamartin og fleiri. Um 60 mín akstur til Alicante, og ca. 10 mín. akstur til Cartagena, skemmtilega spænska borg. Fjölbreytt úrval af verslunum og veitingastöðum í göngufæri.
Allar upplýsingar gefa
Aðalheiður Karlsdóttir, löggiltur fasteignasali. GSM 893 2495. adalheidur@spanareignir.is,
Berta Hawkins, löggiltur fasteignasali, berta@spanareignir.is GSM 0034 615 112 869
Karl Bernburg, viðskiptafræðingur. GSM 777 4277. karl@spanareignir.is
Rúmgóð og falleg hús á góðu verði.
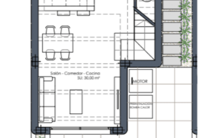
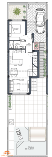
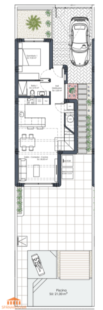
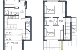
Á neðri hæð er stofa og borðstofa í opnu rými vel tengt eldhúsi. Útgengi á góða verönd og einkagarði með sundlaug. Sér bílastæði inni á lokaðri lóð.
Á efri hæð eru tvö svefnherbergi og baðherbergi. Góðar svalir út frá báðum svefnherbergjunum.
Möguleiki er að bæta við þakverönd gegn aukagjaldi.
VERÐ, miðað við gengi 1EVRA=145ISK.
Frá 399.900 evrum (ISK 57.900.000) + 10% skattur og ca. 3% kostn. við kaupin.
Húsin verða afhent í des2026.
Einstakt tækifæri til að eignast góða eign á frábærum stað.
Eitt besta loftslag í heimi samkvæmt Alþjóða heilbrigðistofnunni, WHO.
Við höfum selt fasteignir á Spáni síðan 2001. Tryggir þekkingu, reynslu og öryggi.
SKOÐUNARFERÐIR:
Við aðstoðum kaupendur við að skipuleggja skoðunarferðir og tökum þátt í kostnaði vegna þeirra, ef af viðskiptum verður.
Mögulegt er að fjármagna hluta kaupverðs með láni frá spænskum banka á góðum kjörum.
Sjá nánar um fasteignakaup á Spáni á heimasíðunni okkar: www.spanareignir.is
Los Alcázares er mjög vinsæll sumarleyfisbær og þar er góð aðstaða til stunda sjóíþróttir. Einnig er í boði fjölbreytt afþreying og ýmsar skemmtilegar uppákomur allt árið um kring. Gott aðgengi að allri nauðsynlegri þjónustu, s.s. heilsugæslu, apótek, verslanir og fjölbreytt úrval af góðum veitingastöðum og tapasbörum.
Kostnaður við kaupin:
10% IVA (spænskur söluskattur) af kaupverði eignarinnar. Auk þess má gera ráð fyrir ca. 3% kostnaði vegna stimpilgjalda og annars kostnaðar við kaupin, þ.e. samtals getur kostnaður vegna kaupa á fasteign á Spáni því farið upp í ca. 13%.
Eiginleikar: ný eign, sér garður, einkasundlaug, útsýni, air con, bílastæði, strönd, golf,
Svæði: Costa Blanca/Costa Calida, Mar Menor, Los Alcazares,
*GLÆSILEG EINBÝLISHÚS" - "GÖNGUFÆRI VIÐ GOLF, STRÖND OG SKEMMTILEGAN SPÆNSKAN BÆ"
Vönduð og falleg einbýlishús á tveimur hæðum rétt við La Serena golfvöllinn í Los Alcazares. Þrjú svefnherbergi og tvö baðherbergi. Göngufæri á fallega strönd og gamla bæinn í Los Alcazares, þar sem svo sannarlega er sál og sjarmi, bátahöfn og skemmtilegt "promenaðe" meðfram ströndinni. Einnig eru fleiri golfvellir í nágrenninu, t.d. Roda Golf, Mar Menor golfvöllurinn, Las Colinas, Las Ramblas, Villamartin og fleiri. Um 60 mín akstur til Alicante, og ca. 10 mín. akstur til Cartagena, skemmtilega spænska borg. Fjölbreytt úrval af verslunum og veitingastöðum í göngufæri.
Allar upplýsingar gefa
Aðalheiður Karlsdóttir, löggiltur fasteignasali. GSM 893 2495. adalheidur@spanareignir.is,
Berta Hawkins, löggiltur fasteignasali, berta@spanareignir.is GSM 0034 615 112 869
Karl Bernburg, viðskiptafræðingur. GSM 777 4277. karl@spanareignir.is
Rúmgóð og falleg hús á góðu verði.
Á neðri hæð er stofa og borðstofa í opnu rými vel tengt eldhúsi. Útgengi á góða verönd og einkagarði með sundlaug. Sér bílastæði inni á lokaðri lóð.
Á efri hæð eru tvö svefnherbergi og baðherbergi. Góðar svalir út frá báðum svefnherbergjunum.
Möguleiki er að bæta við þakverönd gegn aukagjaldi.
VERÐ, miðað við gengi 1EVRA=145ISK.
Frá 399.900 evrum (ISK 57.900.000) + 10% skattur og ca. 3% kostn. við kaupin.
Húsin verða afhent í des2026.
Einstakt tækifæri til að eignast góða eign á frábærum stað.
Eitt besta loftslag í heimi samkvæmt Alþjóða heilbrigðistofnunni, WHO.
Við höfum selt fasteignir á Spáni síðan 2001. Tryggir þekkingu, reynslu og öryggi.
SKOÐUNARFERÐIR:
Við aðstoðum kaupendur við að skipuleggja skoðunarferðir og tökum þátt í kostnaði vegna þeirra, ef af viðskiptum verður.
Mögulegt er að fjármagna hluta kaupverðs með láni frá spænskum banka á góðum kjörum.
Sjá nánar um fasteignakaup á Spáni á heimasíðunni okkar: www.spanareignir.is
Los Alcázares er mjög vinsæll sumarleyfisbær og þar er góð aðstaða til stunda sjóíþróttir. Einnig er í boði fjölbreytt afþreying og ýmsar skemmtilegar uppákomur allt árið um kring. Gott aðgengi að allri nauðsynlegri þjónustu, s.s. heilsugæslu, apótek, verslanir og fjölbreytt úrval af góðum veitingastöðum og tapasbörum.
Kostnaður við kaupin:
10% IVA (spænskur söluskattur) af kaupverði eignarinnar. Auk þess má gera ráð fyrir ca. 3% kostnaði vegna stimpilgjalda og annars kostnaðar við kaupin, þ.e. samtals getur kostnaður vegna kaupa á fasteign á Spáni því farið upp í ca. 13%.
Eiginleikar: ný eign, sér garður, einkasundlaug, útsýni, air con, bílastæði, strönd, golf,
Svæði: Costa Blanca/Costa Calida, Mar Menor, Los Alcazares,