Löggiltir fasteignasalar innan Félags fasteignasala:
Sigurður Maack Gunnarsson
Svanþór Einarsson
Theodór Emil Karlsson
Steingrímur Benediktsson
Vista
einbýlishús

Leirvogstunga 41

270 Mosfellsbær

159.900.000 kr.

745.455 þ.kr./m2
Fasteignanúmer

F2331238

Fasteignamat

134.650.000 kr.

Brunabótamat

115.800.000 kr.

Áhvílandi

0 kr.

Arion banki – Reikna lán
Upplýsingar
Verðsaga
svg
Byggt 2017
svg
214,5 m²
svg
5 herb.
svg
3 baðherb.
svg
3 svefnh.
svg
Þvottahús
svg
Bílskúr
svg
Sérinngangur

Lýsing

** Hafðu samband og bókaðu tíma fyrir skoðun -    Svanþór Einarsson, löggiltur fasteignasali - svanthor@fastmos.is eða 698-8555 - Steingrímur Benediktsson, löggiltur fasteignasali - steingrimur@fastmos.is eða 862-9416 **  

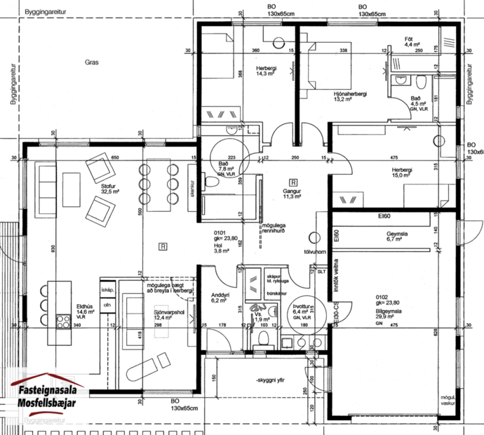
Fasteignasala Mosfellsbæjar kynnir: Glæsilegt 214,5 m2, 5-6 herbergja einbýlishús með innbyggðum bílskúr við Leirvogstungu 41 í Mosfellsbæ. Eignin er skráð 214,5 m2, þar af einbýli 176,1 m2 og bílskúr 38,4 m2. Eignin skiptist í forstofu, gang/hol, stofu, eldhús, sjónvarps-/svefnherbergi, 3 svefnherbergi, tvö baðherbergi, gestasnyrtingu, þvottahús, geymslu/svefnherbergi og bílskúr. Gólfhiti er í húsinu og innbyggð lýsing í flestum rýmum. Húsið var hannað með það í huga að hægt væri að gera auka íbúð í húsinu.
Bílaplan er hellulagt og með snjóbræðslu. Hellulögð verönd til suðurs og vesturs. Frábær staðsetning, miðsvæðis í Leirvogstunguhverfi með fallegu útsýni. 


Smelltu hér til að sækja söluyfirlit

Nánari lýsing:
Forstofa er með flísum á gólfi og fataskáp.
Gestasnyrting er inn af forstofu með flísum á gólfi, handlaug og vegghengdu salerni.
Gangur/hol er með vínylparketi á gólfi.
Stofa er með vínylparketi á gólfi. Útgengt er úr stofu á hellulagða verönd til suðvesturs.
Eldhús er með vínylparketi á gólfi, fallegri hvítri L-laga innréttingu með innbyggðum ísskáp og uppþvottavél. Tveir ofnar; blástursofn og combi-ofn. Eldhúseyja með span helluborði. Á borðum er fallegur Mokka marmari frá Steinsmiðjunni.
Sjónvarpshol/svefnherbergi er með vínylparketi á gólfi. Mögulegt að breyta rýminu í rúmgott svefnherbergi.
Baðherbergi 1 er flísalagt í hólf og gólf með innréttingu, vegghengdu salerni, sturtu og handklæðaofni.
Baðherbergi 2 er inn af hjónaherbergi, flísalagt í hólf og gólf, með innréttingu, handlaug, vegghengdu salerni og sturtu. Gert er ráð fyrir innfelldum spegli á vegg sem hefur ekki verið komið fyrir.
Svefnherbergi 1 (hjónaherbergi) er rúmgott með vínylparketi á gólfi og góðu fataherbergi.
Svefnherbergi 2 er rúmgott með vínylparketi á gólfi..
Svefnherbergi 3 er rúmgott með vínylparketi á gólfi.
Þvottahús er með innréttingu og gert er ráð fyrir þvottavél og þurrkara.
Geymsla/svefnherbergi er inn af bílskúr. Rýmið hefur verið stækkað með tilfærslu á vegg og er í dag nýtt sem svefnherbergi. Hægt að ganga beint inn í rýmið um útihurð á austurhlið hússins.
Bílskúr er með epoxy á gólfi.

Fyrirhugað fasteignamat fyrir árið 2026 er kr. 147.450.000,-

Verð kr. 159.900.000,- 



Um skoðunar- og aðgæsluskyldu:
Í lögum um fasteignakaup nr. 40/2002 er kveðið á um ríka skoðunarskyldu kaupenda á fasteignum. Fasteignasala Mosfellsbæjar skorar því á væntanlega kaupendur að kynna sér vel ástand fasteigna fyrir kauptilboðsgerð og leita til þar til bærra sérfræðinga um nánari skoðun ef með þarf.

Forsendur söluyfirlits:
Söluyfirlit er samið af fasteignasala í samræmi við ákvæði laga nr. 70/2015. Þær upplýsingar sem fram koma í söluyfirliti þessu eru sóttar í opinberar skrár, til seljanda sjálfs og eftir atvikum til húsfélags. Seljandi veitir upplýsingar um eign í samræmi við upplýsingaskyldu laga um fasteignakaup nr. 40/2002. Fasteignasali sannreynir að þær upplýsingar séu réttar með sjónskoðun á eigninni.
Fasteignasali getur ekki fullyrt um ástand og eiginleika þeirra hluta fasteigna sem ekki eru aðgengilegir og sjást ekki berum augum, t.d. lagnir, dren, skólp og þak.

Gjöld sem kaupandi þarf að greiða vegna kaupa:
1. Stimpilgjald af kaupsamningi sem er hlutfall af fasteignamati. Stimpilgjald er 0,8% fyrir einstaklinga (0,4% við fyrstu kaup) og 1,6% fyrir lögaðila.
2. Þinglýsingargjald af kaupsamningi, veðskuldabréfum, veðleyfum o.fl. Þinglýsingargjald er kr. 2.700,- fyrir hvert skjal.
3. Lántökugjald lánastofnunar - er skv. gjaldskrá viðkomandi lánastofnunar.
4. Umsýslugjald til fasteignasölu skv. kauptilboði.
5. Þegar um nýbyggingu er að ræða greiðir kaupandi skipulagsgjald, 0,3% af endanlegu brunabótamáti, þegar það er lagt á af viðkomandi sveitarfélagi.

img
Svanþór Einarsson
Lögg.fasteignasali innan félags fasteignasala
Fasteignasala Mosfellsbæjar
Þverholti 2, 270 Mosfellsbæ
Fasteignasala Mosfellsbæjar

Fasteignasala Mosfellsbæjar

Þverholti 2, 270 Mosfellsbæ
phone
img

Svanþór Einarsson

Þverholti 2, 270 Mosfellsbæ
Ár
Fasteignamat
Kaupverð
Stærð
Fermetraverð
19. júl. 2018
55.000.000 kr.
73.900.000 kr.
214.5 m²
344.522 kr.
Byggt á upplýsingum úr Þjóðskrá Íslands frá 2006-2025
Fasteignasala Mosfellsbæjar

Fasteignasala Mosfellsbæjar

Þverholti 2, 270 Mosfellsbæ
phone

Svanþór Einarsson

Þverholti 2, 270 Mosfellsbæ