Löggiltir fasteignasalar innan Félags fasteignasala:
Knútur Bjarnason
Rúnar Þór Árnason
Gunnar Sv. Friðriksson
Hólmar Björn Sigþórsson
Linda Björk Ingvadóttir
Kristján Þór Sveinsson
María Steinunn Jóhannesdóttir
Ragnheiður Árnadóttir
Vista
svg

68

svg

67  Skoðendur

svg

Skráð  28. sep. 2025

fjölbýlishús

Áshamar 5

221 Hafnarfjörður

100.950.000 kr.

715.450 þ.kr./m2
Fasteignanúmer

F2533550

Fasteignamat

62.200.000 kr.

Brunabótamat

0 kr.

Áhvílandi

0 kr.

Arion banki – Reikna lán
Upplýsingar
svg
Byggt 2023
svg
141,1 m²
svg
5 herb.
svg
1 baðherb.
svg
4 svefnh.
svg
Þvottahús
svg
Sameiginl. inngangur
svg
Lyfta
Opið hús: 25. október 2025 kl. 14:00 til 14:30

Opið hús: Áshamar 5, 221 Hafnarfjörður, Íbúð merkt: 02 01 01. Eignin verður sýnd laugardaginn 25. október 2025 milli kl. 14:00 og kl. 14:30.

Lýsing

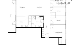
Helgafell fasteignasala kynnir nýja fimm herbergja fullbúna endaíbúð á fyrstu hæð, merkt 0101 við Áshamar 5 í Hafnarfirði.
Birt stærð: 141,1 fm., þar af er sér geymsla 7,5fm. 
Verktaki: JE Skjanni ehf.


Sjá heimasíðu verkefnisins hér

Lýsing:
Anddyri: Harðparket á gólfi og rúmgóður þrefaldur skápur.
Hjónaherbergi: 16,1fm., gott skápapláss og harðparket á gólfi.
Barnaherbergi 1: 9,6fm., harðparket á gólfi og skápur.
Þar sem sjónvarpshol er skv. teikningu verður komið fyrir tveimur svefnherbergjum fyrir afhendingu eignarinnar.
Stórt eldhús með eyju, opið við stofu - L laga eldhúsinnrétting frá Kappa með góðu skápaplássi.  Bosch ísskápur, uppþvottavél, helluborð, gufugleypir og bakaraofn í vinnuhæð.  Öll tæki frá Smith&Norland.  Útgengt út á svalir úr eldhúsi.
Stór stofa/borðstofa: Harðparket á gólfi með útgengi á suðvestur 16,3fm. svalir með góðu útsýni.
Baðherbergi: Rúmgott og flísalagt í hólf og gólf (flísar frá Agli Árnasyni), upphengt salerni,  "Walk-in" sturta.  Inn af baðherbergi er flísalagt þvottahús.
Sér geymsla í sameign á neðstu hæð.

Íbúðin er með gólfhita og er afhent fullbúin með gólfefnum, harðparket á gólfi og flísar í blautrýmum. 
Einangrun undir gólfhitalagnirnar og anhýdrít ílögn yfir gólfhitalagnirnar.
Endanlegur frágangur gólfefna er hluti af heildarhljóðvist hússins sem tryggir hljóðvist, vandað undirlag og réttan frágang gólfefna.
Hvítar 90cm yfirfelldar hurðir frá Parka með 90cm ljósopi. 
Dyrasímakerfi með myndavél uppsett.
Ljósleiðari kominn í hús og inn í smáspennutöflu hverrar íbúðar. 
RJ45 nettengi eru uppsett og tengd inn í smáspennutöflu.  Loftnet er komið inn í smáspennutöflu.

Í sameign er hjóla- og vagnageymsla.
Teppalagðir stigagangar með góðri lýsingu.  Glerlokun með hurð frá stigagangi inn á íbúðarpalla á hverri hæð. 
Lyfta gengur inn í íbúðarpallana á hverri hæð. 
Vandaðar brunahurðir frá Parka inn í íbúðirnar. 

Sameiginleg 95 stæði á lóðinni.
Búið er að leggja rafmagnslagnir að hluta af stæðum án tengingar, sem hugsaðar eru fyrir rafmagnsbíla.

Barnvænt hverfi, undirgöng nálægt húsinu og er því góð gönguleið í skóla þar sem ekki er þörf að fara yfir umferðargötu á leið í skólann.  Nýr leikskóli í götunni.

ATH: Myndir af íbúðinni eru úr samskonar (eins) íbúð en á annarri hæð.
ATH: Svalalokanir sem sjást á tölvugerðri mynd eru ekki afhentar með íbúðunum.

Fyrir nánari upplýsingar hafið samband við sölumenn Helgafells fasteignasölu.

 

----------------------------------------------------------
Heimasíða Helgafells fasteignasölu
Facebook síða Helgafells

- Hafðu samband og við gerum söluverðmat á eign þinni, þér að kostnaðarlausu -

Gjöld sem kaupandi þarf að standa straum af vegna kaupa á fasteign:

1. Stimpilgjald af kaupsamningi - 0,8% af fasteignamati fyrir einstaklinga (0,4% fyrir fyrstu kaupendur) og 1,6% fyrir lögaðila.
2. Þinglýsingargjald af kaupsamningi, veðskuldabréfi, mögulegu veðleyfi o.fl. - 2.700 kr. af hverju skjali.
3. Lántökugjald lánastofnunar - almennt í kringum 50þ., oft lægra eða ekkert lántökugjald fyrir fyrstu kaup. Nánari upplýsingar á heimasíðum lánastofnana.
4. Þjónustusamningur milli kaupanda og fasteignasölu - Kr.  92.380,- m/vsk.

Helgafell fasteignasala bendir kaupendum á ríka skoðunarskyldu sem kveðið er á í lögum um fasteignakaup nr.40/2002. Skorað er á kaupendur að kynna sér vandlega ástand fasteigna og nýta til þess aðstoð sérfræðinga.  Sömuleiðis er bent á upplýsingaskyldu seljanda samanber 26.gr. Laga nr.40/2002 um fasteignakaup og 25.gr. laga nr.26/1994 um fjöleignarhús. Seljanda er bent á að kynna sér tilvitnaðar lagagreinar.

img
Rúnar Þór Árnason
Lögg.fasteignasali innan félags fasteignasala
Helgafell fasteignasala ehf.
Stórhöfði 33, 2. hæð, 110 Reykjavík
Helgafell fasteignasala ehf.

Helgafell fasteignasala ehf.

Stórhöfði 33, 2. hæð, 110 Reykjavík
img

Rúnar Þór Árnason

Stórhöfði 33, 2. hæð, 110 Reykjavík
Helgafell fasteignasala ehf.

Helgafell fasteignasala ehf.

Stórhöfði 33, 2. hæð, 110 Reykjavík

Rúnar Þór Árnason

Stórhöfði 33, 2. hæð, 110 Reykjavík