Upplýsingar
Verðsaga
Byggt 2024
98,2 m²
2 herb.
1 baðherb.
1 svefnh.
Þvottahús
Sameiginl. inngangur
Hjólastólaaðgengi
Bílastæði
Lyfta
Laus strax
Opið hús: 18. október 2025
kl. 13:30
til 14:00
Opið hús: Hestamýri 2B íb 211, 225 Garðabær, Íbúð merkt: 01 02 11. Eignin verður sýnd laugardaginn 18. október 2025 milli kl. 13:30 og kl. 14:00.
Lýsing
Háborg fasteignasala og Katla kynna með stolti í endursölu glæsilega tveggja herbergja íbúð á 2. hæð við Hestamýri 2B, Álftanesi.
Um er að ræða vel skipulagða og bjarta 2ja herbergja, 98,2 fm íbúð í nýlegu lyftuhúsi, þar af er 17,9 fm geymsla í kjallara og 8,5 fm suðursvalir. Sérmerkt bílastæði í bílakjallara fylgir eigninni merkt B12. Íbúðin er hönnuð af innanhúshönnuði og skartar vönduðum, sérsmíðuðum innréttingum frá Parka, quartz borðplötum, ítölskum flísum frá Porcelanosa og 12 mm harðparketi. Gólfhiti er í öllum rýmum og loftskiptikerfi með varmaendurvinnslu tryggir aukin þægindi og orkusparnað. Vandað efnisval og frágangur, klætt með álklæðningu og bambus harðvið. Sameiginleg hjóla- og bílageymsla í kjallara.
Nánari upplýsingar veitir Katla Hanna Steed, löggiltur fasteignasali, í síma 822-1661 eða katla@haborg.is
Nánari lýsing á eign nr. 211
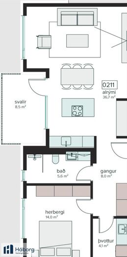
Komið er inn í rúmgóða forstofu/gang sem tengir saman öll rými íbúðarinnar. Þar er rúmgóður fataskápur og fallegt harðparket á gólfi. Góð lofthæð og skýrt skipulag gera innganginn hlýlegan og praktískan.
Alrými – stofa, borðstofa og eldhús, 36,7 m²
Stórt og opið alrými með gólfsíðum gluggum sem hleypa inn mikilli birtu. Útgengt er út á 8,5 m² suðursvalir sem snúa í suður. Rýmið skiptist vel upp með stofu, borðstofu og eldhúsi með eldhúseyju. Vandaðar innréttingar frá Parka, quartz borðplötur og heimilistæki frá Ormsson.
Eldhúsið er fallega hannað og vandað, með sérsmíðuðum innréttingum frá Parka úr melamín hnotuáferð sem gefur því hlýlegt og stílhreint yfirbragð. Borðplötur og plata milli efri og neðri skápa fyrir ofan vask eru úr White Tech Grain quartz steini frá Stone Italiana – endingargott og fágað efni sem lyftir heildarútliti eldhússins. Í eldhúsinu er undirlímdur vaskur með blöndunartæki frá Grohe sem fellur vel að steinplötunni.
Í eldhúsinu eru vönduð tæki frá Ormsson: spanhelluborð, blástursofn með sjálfhreinsibúnaði og kjöthitamæli, uppþvottavél, innbyggður ísskápur og gufugleypir.
Svefnherbergi er rúmgott með góðu skápaplássi og gólfsíðum gluggum til suðurs. Harðparket á gólfi.
Baðherbergi er flísalagt í hólf og gólf með ítölskum flísum frá Porcelanosa. Sturta með glerþili, upphengt salerni og vaskinnrétting með quartz borðplötu.
Þvottahús er sér, með flísalögðu gólfi og góðri innréttingu. Tengi fyrir þvottavél og þurrkara og hillur/skápar.
Helstu kostir:
Pantið skoðun og fáið nánari upplýsingar hjá Katlu Hönnu Steed, löggiltum fasteignasala, í síma 822-1661 eða á netfangið katla@haborg.is
Um er að ræða vel skipulagða og bjarta 2ja herbergja, 98,2 fm íbúð í nýlegu lyftuhúsi, þar af er 17,9 fm geymsla í kjallara og 8,5 fm suðursvalir. Sérmerkt bílastæði í bílakjallara fylgir eigninni merkt B12. Íbúðin er hönnuð af innanhúshönnuði og skartar vönduðum, sérsmíðuðum innréttingum frá Parka, quartz borðplötum, ítölskum flísum frá Porcelanosa og 12 mm harðparketi. Gólfhiti er í öllum rýmum og loftskiptikerfi með varmaendurvinnslu tryggir aukin þægindi og orkusparnað. Vandað efnisval og frágangur, klætt með álklæðningu og bambus harðvið. Sameiginleg hjóla- og bílageymsla í kjallara.
Nánari upplýsingar veitir Katla Hanna Steed, löggiltur fasteignasali, í síma 822-1661 eða katla@haborg.is
Nánari lýsing á eign nr. 211
Komið er inn í rúmgóða forstofu/gang sem tengir saman öll rými íbúðarinnar. Þar er rúmgóður fataskápur og fallegt harðparket á gólfi. Góð lofthæð og skýrt skipulag gera innganginn hlýlegan og praktískan.
Alrými – stofa, borðstofa og eldhús, 36,7 m²
Stórt og opið alrými með gólfsíðum gluggum sem hleypa inn mikilli birtu. Útgengt er út á 8,5 m² suðursvalir sem snúa í suður. Rýmið skiptist vel upp með stofu, borðstofu og eldhúsi með eldhúseyju. Vandaðar innréttingar frá Parka, quartz borðplötur og heimilistæki frá Ormsson.
Eldhúsið er fallega hannað og vandað, með sérsmíðuðum innréttingum frá Parka úr melamín hnotuáferð sem gefur því hlýlegt og stílhreint yfirbragð. Borðplötur og plata milli efri og neðri skápa fyrir ofan vask eru úr White Tech Grain quartz steini frá Stone Italiana – endingargott og fágað efni sem lyftir heildarútliti eldhússins. Í eldhúsinu er undirlímdur vaskur með blöndunartæki frá Grohe sem fellur vel að steinplötunni.
Í eldhúsinu eru vönduð tæki frá Ormsson: spanhelluborð, blástursofn með sjálfhreinsibúnaði og kjöthitamæli, uppþvottavél, innbyggður ísskápur og gufugleypir.
Svefnherbergi er rúmgott með góðu skápaplássi og gólfsíðum gluggum til suðurs. Harðparket á gólfi.
Baðherbergi er flísalagt í hólf og gólf með ítölskum flísum frá Porcelanosa. Sturta með glerþili, upphengt salerni og vaskinnrétting með quartz borðplötu.
Þvottahús er sér, með flísalögðu gólfi og góðri innréttingu. Tengi fyrir þvottavél og þurrkara og hillur/skápar.
Helstu kostir:
- Rúmgóð forstofa/gangur með fataskáp og parketi
- Skýrt og þægilegt skipulag – öll rými tengjast vel
- Gólfsíðir gluggar og suðursvalir með sól og útsýni
- Harðparket, gólfhiti og hágæða efnisval
- Loftskiptikerfi með varmaendurvinnslu
- Sérmerkt bílastæði í bílakjallara (B23)
- 17,9 m² geymsla í kjallara
Pantið skoðun og fáið nánari upplýsingar hjá Katlu Hönnu Steed, löggiltum fasteignasala, í síma 822-1661 eða á netfangið katla@haborg.is
Ár
Fasteignamat
Kaupverð
Stærð
Fermetraverð
20. mar. 2025
71.650.000 kr.
84.900.000 kr.
10211 m²
8.315 kr.
Byggt á upplýsingum úr Þjóðskrá Íslands frá 2006-2025